TOP
|
特許
|
意匠
|
商標
特許ウォッチ
Twitter
他の特許を見る
公開番号
2025134218
公報種別
公開特許公報(A)
公開日
2025-09-17
出願番号
2024031986
出願日
2024-03-04
発明の名称
中継器の配線接続構造
出願人
能美防災株式会社
代理人
個人
,
個人
,
個人
,
個人
,
個人
主分類
G08B
25/00 20060101AFI20250909BHJP(信号)
要約
【課題】配線作業に伴う作業時間の増大および製造コストの上昇を抑制することができる中継器の配線接続構造を得る。
【解決手段】主信号線が接続される主信号線端子および複数の電源線のそれぞれが接続される複数の電源線端子を有する外線端子と、主信号線端子に接続された主信号線パターンおよび複数の電源線端子のそれぞれに接続された複数の電源線パターンが設けられたパターン部材と、を含んで構成される配線接続アダプタと、主信号線パターンと複数の電源線パターンのうちの1つである所望電源線パターンとを選択的に入力可能な選択接続構造を有する中継器とを備え、中継器は、配線接続アダプタに取り付けることで、主信号線パターンと所望電源線パターンとが入力され、接続対象に応じた所望の伝送化動作が可能となる。
【選択図】図5
特許請求の範囲
【請求項1】
主信号線が接続される主信号線端子および複数の電源線のそれぞれが接続される複数の電源線端子を有する外線端子と、前記主信号線端子に接続された主信号線パターンおよび前記複数の電源線端子のそれぞれに接続された複数の電源線パターンが設けられたパターン部材と、を含んで構成される配線接続アダプタと、
前記主信号線パターンと前記複数の電源線パターンのうちの1つである所望電源線パターンとを選択的に入力可能な選択接続構造を有する中継器と
を備え、
前記中継器は、前記配線接続アダプタに取り付けることで、前記主信号線パターンと前記所望電源線パターンとが入力され、接続対象に応じた所望の伝送化動作が可能となる
中継器の配線接続構造。
続きを表示(約 820 文字)
【請求項2】
前記中継器は、
前記主信号線パターンと接続するための第1コネクタと、
前記所望電源線パターンと接続するための第2コネクタと
を有するように前記選択接続構造が構成されており、
前記配線接続アダプタは、
前記主信号線パターン上に配置され、前記第1コネクタと嵌合することで前記第1コネクタと前記主信号線パターンとの電気的な接続を可能とする第3コネクタと、
前記複数の電源線パターン上のそれぞれに配置され、前記第2コネクタと嵌合することで前記第2コネクタと前記所望電源線パターンとの電気的な接続を可能とする複数の第4コネクタと
を有している
請求項1に記載の中継器の配線接続構造。
【請求項3】
前記主信号線パターンは、複数の主信号線パターンとして構成され、
前記第3コネクタは、前記複数の主信号線パターンに対応した複数の第3コネクタとして構成され、
前記中継器は、前記複数の第3コネクタのそれぞれの位置に合わせて前記第1コネクタの位置を選択可能な機構を有するように前記選択接続構造が構成されている
請求項2に記載の中継器の配線接続構造。
【請求項4】
前記第2コネクタは、前記複数の第4コネクタのそれぞれの位置に対応するように複数の第2コネクタとして構成され、
前記複数の第2コネクタのそれぞれは、前記第4コネクタと嵌合させるための嵌合位置と、前記第4コネクタと嵌合させないための非嵌合位置との間で変位可能な機構を有するように前記選択接続構造が構成されている
請求項2に記載の中継器の配線接続構造。
【請求項5】
前記配線接続アダプタは、表面が絶縁部材により覆われたシート部材として構成されている
請求項1から4のいずれか1項に記載の中継器の配線接続構造。
発明の詳細な説明
【技術分野】
【0001】
本開示は、火災受信機に防災機器を接続する際に用いられる中継器の配線接続構造に関するものである。
続きを表示(約 1,400 文字)
【背景技術】
【0002】
複合GR型の火災受信機に対して、一般感知器、地区ベル、防排煙機器(防火戸、防火シャッタ、防火ダンパ、排煙口等)などの各端末機器を接続する場合には、中継器を介した接続構造が用いられる場合がある(例えば、非特許文献1参照)。
【0003】
例えば、P型感知器をR型受信機に接続するためには、中継器を経由して伝送化することとなる。その際には、中継器盤に中継器を取り付けて、中継器間を渡り配線する作業が発生する。
【先行技術文献】
【非特許文献】
【0004】
能美防災株式会社 ホームページ、複合GR型システムR-26Cシステム(URL:https://www.nohmi.co.jp/product/r_system/R_26C.html)
【発明の概要】
【発明が解決しようとする課題】
【0005】
中継器盤内におけるこのような渡り配線作業は、防災システムに用いられる各端末機器の種類および個数に応じて手作業で実施する必要があり、作業時間が増加するとともに製造コストを押し上げてしまう要因となっている。
【0006】
また、中継器用の電源は、接続される各端末機器の種類によって電源線を分ける必要がある。このため、渡り配線の長さも一定になっておらず、渡り配線作業にさらなる手間がかかり、作業時間が増加しているのが実情である。
【0007】
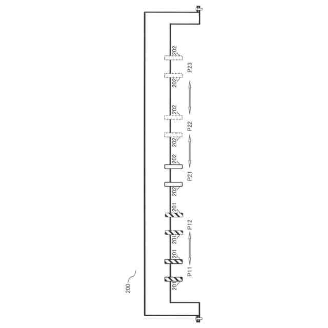
防災システムにおける配線の具体例に関して、図6および図7を用いて説明する。図6は、火災受信機に対して、中継器を介して各端末機器を接続した防災システムにおける配線状態に関する従来技術の一例を示した説明図である。また、図7は、図6に示した中継器盤内の配線状態を拡大して示した説明図である。
【0008】
図6および図7では、主幹線として、以下のような配線L1a~配線L4aが示されている。
配線L1a:アナログ感知器1を火災受信機11に接続するための主信号線。
配線L2a:火災受信機11と中継器盤12内の端子台T1とを接続する感知器用電源線。
配線L3a:火災受信機11と中継器盤12内の端子台T1とを接続する地区ベル用電源線。
配線L4a:火災受信機11と中継器盤12内の端子台T1とを接続する防排煙用電源線。
【0009】
また、図6および図7では、端末機器配線として、以下のような配線L2b~配線L4bが示されている。
配線L2b:一般感知器2を中継器盤12内の端子台T2に接続するための信号線。
配線L3b:地区ベル3を中継器盤12内の端子台T2に接続するための信号線。
配線L4b:防排煙機器4を中継器盤12内の端子台T2に接続するための信号線。
【0010】
そして、中継器盤12内においては、防災システムに用いられる各端末機器の種類および個数に応じて、端子台T1と端子台T2との間を種々の長さの渡り配線を用いて接続する必要がある。詳しくは、主信号線を各中継器間に渡る渡り配線、接続される端末機器毎に中継器間を渡る電源線の渡り配線が必要となる。
(【0011】以降は省略されています)
この特許をJ-PlatPat(特許庁公式サイト)で参照する
関連特許
能美防災株式会社
表示装置
1か月前
能美防災株式会社
システム
2か月前
能美防災株式会社
煙感知器
6日前
能美防災株式会社
消火装置
1か月前
能美防災株式会社
消火栓装置
1日前
能美防災株式会社
火災受信機
1か月前
能美防災株式会社
防犯システム
1か月前
能美防災株式会社
異常検出システム
今日
能美防災株式会社
火災検知システム
6日前
能美防災株式会社
点検支援システム
今日
能美防災株式会社
異常検出システム
14日前
能美防災株式会社
トンネル非常用設備
6日前
能美防災株式会社
高温部可視化システム
6日前
能美防災株式会社
防塵カバー取外し装置
6日前
能美防災株式会社
高粘度消火剤粘性回復装置
15日前
能美防災株式会社
煙感知器および火災報知設備
1か月前
能美防災株式会社
火災感知器及び火災報知システム
2か月前
能美防災株式会社
煙感知器の作動試験方法、作動試験器
2か月前
能美防災株式会社
熱感知器用の加熱試験器及び加熱試験方法
1か月前
能美防災株式会社
表示灯
2日前
能美防災株式会社
火災報知システムの表示装置、火災受信機及び火災感知器
13日前
能美防災株式会社
煙検知装置
23日前
能美防災株式会社
煙検知装置
15日前
能美防災株式会社
熱式警報器
1か月前
能美防災株式会社
火災感知器
2日前
能美防災株式会社
マルチコプター
1か月前
能美防災株式会社
炎検知システム
1か月前
能美防災株式会社
火災感知器の防塵カバー及び火災感知器の防塵カバーの製造方法
21日前
能美防災株式会社
火災報知システム
1か月前
能美防災株式会社
避難状況表示システム
13日前
能美防災株式会社
警報システム及び検知器
8日前
能美防災株式会社
管理装置及び警報システム
1か月前
能美防災株式会社
火災監視システムおよび火災感知器
6日前
能美防災株式会社
火災報知設備の表示装置およびこれを用いた表示システム
1か月前
個人
簡易異常通報装置
今日
個人
安全支援装置
1か月前
続きを見る
他の特許を見る