TOP
|
特許
|
意匠
|
商標
特許ウォッチ
Twitter
他の特許を見る
公開番号
2025019504
公報種別
公開特許公報(A)
公開日
2025-02-07
出願番号
2023123141
出願日
2023-07-28
発明の名称
継手
出願人
株式会社オンダ製作所
代理人
主分類
F16L
5/00 20060101AFI20250131BHJP(機械要素または単位;機械または装置の効果的機能を生じ維持するための一般的手段)
要約
【課題】本発明の目的は、外観が損なわれるおそれを低減できる継手を提供する。
【解決手段】配管アダプター1は、樹脂材料から形成された継手本体10と、継手本体10に埋設され、配管121の雄ねじ122を螺合可能とされた雌ねじインサート20と、給水パイプ111の先端部を接続可能とされた接続機構30と、パッキン40とを備える。継手本体10は、具体的には胴体部11は、配管121と対向する側の雌ねじインサート20の端面である第1端面22を被覆する被覆部13を有する。被覆部13は、厚肉部14と、厚肉部14よりも雌ねじインサート20の径方向内側に設けられた薄肉部15とを有する。
【選択図】 図1
特許請求の範囲
【請求項1】
樹脂材料から形成された継手本体と、
前記継手本体に埋設され、相手部材の雄ねじを螺合可能とされた雌ねじインサートと、
を備え、
前記継手本体は、前記相手部材と対向する側の前記雌ねじインサートの端面を被覆する被覆部を有し、
前記被覆部は、厚肉部と、前記厚肉部よりも前記雌ねじインサートの径方向内側に設けられた薄肉部と、を有する継手。
続きを表示(約 120 文字)
【請求項2】
前記薄肉部の内周縁は、前記雌ねじインサートの端面の内周縁まで延出している請求項1に記載の継手。
【請求項3】
前記薄肉部の厚さは、前記厚肉部の厚さの半分以下である請求項1または請求項2に記載の継手。
発明の詳細な説明
【技術分野】
【0001】
本発明は、例えば、給水用の配管や水栓等を接続するための継手に関する。
続きを表示(約 1,400 文字)
【背景技術】
【0002】
給水用の配管や水栓等を接続するための配管アダプター等の継手において、樹脂製の継手本体に金属製の雌ねじインサートが埋設されたものが存在する(例えば、特許文献1)。特許文献1の継手では、樹脂材料から形成された継手本体に雌ねじインサートが埋設されている。雌ねじインサートには、雄ねじが形成された配管や水栓等の相手部材が螺合可能になっている。継手本体には、相手部材と対向する雌ねじインサートの端面の径方向外側部分を被覆する樹脂製の被覆部が形成されている。このため、配管が雌ねじインサートに強い力で螺合された場合であっても、配管と雌ねじインサートとが直接接触することなく、その間に被覆部が介在して配管から雌ねじインサートに伝わるトルクを低減し、雌ねじインサートおよびその周囲の樹脂材料に過剰な応力がかかることを防止することができる。
【先行技術文献】
【特許文献】
【0003】
特許第6576731号公報
【発明の概要】
【発明が解決しようとする課題】
【0004】
しかしながら、被覆部の内周縁にバリが発生することがあった。バリは薄いため、比較的厚く形成された被覆部にバリが発生すると、厚薄の対比によってバリが目立ち、外観が損なわれることがあった。
本発明の目的は、外観が損なわれるおそれを低減できる継手を提供することにある。
【課題を解決するための手段】
【0005】
前記目的を達成するために請求項1の発明の継手は、樹脂材料から形成された継手本体と、前記継手本体に埋設され、相手部材の雄ねじを螺合可能とされた雌ねじインサートと、を備え、前記継手本体は、前記相手部材と対向する側の前記雌ねじインサートの端面を被覆する被覆部を有し、前記被覆部は、厚肉部と、前記厚肉部よりも前記雌ねじインサートの径方向内側に設けられた薄肉部と、を有する。
【0006】
請求項2の発明は請求項1において、前記薄肉部の内周縁は、前記雌ねじインサートの端面の内周縁まで延出している。
【0007】
請求項3の発明は請求項1または請求項2において、前記薄肉部の厚さは、前記厚肉部の厚さの半分以下である。
【図面の簡単な説明】
【0008】
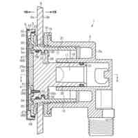
配管アダプターを示す断面図。
配管アダプターの製造方法を説明するための断面図。
【発明を実施するための形態】
【0009】
<一実施形態>
以下、本発明を建物の床板を経由して給水配管を引き回すために用いられる配管アダプターに具体化した一実施形態について説明する。
【0010】
図1は、例えば床板101に施工される継手としての配管アダプター1を示している。図1の右上部分には配管アダプター1の一点鎖線で囲まれた部分の拡大図を示している。床板101には、床下空間(図1の下側)と、室内となる床上空間(図1の上側)とを連通する貫通孔101aが形成されている。貫通孔101aの床下空間側には、架橋ポリエチレン等の樹脂製の給水パイプ111の先端部が配置され、貫通孔101aの床上空間側には、相手部材としての金属製の配管121が配置される。配管121の先端には、雄ねじ122が形成されている。
(【0011】以降は省略されています)
この特許をJ-PlatPat(特許庁公式サイト)で参照する
関連特許
株式会社オンダ製作所
浴槽用循環具
今日
個人
流路体
8か月前
個人
鍋虫ねじ
1か月前
個人
回転伝達機構
2か月前
個人
ホース保持具
5か月前
個人
クラッチ装置
8か月前
個人
紛体用仕切弁
1か月前
個人
トーションバー
6か月前
個人
差動歯車用歯形
3か月前
個人
ジョイント
17日前
個人
固着具と成形品部材
8か月前
個人
回転式配管用支持具
7か月前
個人
ボルトナットセット
6か月前
株式会社不二工機
電磁弁
4か月前
個人
地震の揺れ回避装置
2か月前
株式会社不二工機
電磁弁
3か月前
個人
ナット
18日前
株式会社オンダ製作所
継手
8か月前
株式会社アイシン
駆動装置
8か月前
個人
吐出量監視装置
1か月前
カヤバ株式会社
ダンパ
3か月前
個人
ベルトテンショナ
7か月前
柿沼金属精機株式会社
分岐管
1か月前
カヤバ株式会社
緩衝器
6か月前
株式会社ミクニ
弁装置
8か月前
カヤバ株式会社
ダンパ
3か月前
株式会社ミクニ
弁装置
8か月前
カヤバ株式会社
緩衝器
3か月前
カヤバ株式会社
緩衝器
3か月前
株式会社三協丸筒
枠体
6か月前
個人
固着具と固着具の固定方法
4か月前
株式会社不二工機
逆止弁
8か月前
個人
固着具と固着具の固定方法
4か月前
株式会社奥村組
制振機構
7日前
株式会社奥村組
制振機構
7日前
株式会社不二工機
電動弁
8か月前
続きを見る
他の特許を見る