TOP
|
特許
|
意匠
|
商標
特許ウォッチ
Twitter
他の特許を見る
公開番号
2025133674
公報種別
公開特許公報(A)
公開日
2025-09-11
出願番号
2024117894
出願日
2024-07-23
発明の名称
制振型ガイドレール固定システム
出願人
中国計量大学
代理人
個人
主分類
B66B
7/02 20060101AFI20250904BHJP(巻上装置;揚重装置;牽引装置)
要約
【課題】エレベータの運行振動による建物への悪影響を効果的に低減し、かごの着床の安定性を確保し、エレベータの運行期間における快適性を向上させる制振型ガイドレール固定システムを提供する。
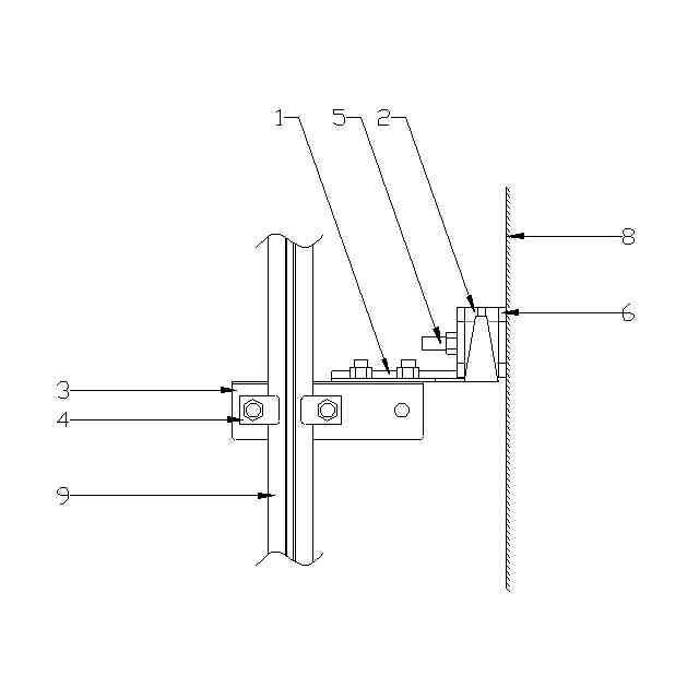
【解決手段】基板及びステーを含むブラケット1と、弾性緩衝パッド2と、アングル3と、押さえ板とを含み、前記ブラケットは、前記基板に垂直に設けられ、締結具によって昇降路壁上に取り外し可能に接続され、前記昇降路壁とブラケットとの間は、ステー上に設けられた弾性緩衝パッドによって緩衝され、前記アングルの一方のセグメントは、締結具によって基板に取り外し可能に接続され、他方のセグメントは、締結具によって複数の押さえ板4が取り外し可能に取り付けられ、各押さえ板は、アングルとともにガイドレールをしっかりと挟み込み込むことができる。
【選択図】図1
特許請求の範囲
【請求項1】
基板(11)及びステー(12)を含むブラケット(1)と、弾性緩衝パッド(2)と、アングル(3)と、押さえ板(4)とを含み、
前記ブラケット(12)は、前記基板(11)に垂直に設けられ、
締結具(5)によって昇降路壁(8)上に取り外し可能に接続され、前記昇降路壁(8)とブラケット(1)との間は、ステー(12)上に設けられた弾性緩衝パッド(2)によって緩衝され、
前記アングル(3)の一方のセグメントは、締結具(5)によって基板(11)に取り外し可能に接続され、他方のセグメン(5)トは、締結具によって複数の押さえ板(4)が取り外し可能に取り付けられ、
各押さえ板(4)は、アングル(3)とともにガイドレール(9)をしっかりと挟み込むことができることを特徴とする制振型ガイドレール固定システム。
続きを表示(約 1,000 文字)
【請求項2】
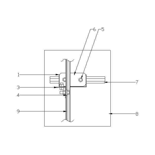
前記基板(11)の対向する両側縁には、ステー(12)に向かって折り返されたバーリング(111)がそれぞれ設けられ、前記ステー(12)は、2つのバーリング(111)の間に固定されていることを特徴とする請求項1に記載の制振型ガイドレール固定システム。
【請求項3】
前記ステー(12)の昇降路壁(8)に向かう側面と昇降路壁(8)に背向する側面には、それぞれ締結具(5)によって取り外し可能に接続されている弾性緩衝パッド(2)が重畳していることを特徴とする請求項2に記載の制振型ガイドレール固定システム。
【請求項4】
2つの弾性緩衝パッド(2)のステー(12)に背向する側には、それぞれ締結具(5)によって取り外し可能に接続されている仕切板(6)が重畳していることを特徴とする請求項3に記載の制振型ガイドレール固定システム。
【請求項5】
昇降路壁(8)に予め埋め込まれ、ノッチが外向きに設けられているチャンネル鋼(7)をさらに含み、前記ノッチの2つの長辺にそれぞれ対向して延在する内延辺(71)が設けられ、前記ステー(12)、内延辺(71)、2つの弾性緩衝パッド(2)及び2つの仕切板(6)の間は、複数の締結具(5)によって取り外し可能に接続されていることを特徴とする請求項4に記載の制振型ガイドレール固定システム。
【請求項6】
2つの前記弾性緩衝パッド(2)は、ステー(12)及び/又は貼り付けられた仕切板(6)の表面に向かって、パッド体網状凹みスジ(21)が振り分けて配置されていることを特徴とする請求項5に記載の制振型ガイドレール固定システム。
【請求項7】
前記チャンネル鋼(7)の外壁に溝体網状凹みスジが振り分けて配置されていることを特徴とする請求項5に記載の制振型ガイドレール固定システム。
【請求項8】
前記基板(11)のステー(12)が設けられる側には、複数の補強リブ(112)がさらに設けられていることを特徴とする請求項1に記載の制振型ガイドレール固定システム。
【請求項9】
各前記押さえ板(4)のアングル(3)に向かう側にそれぞれ滑り止めマットが設けられていることを特徴とする請求項1に記載の制振型ガイドレール固定システム。
【請求項10】
前記アングル(3)における締結具のそれぞれが貫通する位置決め孔は、いずれも長円孔であることを特徴とする請求項1に記載の制振型ガイドレール固定システム。
発明の詳細な説明
【技術分野】
【0001】
本発明は、エレベーター据え付けの技術分野に関し、特に、制振型ガイドレール固定システムの技術分野に関する。
続きを表示(約 1,600 文字)
【背景技術】
【0002】
エレベータの主な上下動構造は、かごと釣合おもり枠である。ここで、かごは、搭乗空間を提供し、釣合おもり枠は、ウエイト構造として、運行荷重を減少させてかごをスムーズに加速させることができる役割を果たすように、かごと常に上下に対向する必要がある。かごと釣合おもり枠は、通常、作業中にガイドレールを合わせて使用する必要がある。ガイドレールは、例えば、公開番号がCN220351420Uの実用新案に開示された組立式エレベータのガイドレールのように、エレベータの運行に適用されているガイド構造であり、一般的に、昇降路の垂直方向に固定されていることで、かごと釣合おもり枠に上下方向の直線運動のガイドを提供する。
【0003】
ガイドレールは、通常、昇降路に間接的に接続するために、ガイドレール固定システムが用いられる。従来のガイドレール固定システムは、一般的に、公開番号CN220300071Uの実用新案に開示された鋼構造エレベータ昇降路ガイドレール固定装置及び公開番号CN112299194Bの発明に開示されたエレベータ昇降路内のガイドレールブラケットのように、締結具によって昇降路に直接的に固定されている。このような取り付け方式により、エレベータの運行中に、突然の振動が発生することがある。かごがある固定点まで走行したときに、かご内にいる人がかごの揺れを大きく感じることができるとして具現化した。これは、ある上昇した高さで発生するかごの振動曲線が基準を大きく超え、通常、レール固定システムによるものだからである。
【0004】
このため、従来は、エレベーターの各取付部品が健全な状態になるように確保するために、関係者に定期的にエレベーターを点検させる。しかし、ガイドレール固定システムの建物振動への悪影響を低減することは困難である。
【先行技術文献】
【特許文献】
【0005】
中国実用新案公報CN220351420U
中国実用新案公報CN220300071U
中国特許公報CN112299194B
【発明の概要】
【発明が解決しようとする課題】
【0006】
本発明は、従来技術における問題を解決し、エレベータの運行振動による建物への悪影響を効果的に低減し、かごの着床の安定性を確保し、エレベータの運行期間における快適性を向上させる制振型ガイドレール固定システムを提供することを目的とする。
【課題を解決するための手段】
【0007】
本発明は、上記目的を達成するために、基板及びステーを含むブラケットと、弾性緩衝パッドと、アングルと、押さえ板とを含み、前記ブラケットは、前記基板に垂直に設けられ、締結具によって昇降路壁上に取り外し可能に接続され、前記昇降路壁とブラケットとの間は、ステー上に設けられた弾性緩衝パッドによって緩衝され、前記アングルの一方のセグメントは、締結具によって基板に取り外し可能に接続され、他方のセグメントは、締結具によって複数の押さえ板が取り外し可能に取り付けられ、各押さえ板は、アングルとともにガイドレールをしっかりと挟み込むことができる制振型ガイドレール固定システムを提出している。
【0008】
好ましくは、前記基板の対向する両側縁には、ステーに向かって折り返されたバーリングがそれぞれ設けられ、前記ステーは、2つのバーリングの間に固定されている。
【0009】
好ましくは、前記ステーの昇降路壁に向かう側面と昇降路壁に背向する側面には、それぞれ締結具によって取り外し可能に接続されている弾性緩衝パッドが重畳している。
【0010】
好ましくは、2つの弾性緩衝パッドのステーに背向する側には、それぞれ締結具によって取り外し可能に接続されている仕切板が重畳している。
(【0011】以降は省略されています)
この特許をJ-PlatPat(特許庁公式サイト)で参照する
関連特許
中国計量大学
電子安全クランプ
8日前
中国計量大学
制振型ガイドレール固定システム
26日前
中国計量大学
エレベータベルトの二重安全ブレーキ装置
4日前
中国計量大学
無人機のテスト用治具及びそのテスト方法
2か月前
中国計量大学
エスカレータの非操作逆転と速度超過防止装置
26日前
中国計量大学
骨材の粒径分布の決定方法及びそのシステム及び電子機器
10か月前
中国計量大学
トビイロウンカの抗菌ペプチドの発現を阻害する阻害剤とその応用
6日前
中国計量大学
トビイロウンカのガレクチンNlGAL8遺伝子とその調製および応用
6日前
中国計量大学
ロボットアームの検査及びキャリブレーション用治具及びその使用方法
2か月前
中国計量大学
web3.0向けのサービスデータ損失関数正負例サンプリング及び再推薦方法
4か月前
個人
自走手摺
2か月前
ユニパルス株式会社
吊具
4か月前
個人
海上コンテナ昇降装置
9か月前
ユニパルス株式会社
荷役装置
9か月前
ユニパルス株式会社
吊具装置
10か月前
株式会社豊田自動織機
産業車両
10か月前
株式会社いうら
車椅子用昇降機
2か月前
株式会社豊田自動織機
荷役車両
9か月前
株式会社豊田自動織機
産業車両
26日前
ユニパルス株式会社
リフト装置
4か月前
水戸工業株式会社
吊り具
6か月前
株式会社豊田自動織機
荷役車両
8か月前
個人
垂直自動搬送機
27日前
ユニパルス株式会社
荷役助力装置
5か月前
ユニパルス株式会社
荷役助力装置
3か月前
株式会社伊藤
滑り止め装置
2か月前
愛知製鋼株式会社
受け架台
1か月前
株式会社大林組
安全支援システム
1か月前
白山工業株式会社
バランサ
6か月前
個人
エアバック式レスキュー用品
今日
ユニパルス株式会社
荷役助力装置
4か月前
大栄産業株式会社
クランプ
4か月前
株式会社ユピテル
システム等
6か月前
個人
建築部材の吊り上げ装置
11か月前
株式会社キトー
タイヤ用吊具
5か月前
中国計量大学
電子安全クランプ
8日前
続きを見る
他の特許を見る