TOP
|
特許
|
意匠
|
商標
特許ウォッチ
Twitter
他の特許を見る
公開番号
2025175971
公報種別
公開特許公報(A)
公開日
2025-12-03
出願番号
2025082593
出願日
2025-05-16
発明の名称
電気設備の検電実習装置及び検電実習方法
出願人
JFEプラントエンジ株式会社
代理人
個人
主分類
H02B
3/00 20060101AFI20251126BHJP(電力の発電,変換,配電)
要約
【課題】電気設備の正しい検電の仕方を適切に実習することができ、高い実習効果が得られる検電実習装置を提供する。
【解決手段】電源回路部1と、この電源回路部1の出力端子Tを検電器測定用端子とする被検電部2を備え、電源回路部1は、スイッチ手段Sで回路を切り替えることにより、出力端子Tからの出力を、停電モードを含む2つ以上の異なる出力モードに選択的に切り替えることができるようにした。実習者は、異なる出力モードでの検電作業を実習することができる。また、出力端子Tを任意の出力モードに設定できるため、実習者が出力端子Tの出力モードを知らされない状態で検電実習することにより、実際の検電に則した実習を行うことができ、しかも、検電結果と出力モードを照合することで検電の適否をすぐに判定でき、さらに誤検知した場合にもその原因を容易に確認することができる。
【選択図】図2
特許請求の範囲
【請求項1】
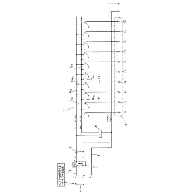
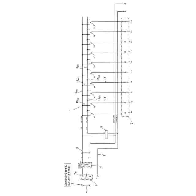
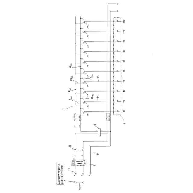
外部電源から受電し、スイッチ手段(S)で回路を切り替えることにより、出力端子(T)からの出力を、停電モードを含む2つ以上の異なる出力モードに選択的に切り替えることができる電源回路部(1)と、
該電源回路部(1)の出力端子(T)(但し、出力端子(T)に電線を介して接続された端子台の出力端子の場合を含む。)を検電器測定用端子とする被検電部(2)を備え、
盤筐体を模擬した金属製の任意の支持体に取り付けられることを特徴とする電気設備の検電実習装置。
続きを表示(約 1,900 文字)
【請求項2】
外部電源から受電し、スイッチ手段(S)で回路を切り替えることにより、出力端子(T)からの出力を、停電モードを含む2つ以上の異なる出力モードに選択的に切り替えることができる電源回路部(1)と、
該電源回路部(1)の出力端子(T)(但し、出力端子(T)に電線を介して接続された端子台の出力端子の場合を含む。)を検電器測定用端子とする被検電部(2)と、
電源回路部(1)及び被検電部(2)が設けられる筐体(3)を備えることを特徴とする電気設備の検電実習装置。
【請求項3】
前記停電モードは、出力端子(T)がいずれの電路にも接続されない未接続状態となる停電モード、又は、出力端子(T)が接地接続状態となる停電モードであることを特徴とする請求項1又は2に記載の電気設備の検電実習装置。
【請求項4】
電源回路部(1)は、出力端子(T)からの出力を、少なくとも1つの交流電圧出力モードと、少なくとも1つの直流電圧出力モードと、停電モードに選択的に切り替えることができることを特徴とする請求項1又は2に記載の電気設備の検電実習装置。
【請求項5】
外部電源から受電し、スイッチ手段(S)で回路を切り替えることにより、出力端子(T)からの出力を、出力端子(T)がいずれの電路にも接続されない未接続状態となる第1停電モードと、出力端子(T)が接地接続状態となる第2停電モードを含む3つ以上の異なる出力モードに選択的に切り替えることができる電源回路部(1)と、
該電源回路部(1)の出力端子(T)(但し、出力端子(T)に電線を介して接続された端子台の出力端子の場合を含む。)を検電器測定用端子とする被検電部(2)を備え、
盤筐体を模擬した金属製の任意の支持体に取り付けられることを特徴とする電気設備の検電実習装置。
【請求項6】
外部電源から受電し、スイッチ手段(S)で回路を切り替えることにより、出力端子(T)からの出力を、出力端子(T)がいずれの電路にも接続されない未接続状態となる第1停電モードと、出力端子(T)が接地接続状態となる第2停電モードを含む3つ以上の異なる出力モードに選択的に切り替えることができる電源回路部(1)と、
該電源回路部(1)の出力端子(T)(但し、出力端子(T)に電線を介して接続された端子台の出力端子の場合を含む。)を検電器測定用端子とする被検電部(2)と、
電源回路部(1)及び被検電部(2)が設けられる筐体(3)を備えることを特徴とする電気設備の検電実習装置。
【請求項7】
電源回路部(1)は、出力端子(T)からの出力を、少なくとも1つの交流電圧出力モードと、少なくとも1つの直流電圧出力モードと、前記第1停電モードと、前記第2停電モードに選択的に切り替えることができることを特徴とする請求項5又は6に記載の電気設備の検電実習装置。
【請求項8】
電源回路部(1)は、複数の出力端子(T)を有し、各出力端子(T)の出力モードを選択的に切り替えることができることを特徴とする請求項1、2、5、6のいずれかに記載の電気設備の検電実習装置。
【請求項9】
電源回路部(1)は三相3線AC200V用の受電端子(To)を有し、
該受電端子(To)を測定用端子とする被検相・電圧測定部(4)をさらに備えることを特徴とする請求項1、2、5、6のいずれかに記載の電気設備の検電実習装置。
【請求項10】
電源回路部(1)は、AC100Vの交流ライン(6
AC
)及びDC24Vの直流ライン(6
DC
)を有するとともに、複数の出力端子(T)及びこれに対応する複数のスイッチ手段(S)を有し、
各スイッチ手段(S)は、各出力端子(T)の出力モードを下記(1-i)~(1-iii)に選択的に切り替えることができることを特徴とする請求項1又は2に記載の電気設備の検電実習装置。
(1-i)出力端子(T)がAC100Vの交流ライン(6
AC
)と接続したAC100V出力モード
(1-ii)出力端子(T)がDC24Vの直流ライン(6
DC
)と接続したDC24V出力モード
(1-iii)出力端子(T)が交流ライン(6
AC
)及び直流ライン(6
DC
)を含むいずれの電路にも接続されない未接続状態となる停電モード
(【請求項11】以降は省略されています)
発明の詳細な説明
【技術分野】
【0001】
本発明は、電気設備の工事や保守点検の際に行われる検電作業を実習するための検電実習装置及びこの装置を用いた検電実習方法に関する。
続きを表示(約 2,000 文字)
【背景技術】
【0002】
一般に電気設備の工事や保守点検作業を行う際には、感電事故を防止するために、事前に電路の充電・停電を確認する検電が行われる。この検電では、対象となる設備(電源盤など)の電路に検電器の検知部を接触させ、検電器の反応の有無によって充電か停電かを確認する。しかし、この検電作業において、検電器の使い方を誤るなど、間違った方法で検電した場合、電路の充電を検知できず、停電状態と誤認することによって感電事故が発生することがある。
【0003】
検電器は製造メーカや機種によって或いは同じ機種でも新型・旧型の違いによって、使い方や使い易さに違いがあり、検電器の使い方を誤る原因になり得る。例えば、検電器によって、電路に対する検知部の触れ方に違いがあり、これを誤ると充電であっても反応(鳴動)しない場合がある。また、充電時の発音、発光の仕方も検電器によって異なり、誤検知の原因となり得る。さらに、検電する箇所が盤の低い位置にあるなど、検電しにくい位置にある場合も、検電の仕方を誤る原因となり得る。
【先行技術文献】
【特許文献】
【0004】
特開2022-136535号公報
【発明の概要】
【発明が解決しようとする課題】
【0005】
検電器の誤使用などによる誤検知を防ぐために、作業者は適正な検電方法を習得する必要があり、そのための検電作業の実習が必要と考えられるが、従来、高い実習効果が得られる実習方法や設備は知られていない。
特許文献1には、電気関係作業のトレーニング装置が示されているが、基本的には筐体内に検電対象となる電力機器と電圧出力装置を設置しただけの装置であり、この装置で検電の実習をしたとしても、高い実習効果は期待できない。
【0006】
したがって本発明の目的は、以上のような従来技術の課題を解決し、電気設備の正しい検電の仕方を適切に実習することができ、高い実習効果が得られる検電実習装置及び検電実習方法を提供することにある。
【課題を解決するための手段】
【0007】
上記課題を解決するための本発明の要旨は以下のとおりである。
[1]外部電源から受電し、スイッチ手段(S)で回路を切り替えることにより、出力端子(T)からの出力を、停電モードを含む2つ以上の異なる出力モードに選択的に切り替えることができる電源回路部(1)と、
該電源回路部(1)の出力端子(T)(但し、出力端子(T)に電線を介して接続された端子台の出力端子の場合を含む。)を検電器測定用端子とする被検電部(2)を備え、
盤筐体を模擬した金属製の任意の支持体に取り付けられることを特徴とする電気設備の検電実習装置。
【0008】
[2]外部電源から受電し、スイッチ手段(S)で回路を切り替えることにより、出力端子(T)からの出力を、停電モードを含む2つ以上の異なる出力モードに選択的に切り替えることができる電源回路部(1)と、
該電源回路部(1)の出力端子(T)(但し、出力端子(T)に電線を介して接続された端子台の出力端子の場合を含む。)を検電器測定用端子とする被検電部(2)と、
電源回路部(1)及び被検電部(2)が設けられる筐体(3)を備えることを特徴とする電気設備の検電実習装置。
【0009】
[3]上記[1]又は[2]の検電実習装置において、前記停電モードは、出力端子(T)がいずれの電路にも接続されない未接続状態となる停電モード、又は、出力端子(T)が接地接続状態となる停電モードであることを特徴とする電気設備の検電実習装置。
[4]上記[1]~[3]のいずれかの検電実習装置において、電源回路部(1)は、出力端子(T)からの出力を、少なくとも1つの交流電圧出力モードと、少なくとも1つの直流電圧出力モードと、停電モードに選択的に切り替えることができることを特徴とする電気設備の検電実習装置。
【0010】
[5]外部電源から受電し、スイッチ手段(S)で回路を切り替えることにより、出力端子(T)からの出力を、出力端子(T)がいずれの電路にも接続されない未接続状態となる第1停電モードと、出力端子(T)が接地接続状態となる第2停電モードを含む3つ以上の異なる出力モードに選択的に切り替えることができる電源回路部(1)と、
該電源回路部(1)の出力端子(T)(但し、出力端子(T)に電線を介して接続された端子台の出力端子の場合を含む。)を検電器測定用端子とする被検電部(2)を備え、
盤筐体を模擬した金属製の任意の支持体に取り付けられることを特徴とする電気設備の検電実習装置。
(【0011】以降は省略されています)
この特許をJ-PlatPat(特許庁公式サイト)で参照する
関連特許
個人
電気を重力で発電装置
28日前
個人
高圧電気機器の開閉器
15日前
キヤノン電子株式会社
モータ
1か月前
キヤノン電子株式会社
モータ
27日前
コーセル株式会社
電源装置
1か月前
株式会社アイドゥス企画
減反モータ
15日前
トヨタ自動車株式会社
モータ
27日前
株式会社デンソー
端子台
8日前
個人
二次電池繰返パルス放電器用印刷基板
1か月前
株式会社デンソー
電力変換装置
1か月前
ローム株式会社
半導体集積回路
6日前
本田技研工業株式会社
回転電機
1日前
トヨタ自動車株式会社
固定子の加熱装置
1か月前
株式会社TMEIC
制御装置
7日前
矢崎総業株式会社
給電装置
7日前
株式会社日立製作所
回転電機
6日前
矢崎総業株式会社
電源回路
14日前
トヨタ自動車株式会社
ステータの製造装置
28日前
日産自動車株式会社
ロータシャフト
22日前
日産自動車株式会社
ロータシャフト
22日前
ローム株式会社
モータドライバ回路
22日前
大和ハウス工業株式会社
敷設用機器
7日前
個人
非対称鏡像力を有する4層PWB電荷搬送体
22日前
山洋電気株式会社
モータ
1か月前
京商株式会社
模型用非接触電力供給システム
15日前
株式会社土井製作所
ケーブル保護管路
6日前
サンデン株式会社
モータ
今日
トヨタ自動車株式会社
可変界磁ロータ
1か月前
トヨタ紡織株式会社
ロータの製造装置
1か月前
株式会社マキタ
電動作業機
1か月前
個人
電線盗難防止方法及び電線盗難防止装置
1か月前
サンデン株式会社
モータ
今日
株式会社明治ゴム化成
ワイヤレス給電用部品
1か月前
株式会社アイシン
電力変換装置
27日前
株式会社TMEIC
電力変換装置
7日前
大阪瓦斯株式会社
充放電中継装置
28日前
続きを見る
他の特許を見る