TOP
|
特許
|
意匠
|
商標
特許ウォッチ
Twitter
他の特許を見る
公開番号
2025146229
公報種別
公開特許公報(A)
公開日
2025-10-03
出願番号
2024046898
出願日
2024-03-22
発明の名称
外装体
出願人
YKK AP株式会社
代理人
弁理士法人樹之下知的財産事務所
主分類
E06B
5/00 20060101AFI20250926BHJP(戸,窓,シャッタまたはローラブラインド一般;はしご)
要約
【課題】優れた断熱性能を有する外装体を提供すること。
【解決手段】換気パネルユニット2は、室外側パネル41と、遮熱シート44と、室外側パネル41と遮熱シート44の間に室外側密閉空間S11が形成されるように、室外側パネル41と遮熱シート44を連結する連結部43と、を備える。
【選択図】図3
特許請求の範囲
【請求項1】
室外側パネルと、
遮熱シートと、
前記室外側パネルと前記遮熱シートの間に室外側密閉空間が形成されるように、前記室外側パネルと前記遮熱シートを連結する連結部と、を備える、外装体。
続きを表示(約 1,200 文字)
【請求項2】
請求項1に記載の外装体において、
前記遮熱シートとの間に室内側密閉空間が形成されるように、前記連結部に連結された室内側パネルを備える、外装体。
【請求項3】
請求項1または請求項2に記載の外装体において、
前記連結部は、前記室外側パネルの鉛直方向の両端部に連結された一対の横連結部と、水平方向の両側部に連結された一対の縦連結部と、を備え、
前記遮熱シートは、前記一対の横連結部と前記一対の縦連結部とのうち少なくとも一方の部分に、連結されている、外装体。
【請求項4】
請求項3に記載の外装体において、
前記少なくとも一方の部分には、前記室外側密閉空間の中央側に延出するシート取付片が設けられ、
前記遮熱シートは、室内側または室外側から取り付けられる固定具により前記シート取付片に固定されている、外装体。
【請求項5】
請求項2に記載の外装体において、
前記遮熱シートは、前記室外側パネルと前記室内側パネルとの間の空間における見込み方向の略中央に設けられている、外装体。
【請求項6】
請求項1に記載の外装体において、
前記室外側パネルは、遮光性を有する、外装体。
【請求項7】
請求項2に記載の外装体において、
前記室内側パネルは、遮光性を有する、外装体。
【請求項8】
請求項2に記載の外装体において、
前記室外側パネルは、室外側パネル本体と、前記室外側パネル本体における水平方向および鉛直方向のうち一方の方向に互いに離れた位置から室内側に延出する一対の室外側取付部と、を備え、
前記室内側パネルは、室内側パネル本体と、前記室内側パネル本体における前記一方の方向に互いに離れた位置から室外側に延出し、前記一対の室外側取付部にそれぞれ取り付けられる一対の室内側取付部と、を備え、
前記連結部は、前記室外側パネルと前記室内側パネルとにより水平方向および鉛直方向のうち他方の方向の両側に形成された開口を塞ぐ一対の塞ぎ部材を備え、
前記遮熱シートは、前記一対の室外側取付部と前記一対の塞ぎ部材とのうち少なくとも一方、または、前記一対の室内側取付部と前記一対の塞ぎ部材とのうち少なくとも一方に、固定されている、外装体。
【請求項9】
請求項8に記載の外装体において、
前記一対の室内側取付部は、絶縁材を挟んで前記一対の室外側取付部にそれぞれ取り付けられる、外装体。
【請求項10】
請求項3に記載の外装体において、
前記一対の横連結部と前記一対の縦連結部とのうち少なくとも一方は、室内側連結部と、前記室内側連結部に絶縁材を挟んで取り付けられた室外側連結部と、を備える、外装体。
(【請求項11】以降は省略されています)
発明の詳細な説明
【技術分野】
【0001】
本発明は、外装体
続きを表示(約 1,400 文字)
【背景技術】
【0002】
従来、カーテンウォールなどに用いられる建築用パネルが知られている(例えば、特許文献1参照)。
特許文献1に記載の建築用パネルは、パネル枠体と、パネル枠体により囲まれる空間に配置されたハニカムコアと、ハニカムコアの表裏両面にそれぞれ一体化された金属製の表面板および裏面板と、を備える。建築用パネルは、取付金具を介して方立に取り付けられている。
特許文献1には、裏面板と方立取付面との間の空間部分に、補助パネルを組み込んでも良いことが記載されている。
【先行技術文献】
【特許文献】
【0003】
特開平5-311790号公報
【発明の概要】
【発明が解決しようとする課題】
【0004】
しかしながら、特許文献1の上記補助パネルを組み込んだ構成では、十分な断熱効果を得られないおそれがある。
【0005】
本発明の目的は、優れた断熱性能を有する外装体を提供することにある。
【課題を解決するための手段】
【0006】
本発明の外装体は、室外側パネルと、遮熱シートと、前記室外側パネルと前記遮熱シートの間に室外側密閉空間が形成されるように、前記室外側パネルと前記遮熱シートを連結する連結部と、を備える、ことを特徴とする。
【発明の効果】
【0007】
本発明によれば、優れた断熱性能を有する外装体を提供できる。
【図面の簡単な説明】
【0008】
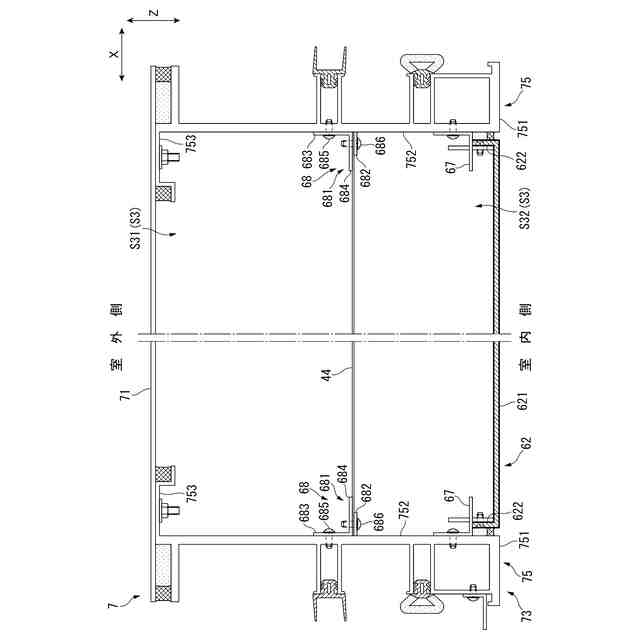
本発明の第1,第2,第3の実施形態に係るカーテンウォールを室外から見た状態を示す姿図。
第1の実施形態に係る換気パネルユニットの縦断面図。
第1の実施形態に係る換気パネルユニットの横断面図。
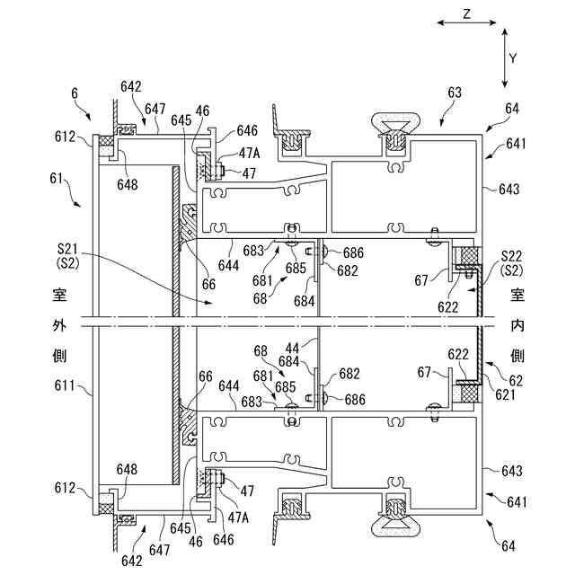
第2の実施形態に係るパネルユニットの縦断面図。
第2の実施形態に係るパネルユニットの横断面図。
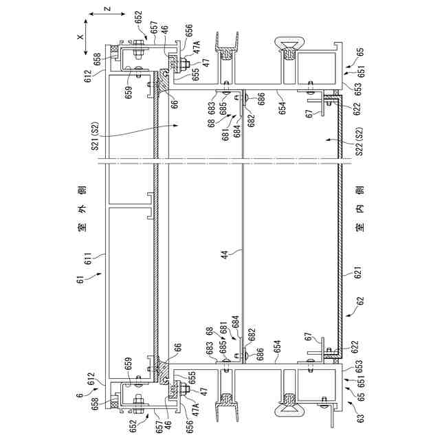
第3の実施形態に係るパネルユニットの縦断面図。
第3の実施形態に係るパネルユニットの横断面図。
【発明を実施するための形態】
【0009】
[第1の実施形態]
以下、本発明の第1の実施形態を図面に基づいて説明する。
なお、図1に示すカーテンウォール1の左右方向をX軸方向とし、カーテンウォール1の上下方向をY軸方向とし、カーテンウォール1の室内外方向(見込み方向)をZ軸方向とする。X,Y,Z軸方向は互いに直交する。
【0010】
<カーテンウォールの構成>
まず、カーテンウォール1の構成について説明する。
カーテンウォール1は、建物の外壁面を構成する。カーテンウォール1は、X軸方向およびY軸方向において互いに隣り合うカーテンウォールユニット10を備える。カーテンウォールユニット10は、ガラスパネル部11と、ガラスパネル部11のY軸方向に隣接する外装体としての換気パネルユニット2と、ガラスパネル部11の上側に位置する第1のスパンドレル部12と、換気パネルユニット2の上側に位置する第2のスパンドレル部13と、を備える。換気パネルユニット2は、室外から見たときに、X軸方向の寸法がY軸方向の寸法よりも短い縦長の長方形に形成されている。
(【0011】以降は省略されています)
この特許をJ-PlatPat(特許庁公式サイト)で参照する
関連特許
YKK AP株式会社
建具
6日前
YKK AP株式会社
建具
16日前
YKK AP株式会社
戸体
1か月前
YKK AP株式会社
外装体
2日前
YKK AP株式会社
屋根構造体
3日前
YKK AP株式会社
屋根構造体
3日前
YKK AP株式会社
屋根構造体
3日前
YKK AP株式会社
屋根構造体
3日前
YKK AP株式会社
戸車および建具
6日前
YKK AP株式会社
カーテンウォールユニット
3日前
YKK AP株式会社
パネルおよびパネル設置構造
1か月前
YKK AP株式会社
屋根構造体及び屋根構造体の施工方法
3日前
株式会社ナカオ
作業台
25日前
株式会社ESP
止水板
1か月前
中国電力株式会社
脚立
1か月前
三協立山株式会社
構造体
3か月前
三協立山株式会社
構造体
3か月前
三協立山株式会社
開口部装置
3か月前
株式会社ニチベイ
ブラインド
4か月前
三協立山株式会社
開口部装置
4か月前
三協立山株式会社
開口部装置
27日前
三協立山株式会社
開口部装置
27日前
三協立山株式会社
開口部装置
1か月前
三協立山株式会社
開口部装置
1か月前
三協立山株式会社
開口部装置
1か月前
ミサワホーム株式会社
水切り材
1か月前
不二サッシ株式会社
引違いサッシ
1か月前
株式会社TJMデザイン
脚立用ホルダー
2か月前
株式会社ニチベイ
縦型ブラインド
2か月前
株式会社大奉金属
止水構造
3か月前
株式会社LIXIL
太陽電池ガラス
6日前
三協立山株式会社
サッシの製造方法
26日前
永大産業株式会社
開閉構造体
3か月前
三協立山株式会社
エクステリア構成材
1か月前
株式会社LIXIL
建具
1か月前
株式会社LIXIL
建具
3日前
続きを見る
他の特許を見る