TOP
|
特許
|
意匠
|
商標
特許ウォッチ
Twitter
他の特許を見る
10個以上の画像は省略されています。
公開番号
2025139814
公報種別
公開特許公報(A)
公開日
2025-09-29
出願番号
2024038858
出願日
2024-03-13
発明の名称
到達立坑における掘進機の回収方法
出願人
大成建設株式会社
,
機動建設工業株式会社
代理人
個人
,
個人
主分類
E21D
9/06 20060101AFI20250919BHJP(地中もしくは岩石の削孔;採鉱)
要約
【課題】到達立坑において掘進機を効率的に回収することができ、到達立坑への掘進機の到達や回収の際の出水を防止できる、到達立坑における掘進機の回収方法を提供する。
【解決手段】分割可能な前胴22と後胴24を少なくとも備えている、推進工法もしくはシールド工法に適用される掘進機20を到達立坑60の内部に回収する、到達立坑における掘進機の回収方法であり、掘進機20を到達立坑60に到達させ、前胴22を到達立坑60の内部に進入させる、到達工程と、後胴24から前胴22を切り離し、切り離された前胴22のみを到達立坑60を介して地上に回収する、前胴回収工程とを有する。
【選択図】図14
特許請求の範囲
【請求項1】
分割可能な前胴と後胴を少なくとも備えている、推進工法もしくはシールド工法に適用される掘進機を到達立坑の内部に回収する、到達立坑における掘進機の回収方法であって、
前記掘進機を前記到達立坑に到達させ、前記前胴を該到達立坑の内部に進入させる、到達工程と、
前記後胴から前記前胴を切り離し、切り離された該前胴のみを前記到達立坑を介して地上に回収する、前胴回収工程とを有することを特徴とする、到達立坑における掘進機の回収方法。
続きを表示(約 1,100 文字)
【請求項2】
前記前胴回収工程の後に実施する、機材回収工程をさらに有し、
前記機材回収工程は、前記後胴の内部に設置されている機材を該後胴から切り離し、切り離された該機材を前記到達立坑を介して地上に回収することを特徴とする、請求項1に記載の到達立坑における掘進機の回収方法。
【請求項3】
前記到達工程の前に実施する、地盤改良工程と、低強度固化体造成工程とをさらに有し、
前記地盤改良工程は、前記到達立坑のうち、少なくとも前記掘進機が到達して該到達立坑の内部に進入する到達用坑口の周辺地盤を地盤改良し、
前記低強度固化体造成工程は、前記掘進機が掘削可能な低強度固化体を前記到達立坑の内部に造成することを特徴とする、請求項1又は2に記載の到達立坑における掘進機の回収方法。
【請求項4】
前記低強度固化体造成工程と前記到達工程との間に実施する、水充填工程をさらに有し、
前記水充填工程は、前記到達立坑の内部において少なくとも水を地下水位まで充填することを特徴とする、請求項3に記載の到達立坑における掘進機の回収方法。
【請求項5】
前記地盤改良工程と前記低強度固化体造成工程の間に実施する、受け台設置工程をさらに有し、
前記受け台設置工程は、前記到達立坑の内部における前記到達用坑口の下方位置に、進入した前記前胴を受けて載置する受け台を設置することを特徴とする、請求項4に記載の到達立坑における掘進機の回収方法。
【請求項6】
前記到達工程の後に実施する、隙間閉塞工程をさらに有し、
前記隙間閉塞工程は、前記後胴、及び/又は該後胴の掘進方向後方に連なるトンネル函体と、周辺の地盤との間の隙間に対して、該後胴、及び/又は該トンネル函体の内部から充填材を充填することを特徴とする、請求項5に記載の到達立坑における掘進機の回収方法。
【請求項7】
前記隙間閉塞工程の後に実施する、排水工程をさらに有し、
前記排水工程は、前記到達立坑の内部に充填されている水を排水し、この排水の過程もしくは完了の段階で復水がないことを確認し、
前記排水工程において復水がある場合は、前記隙間閉塞工程を再度実施することを特徴とする、請求項6に記載の到達立坑における掘進機の回収方法。
【請求項8】
前記地盤改良工程と前記低強度固化体造成工程の間に実施する、到達用坑口を補強しつつ形成する、到達用坑口補強形成工程をさらに有し、
前記到達用坑口補強形成工程は、前記到達立坑の内部において前記到達用坑口の周囲を補強し、鏡切りを行うことを特徴とする、請求項7に記載の到達立坑における掘進機の回収方法。
発明の詳細な説明
【技術分野】
【0001】
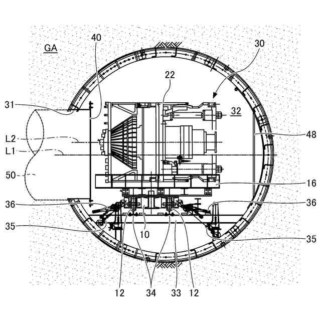
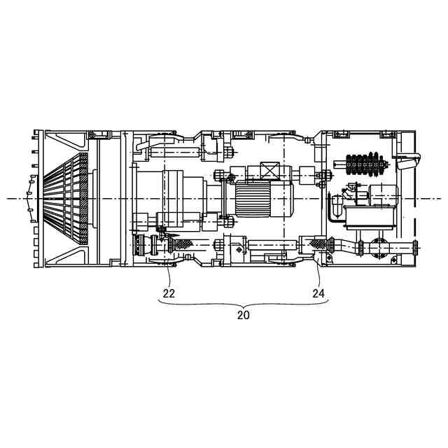
本発明は、到達立坑における掘進機の回収方法に関する。
続きを表示(約 1,800 文字)
【背景技術】
【0002】
推進工法やシールド工法では、例えば到達立坑に掘進機(もしくは推進機で、以下、「掘進機」という)が到達した後に、到達した掘進機を再利用するべく回収する場合があり、このような場合には到達立坑において掘進機を到達させる際の措置や到達した掘進機の回収方法が課題となる。
例えば、到達立坑の内部にエントランスリングやバルクヘッドを設置する措置があるが、到達立坑が小さい場合や内部が狭隘な場合に、到達した掘進機を解体するためのスペースを確保し難いことから好ましくない。
さらに、到達立坑における掘進機の回収の際に、掘進機やトンネル函体群(セグメントトンネルや推進トンネル)と地盤との間に生じ得る水道を介して到達立坑に地下水が出水する恐れがある。
【0003】
ここで、特許文献1には、掘進機の回収方法が提案されている。この回収方法は、掘進機で地山を削孔し、掘進機の前部のスキンプレートが到達立坑に露出するまで推進し、掘進機の前部のスキンプレートを後部のスキンプレートと分離して前部分を到達立坑から回収し、掘進機の後部のスキンプレートが到達立坑に露出するまで更に推進し、掘進機の後部のスキンプレートを後続の推進管と切り離して到達立坑から回収する方法である。
【先行技術文献】
【特許文献】
【0004】
特開2009-41241号公報
【発明の概要】
【発明が解決しようとする課題】
【0005】
特許文献1に記載される掘進機の回収方法は、掘進機の前部を先行して到達立坑に受け入れ、前部を後部から分離して回収した後に、後部を到達立坑の内部に推進させ、後部を推進管と切り離して回収することから、掘進機の解体に手間と時間を要し、さらには、前部を解体した後にさらに後部を到達立坑へ進入させる際に到達立坑へ地下水が出水することが懸念される。
【0006】
本発明は、到達立坑において掘進機を効率的に回収することができ、到達立坑への掘進機の到達や回収の際の出水を防止できる、到達立坑における掘進機の回収方法を提供することを目的としている。
【課題を解決するための手段】
【0007】
前記目的を達成すべく、本発明による到達立坑における掘進機の回収方法の一態様は、
分割可能な前胴と後胴を少なくとも備えている、推進工法もしくはシールド工法に適用される掘進機を到達立坑の内部に回収する、到達立坑における掘進機の回収方法であって、
前記掘進機を前記到達立坑に到達させ、前記前胴を該到達立坑の内部に進入させる、到達工程と、
前記後胴から前記前胴を切り離し、切り離された該前胴のみを前記到達立坑を介して地上に回収する、前胴回収工程とを有することを特徴とする。
【0008】
本態様によれば、掘進機の前胴が到達立坑に到達した際に前胴を後胴から切り離し、前胴のみを回収することにより、掘進機の効率的な回収を実現できる。
また、前胴のみを到達立坑に進入させて後胴から切り離し、回収することから、到達立坑の内部が狭隘な場合でも、前胴の解体のための十分なスペースを確保することができる。
さらに、後胴は回収せず、到達立坑に到達した状態で残置する(後胴は到達立坑に到達したトンネルの一部と見なす)ことから、後胴をさらに到達立坑に引き込む際に到達立坑に地下水が出水することを防止できる。
【0009】
ここで、回収対象の掘進機を用いたトンネルの施工方法は、推進工法とシールド工法のいずれであってもよい。また、掘進機は、1つの前胴と1つの後胴により構成される形態の他にも、2つの前胴と2つの後胴等、前胴と後胴が複数存在する形態も含まれてよい。
【0010】
また、本発明による到達立坑における掘進機の回収方法の他の態様は、
前記前胴回収工程の後に実施する、機材回収工程をさらに有し、
前記機材回収工程は、前記後胴の内部に設置されている機材を該後胴から切り離し、切り離された該機材を前記到達立坑を介して地上に回収することを特徴とする。
(【0011】以降は省略されています)
この特許をJ-PlatPat(特許庁公式サイト)で参照する
関連特許
大成建設株式会社
推定方法
10日前
大成建設株式会社
木質複合構造
1か月前
大成建設株式会社
ペレット製造装置
1か月前
大成建設株式会社
摩擦制振ダンパー
1か月前
大成建設株式会社
既存建物の解体方法
1か月前
大成建設株式会社
床版接合部の設計方法
1か月前
大成建設株式会社
杭の施工方法および杭
1か月前
大成建設株式会社
木材性状推定システム
25日前
大成建設株式会社
木材縦弾性係数推定システム
25日前
大成建設株式会社
足場装置および足場構築方法
11日前
大成建設株式会社
土壌改良剤、及び土壌改良方法
19日前
大成建設株式会社
地下水排水構造と地下水排水方法
1か月前
大成建設株式会社
免震基礎構造およびその構築方法
23日前
大成建設株式会社
異種コンクリートの切替り特定方法
1か月前
大成建設株式会社
到達立坑における掘進機の回収方法
1か月前
大成建設株式会社
単杭の極限先端支持力度の評価方法
16日前
大成建設株式会社
凍結地盤の掘削土の排土装置と排土方法
1か月前
大成建設株式会社
内空変位計測システム及び内空変位計測方法
9日前
大成建設株式会社
既設トンネルの坑口補強構造と坑口補強方法
1か月前
大成建設株式会社
吊荷向き制御システムおよびブレード設置方法
1か月前
大成建設株式会社
消音設計支援システム、防振設計支援システム
9日前
大成建設株式会社
既設トンネルと分岐トンネルの接合構造と接合方法
1か月前
大成建設株式会社
上面増厚床版の非破壊評価方法及び非破壊評価システム
1か月前
大成建設株式会社
上下の既設トンネルを繋ぐ接合トンネルとその施工方法
1か月前
大成建設株式会社
鋼管により形成される立坑の坑口補強構造と坑口補強方法
1か月前
大成建設株式会社
作業環境監視システム及び作業環境監視システムの監視方法
1か月前
大成建設株式会社
インバート変位計測システムおよびインバート変位計測方法
10日前
大成建設株式会社
遊離脂肪酸の分離方法および遊離脂肪酸生産微生物の培養方法
1か月前
大成建設株式会社
積層体部材、構造体、積層体部材を用いて構造体を構築する方法
9日前
大成建設株式会社
接触回避システム
1か月前
大成建設株式会社
半潜水浮体式基礎
1か月前
大成建設株式会社
塔体の建て起こし装置
1か月前
アキレス株式会社
養生シート製品、養生区画、及び養生区画の構築方法
16日前
大成建設株式会社
既設橋脚におけるアンカーボルトの施工方法およびブラケットの取付構造
12日前
大成建設株式会社
分岐トンネル施工用の発進設備と、分岐トンネル施工用の掘進機の発進方法
1か月前
株式会社渋谷潜水工業
切断装置
18日前
続きを見る
他の特許を見る