TOP
|
特許
|
意匠
|
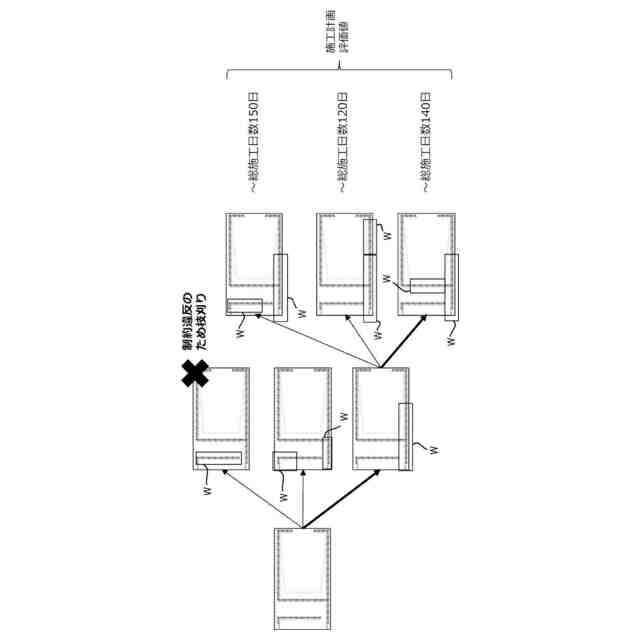
商標
特許ウォッチ
Twitter
他の特許を見る
10個以上の画像は省略されています。
公開番号
2025138493
公報種別
公開特許公報(A)
公開日
2025-09-25
出願番号
2024037614
出願日
2024-03-11
発明の名称
施工計画立案装置、施工計画立案方法、及び施工計画立案プログラム
出願人
NTT株式会社
,
株式会社EARTHBRAIN
代理人
弁理士法人太陽国際特許事務所
主分類
G06Q
50/08 20120101AFI20250917BHJP(計算;計数)
要約
【課題】管工事の施工計画の立案に要する時間を短縮しつつ、施工計画の精度を向上させる。
【解決手段】施工計画立案装置10は、管工事の図面である管工事図面、及び管の諸元である管諸元を含む管工事情報を取得する取得部101と、管工事図面及び管諸元に基づいて有向グラフを構築する加工部102と、有向グラフを数理的アルゴリズムに基づいて探索することにより管工事に対応する施工計画を立案する立案部103と、施工計画の評価値を計算する評価部104と、探索の探索過程で得られた1つ以上の施工計画と施工計画の評価値を出力する出力部105と、を備える。
【選択図】図2
特許請求の範囲
【請求項1】
管工事の図面である管工事図面、及び管の諸元である管諸元を含む管工事情報を取得する取得部と、
前記管工事情報に含まれる前記管工事図面及び前記管諸元に基づいて有向グラフを構築する加工部と、
を備えた施工計画立案装置。
続きを表示(約 1,200 文字)
【請求項2】
前記管工事情報は、施工条件を更に含み、
前記有向グラフに対して、前記施工条件を制約条件として設定すると共に、前記有向グラフを数理的アルゴリズムに基づいて探索することにより前記管工事に対応する施工計画を立案する立案部と、
前記施工計画の評価値を計算する評価部と、
前記探索の探索過程で得られた1つ以上の施工計画及び当該施工計画の評価値を出力する出力部と、
を更に備えた、
請求項1に記載の施工計画立案装置。
【請求項3】
前記管工事情報は、建設機械の諸元及び台数、輸送車両の諸元及び台数、及び歩掛りを更に含み、
前記加工部は、前記管工事図面及び前記管諸元に基づいて、マンホールをノード、管をエッジとして表現し、管の埋設深さに基づいて、エッジの向きを設定した前記有向グラフを構築し、前記有向グラフの各エッジとノードに対して、前記建設機械の諸元及び台数、前記輸送車両の諸元及び台数、及び、前記歩掛りに基づいて施工所要時間を設定し、
前記立案部は、前記加工部により構築された前記有向グラフに対して前記数理的アルゴリズムを適用し、ノードとエッジを探索することにより、前記建設機械及び前記輸送車両の少なくとも一方の割り当て方法を決定する、
請求項2に記載の施工計画立案装置。
【請求項4】
前記数理的アルゴリズムは、探索機能を有し、
前記立案部は、前記探索機能を用いて、過去の施工計画の評価値を利用して現在の評価値を改善するように探索を行いながら、前記施工計画を立案する、
請求項2に記載の施工計画立案装置。
【請求項5】
前記数理的アルゴリズムは、深さ優先探索機能又は幅優先探索機能を有し、
前記立案部は、前記深さ優先探索機能又は前記幅優先探索機能を用いて、グラフ構造の深さ又は幅の特徴を利用しながら探索を行うことにより、前記施工計画を立案する、
請求項2に記載の施工計画立案装置。
【請求項6】
前記立案部は、前記数理的アルゴリズムによる探索の際に、前記施工条件の制約に違反する探索結果が得られた場合、当該探索結果が次回以降の探索で選択されないように処理する、
請求項2に記載の施工計画立案装置。
【請求項7】
施工計画立案装置が、
管工事の図面である管工事図面、及び管の諸元である管諸元を含む管工事情報を取得し、
前記管工事情報に含まれる前記管工事図面及び前記管諸元に基づいて有向グラフを構築する、
施工計画立案方法。
【請求項8】
コンピュータを、
請求項1~請求項6の何れか1項に記載の施工計画立案装置が備える各部として機能させるための施工計画立案プログラム。
発明の詳細な説明
【技術分野】
【0001】
開示の技術は、施工計画立案装置、施工計画立案方法、及び施工計画立案プログラムに関する。
続きを表示(約 1,500 文字)
【背景技術】
【0002】
工事の施工計画の立案は、機械、労務、材料の組合せを考慮しながら、稼働率が高く、かつ実現可能な計画を立案する必要があり、高度な専門知識と経験を要求される作業である。
【0003】
現在、ビル建設の分野では、遺伝的アルゴリズムなどのヒューリスティックを用いた施工計画立案方法が試みられている(例えば、非特許文献1を参照)。これらのアルゴリズムは、図面や諸元などの情報を説明変数として入力とし、制約条件を満たす解の中から評価値の良い解を選択する。
【0004】
また、近年では水道管のレイアウトを強化学習により最適化する事例なども現れている(例えば、非特許文献2を参照)。
【0005】
また、非特許文献3では、行政文書として管工事施工計画書を立案する手引きが公開されている。
【先行技術文献】
【非特許文献】
【0006】
Construction scheduling using Genetic Algorithm based on Building Information Model, https://dl.acm.org/doi/abs/10.1016/j.eswa.2014.05.047
Automatic Design Method of Building Pipeline Layout Based on Deep Reinforcement Learning. https://arxiv.org/abs/2305.10760
大津市企業局施工計画書作成の手引き(案)(配管工事編)について(平成31年4月改定), https://www.city.otsu.lg.jp/soshiki/080/2822/g/koji/23531.html
【発明の概要】
【発明が解決しようとする課題】
【0007】
しかしながら、水道管設置をはじめとする管工事の場合、標準化された施工計画立案プロセスが存在しないため、各現場の地理的および環境的条件を考慮しながら、工数をかけて人手で計画立案を行っているのが現状である。さらに、作業者のスキルレベルや気象条件などの影響で工事現場は常に変化するため、以前のプロジェクトからの知見を次のプロジェクトに完全に適用することはできず、臨機応変に施工計画を見直しながら施工管理を行っている。このように、施工計画の立案には、膨大な時間と労力が必要となるため、その効率化が課題となっている。
【0008】
上記非特許文献1に記載の技術では、理論保証のある数理的アルゴリズムでは解けないような計算量の多い複雑な問題に対し、比較的効率的に解を導出する能力があるが、同様の技術を管工事の分野には適用した事例は存在しない。管工事は、ビル建設とは異なり、管路の配置、接続の複雑性、および地理的条件が異なるため、ビル建設で用いられるアルゴリズムを管工事にそのまま適用することはできない。
【0009】
また、上記非特許文献2に記載の技術では、施工計画の立案については人手での計画に任されているのが現状である。また、上記非特許文献3では、作業手順、安全管理などの記述がある一方、施工手順の立案指針は記述されていない。
【0010】
開示の技術は、上記の点に鑑みてなされたものであり、管工事の施工計画の立案に要する時間を短縮しつつ、施工計画の精度を向上させることができる施工計画立案装置を提供することを目的とする。
【課題を解決するための手段】
(【0011】以降は省略されています)
この特許をJ-PlatPat(特許庁公式サイト)で参照する
関連特許
NTT株式会社
計算装置
10日前
NTT株式会社
光デバイス
1か月前
NTT株式会社
圧力センサ
1か月前
NTT株式会社
信号送信装置
1か月前
NTT株式会社
光信号処理装置
1か月前
NTT株式会社
推定装置及び推定方法
1か月前
NTT株式会社
復号装置及び復号方法
24日前
NTT株式会社
解析装置および解析方法
1か月前
NTT株式会社
通信システム、及び通信方法
1か月前
NTT株式会社
情報処理装置、及び情報処理方法
18日前
NTT株式会社
情報処理装置、及び情報処理方法
18日前
NTT株式会社
秘匿計算システム及び秘匿計算方法
1か月前
NTT株式会社
検索装置、検索方法及びプログラム
1か月前
NTT株式会社
交通量推定装置及び交通量推定方法
1か月前
NTT株式会社
映像処理装置、方法及びプログラム
28日前
NTT株式会社
秘匿計算システム及び秘匿計算方法
1か月前
NTT株式会社
通信システム、方法及びプログラム
24日前
NTT株式会社
通信システム、方法及びプログラム
24日前
NTT株式会社
情報処理装置、方法およびプログラム
1か月前
NTT株式会社
評価装置、評価方法およびプログラム
6日前
NTT株式会社
光ファイバの群遅延時間測定システム
1か月前
NTT株式会社
イオン伝送装置、及びイオン伝送方法
1か月前
NTT株式会社
電子署名システム、方法及びプログラム
24日前
NTT株式会社
データ解析装置、方法およびプログラム
1か月前
NTT株式会社
座屈剥離構造の予測装置および予測方法
24日前
NTT株式会社
量子鍵配送システム及び量子鍵配送方法
19日前
NTT株式会社
微生物の土壌中での生存性を調節する方法
19日前
NTT株式会社
測定装置、測定方法、及び、測定プログラム
20日前
NTT株式会社
推論装置、学習装置、推論方法、及びプログラム
1か月前
NTT株式会社
推定装置、復元装置、推定方法、およびプログラム
17日前
NTT株式会社
情報処理システム、情報処理装置および情報処理方法
25日前
NTT株式会社
通信品質予測装置、通信品質予測方法、及びプログラム
1か月前
NTT株式会社
組合せ最適化方法、組合せ最適化装置、及びプログラム
28日前
NTT株式会社
伝搬グラフ復元装置、伝搬グラフ復元方法、及びプログラム
24日前
NTT株式会社
生成装置、再生システム、生成方法、再生方法、およびプログラム
1か月前
NTT株式会社
施工計画立案装置、施工計画立案方法、及び施工計画立案プログラム
1か月前
続きを見る
他の特許を見る