TOP
|
特許
|
意匠
|
商標
特許ウォッチ
Twitter
他の特許を見る
公開番号
2025121171
公報種別
公開特許公報(A)
公開日
2025-08-19
出願番号
2024016454
出願日
2024-02-06
発明の名称
水処理装置およびその運転方法
出願人
オルガノ株式会社
代理人
個人
,
個人
主分類
C02F
1/44 20230101AFI20250812BHJP(水,廃水,下水または汚泥の処理)
要約
【課題】蒸気殺菌処理が行われる水処理装置において水の滞留を抑制する。
【解決手段】水処理装置1は、少なくとも1つの限外ろ過膜モジュール11~14を有し、少なくとも1つの限外ろ過膜モジュール11~14が、一端側で濃縮水出口に近接して設けられた第1の透過水出口と、他端側で被処理水入口に近接して設けられた第2の透過水出口とを有する、限外ろ過膜装置10と、第1の透過水出口に接続された第1のラインL2と、第2の透過水出口に接続された第2のラインL4と、第2のラインL4に設けられた開閉弁V2と、開閉弁V2の上流側で第2のラインL4から分岐して第1のラインL2に合流する第3のラインL7と、を有している。
【選択図】図1
特許請求の範囲
【請求項1】
少なくとも1つの限外ろ過膜モジュールを有し、前記少なくとも1つの限外ろ過膜モジュールが、一端側で濃縮水出口に近接して設けられた第1の透過水出口と、他端側で被処理水入口に近接して設けられた第2の透過水出口とを有する、限外ろ過膜装置と、
前記第1の透過水出口に接続された第1のラインと、
前記第2の透過水出口に接続された第2のラインと、
前記第2のラインに設けられた開閉弁と、
前記開閉弁の上流側で前記第2のラインから分岐して前記第1のラインに合流する第3のラインと、を有する水処理装置。
続きを表示(約 1,100 文字)
【請求項2】
前記限外ろ過膜装置を滅菌するために前記限外ろ過膜装置に蒸気を導入する蒸気導入手段を有し、
前記開閉弁は、前記蒸気導入手段により導入される蒸気が前記第2のラインを流れるときに開放され、前記限外ろ過膜装置からの透過水が前記第2のラインを流れるときに閉鎖される、請求項1に記載の水処理装置。
【請求項3】
前記第2のラインのうち前記開閉弁の下流側に設けられた凝縮水排出機構を有する、請求項2に記載の水処理装置。
【請求項4】
前記第2のラインとの接続点における前記第3のラインの中心から前記開閉弁の閉止位置までの距離は、前記第2のラインの内径の6倍以内である、請求項1から3のいずれか1項に記載の水処理装置。
【請求項5】
前記第3のラインに設けられ、前記第2のラインから前記第3のラインを介して前記第1のラインに流れる透過水の流量を調整する流量調整手段を有する、請求項1から3のいずれか1項に記載の水処理装置。
【請求項6】
前記少なくとも1つの限外ろ過膜モジュールが、並列に接続された複数の限外ろ過膜モジュールを含み、
前記複数の限外ろ過膜モジュールは、前記複数の限外ろ過膜モジュールに被処理水を供給する給水ラインの上流側に位置する限外ろ過膜モジュールほど、前記第1のラインの上流側かつ前記第2のラインの上流側に位置するように、前記第1のラインと前記第2のラインとに接続されている、請求項1から3のいずれか1項に記載の水処理装置。
【請求項7】
前記複数の限外ろ過膜モジュールの前記濃縮水出口に接続された第4のラインを有し、
前記複数の限外ろ過膜モジュールは、前記給水ラインの上流側に位置する限外ろ過膜モジュールほど、前記第4のラインの上流側に位置するように、前記第4のラインに接続されている、請求項6に記載の水処理装置。
【請求項8】
少なくとも1つの限外ろ過膜モジュールを有し、前記少なくとも1つの限外ろ過膜モジュールが、一端側で濃縮水出口に近接して設けられた第1の透過水出口と、他端側で被処理水入口に近接して設けられた第2の透過水出口とを有する、限外ろ過膜装置と、前記第1の透過水出口に接続された第1のラインと、前記第2の透過水出口に接続された第2のラインとを有する水処理装置の運転方法であって、
前記限外ろ過膜装置からの透過水を前記第1のラインと前記第2のラインに流通させる工程と、
前記第2のラインを流れる透過水を、前記第2のラインに設けられた開閉弁の上流側で該第2のラインから分岐した第3のラインを介して、前記第1のラインを流れる透過水に合流させる工程と、を含む、水処理装置の運転方法。
発明の詳細な説明
【技術分野】
【0001】
本発明は、水処理装置およびその運転方法に関する。
続きを表示(約 1,400 文字)
【背景技術】
【0002】
近年、医薬品製造などに使用される純水(精製水や注射用水など)を製造する装置として、エネルギー効率や経済性の観点から、蒸留器の代わりに、限外ろ過(UF)膜装置を備えたものが用いられている。このような純水製造装置においても、従来通り、菌や微生物の発生を阻止することを目的として、高温(例えば、121℃以上)の蒸気により系内を滅菌する滅菌処理が定期的に行われている(例えば、特許文献1参照)。
【0003】
蒸気滅菌処理が行われるUF膜装置では、通常、UF膜モジュールの上下2か所に設けられた透過水出口のうち上部透過水出口にのみ透過水ラインが接続され、下部透過水出口には、滅菌処理中に生じる凝縮水を外部に排出するための排出ラインが接続されている(例えば、特許文献2参照)。
【先行技術文献】
【特許文献】
【0004】
特許第7365479号公報
国際公開第2013/137027号
【発明の概要】
【発明が解決しようとする課題】
【0005】
しかしながら、UF膜モジュールに設けられた上述の排出ラインは、通常運転(純水製造)時には使用されないため、その内部に水が滞留し、菌などによる汚染が発生する可能性がある。
【0006】
そこで、本発明の目的は、蒸気殺菌処理が行われる水処理装置において水の滞留を抑制することである。
【課題を解決するための手段】
【0007】
上述した目的を達成するために、本発明の水処理装置は、少なくとも1つの限外ろ過膜モジュールを有し、少なくとも1つの限外ろ過膜モジュールが、一端側で濃縮水出口に近接して設けられた第1の透過水出口と、他端側で被処理水入口に近接して設けられた第2の透過水出口とを有する、限外ろ過膜装置と、第1の透過水出口に接続された第1のラインと、第2の透過水出口に接続された第2のラインと、第2のラインに設けられた開閉弁と、開閉弁の上流側で第2のラインから分岐して第1のラインに合流する第3のラインと、を有している。
【0008】
また、本発明の水処理装置の運転方法は、少なくとも1つの限外ろ過膜モジュールを有し、少なくとも1つの限外ろ過膜モジュールが、一端側で濃縮水出口に近接して設けられた第1の透過水出口と、他端側で被処理水入口に近接して設けられた第2の透過水出口とを有する、限外ろ過膜装置と、第1の透過水出口に接続された第1のラインと、第2の透過水出口に接続された第2のラインとを有する水処理装置の運転方法であり、限外ろ過膜装置からの透過水を第1のラインと第2のラインに流通させる工程と、第2のラインを流れる透過水を、第2のラインに設けられた開閉弁の上流側で第2のラインから分岐した第3のラインを介して、第1のラインを流れる透過水に合流させる工程と、を含んでいる。
【発明の効果】
【0009】
本発明によれば、蒸気殺菌処理が行われる水処理装置において水の滞留を抑制することができる。
【図面の簡単な説明】
【0010】
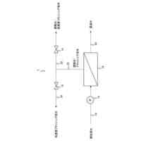
一実施形態に係る注射用水製造装置の概略構成図である。
【発明を実施するための形態】
(【0011】以降は省略されています)
この特許をJ-PlatPat(特許庁公式サイト)で参照する
関連特許
オルガノ株式会社
薬液精製システム
7日前
オルガノ株式会社
電気式脱イオン水製造装置
1か月前
オルガノ株式会社
水処理装置および水処理方法
1日前
オルガノ株式会社
水処理装置および水処理方法
1日前
オルガノ株式会社
水処理方法および水処理装置
1か月前
オルガノ株式会社
水処理装置およびその運転方法
1か月前
オルガノ株式会社
水処理装置およびその運転方法
1か月前
オルガノ株式会社
水処理装置およびその運転方法
1か月前
オルガノ株式会社
尿素処理装置および尿素処理方法
8日前
オルガノ株式会社
水処理システムおよびその運転方法
9日前
オルガノ株式会社
水処理システムおよびその運転方法
1か月前
オルガノ株式会社
水処理システムおよびその運転方法
1か月前
オルガノ株式会社
冷却水系制御方法および冷却水系制御装置
21日前
オルガノ株式会社
電気式脱イオン水製造装置及びその運転方法
2か月前
オルガノ株式会社
情報処理装置、判定方法および水処理システム
9日前
オルガノ株式会社
電池収容体、電池モジュール、および電池パック
3日前
オルガノ株式会社
情報処理装置、情報処理方法および水処理システム
1か月前
オルガノ株式会社
水処理設備、制御装置、運転方法およびプログラム
2日前
オルガノ株式会社
液体処理システム、情報処理装置および情報処理方法
22日前
オルガノ株式会社
冷却水系の薬注制御方法および冷却水系の薬注制御装置
21日前
オルガノ株式会社
純水製造システム、回収処理水供給装置および純水製造方法
21日前
オルガノ株式会社
汚泥処理システム、制御装置、汚泥処理方法およびプログラム
1か月前
オルガノ株式会社
非粒子状有機多孔質吸収体、および非粒子状有機多孔質吸収体の製造方法
1か月前
オルガノ株式会社
水処理装置、水処理システム、水処理方法、及び水処理システムの水処理方法
1か月前
オルガノ株式会社
イオン交換装置および超純水製造装置
1か月前
オルガノ株式会社
懸濁物質濃度の測定装置、懸濁物質濃度の測定方法、晶析反応システム、および晶析反応方法
29日前
オルガノ株式会社
使用済み非再生型混床イオン交換樹脂の分離方法および再利用方法ならびに単床イオン交換樹脂の製造方法
1か月前
東レ株式会社
浄水器
21日前
栗田工業株式会社
排水回収装置
7日前
三浦工業株式会社
汚泥減容方法
8日前
個人
浄水装置
21日前
栗田工業株式会社
用水の水質予測方法
7日前
株式会社石垣
汚泥性状予測方法及び汚泥性状一定制御方法
11日前
栗田工業株式会社
有機性排水の生物処理方法
14日前
株式会社神鋼環境ソリューション
貯留槽
今日
水ing株式会社
廃溶液の処理方法
1日前
続きを見る
他の特許を見る