TOP
|
特許
|
意匠
|
商標
特許ウォッチ
Twitter
他の特許を見る
公開番号
2025175412
公報種別
公開特許公報(A)
公開日
2025-12-03
出願番号
2024081510
出願日
2024-05-20
発明の名称
PC部材の接合方法、PC部材の接合構造、及びグラウト充填方法
出願人
株式会社大林組
,
三井住友建設株式会社
代理人
弁理士法人一色国際特許事務所
主分類
E04G
21/12 20060101AFI20251126BHJP(建築物)
要約
【課題】PC部材を接合する際のグラウト充填を効率的に行えるようにする。
【解決手段】鉄筋が側方に突出する第1の側面を有する第1のPC部材と、前記第1のPC部材の側方に設けられ、複数のスリーブ継手が埋設されると共に前記スリーブ継手に前記鉄筋を挿入するための鉄筋挿入口が露出する第2の側面を備える第2のPC部材とを、前記第1の側面及び前記第2の側面にて接合するPC部材の接合方法であって、前記第1のPC部材と前記第2のPC部材とを、前記スリーブ継手に前記鉄筋挿入口から前記鉄筋が挿入されて、前記第1の側面と前記第2の側面との間に目地が形成されるように設置する設置工程と、前記複数のスリーブ継手の何れか一つに、グラウトを注入し、前記一つのスリーブ継手から前記目地にグラウトを流入させることにより、前記目地と前記複数のスリーブ継手とに連続してグラウトを充填するグラウト充填工程と、を備える。
【選択図】図2
特許請求の範囲
【請求項1】
鉄筋が側方に突出する第1の側面を有する第1のPC部材と、前記第1のPC部材の側方に設けられ、複数のスリーブ継手が埋設されると共に前記スリーブ継手に前記鉄筋を挿入するための鉄筋挿入口が露出する第2の側面を備える第2のPC部材とを、前記第1の側面及び前記第2の側面にて接合するPC部材の接合方法であって、
前記第1のPC部材と前記第2のPC部材とを、前記スリーブ継手に前記鉄筋挿入口から前記鉄筋が挿入されて、前記第1の側面と前記第2の側面との間に目地が形成されるように設置する設置工程と、
前記複数のスリーブ継手の何れか一つにグラウトを注入し、前記何れか一つのスリーブ継手から前記鉄筋挿入口を通して前記目地にグラウトを流入させ、前記目地から前記何れか一つのスリーブ継手以外のスリーブ継手に前記鉄筋挿入口を通してグラウトを流入させることにより、前記目地と前記複数のスリーブ継手とに連続してグラウトを充填するグラウト充填工程と、
を備えるPC部材の接合方法。
続きを表示(約 1,100 文字)
【請求項2】
前記第2のPC部材に、一端側において前記何れか一つのスリーブ継手の内部と連通し、他端が前記第2のPC部材の前記側面以外の表面又は前記第2のPC部材の外部で開口するグラウト注入通路を形成しておき、
前記グラウト充填工程では、前記グラウト注入通路を通して前記一つのスリーブ継手にグラウトを注入する請求項1に記載のPC部材の接合方法。
【請求項3】
前記第2のPC部材に、一端側において前記複数のスリーブ継手の内部にそれぞれ連通し、他端が前記第2のPC部材の前記側面以外の表面又は前記第2のPC部材の外部で開口する複数のグラウト排出通路を形成しておき、
前記複数のグラウト排出通路の全ての開口からグラウトが流出したことをもって、前記複数のスリーブ継手の全てにグラウトが充填されたと判断する請求項1又は2に記載のPC部材の接合方法。
【請求項4】
前記何れか一つのスリーブ継手は、前記目地の高さ方向中央よりも低い位置に設けられたスリーブ継手である請求項1~3のうち何れか1項に記載のPC部材の接合方法。
【請求項5】
前記複数のスリーブ継手は、上下複数段に設けられ、
前記グラウト充填工程では、最下段の前記スリーブ継手の何れか一つにグラウトを注入する請求項4に記載のPC部材の接合方法。
【請求項6】
前記第1のPC部材は梁部材又は柱梁仕口部材であり、前記第2のPC部材は梁部材である請求項1~5の何れか1項に記載のPC部材の接合方法。
【請求項7】
前記第1のPC部材と前記第2のPC部材とを、請求項1~6のうち何れか1項に記載の方法により接合してなるPC部材の接合構造。
【請求項8】
鉄筋が側方に突出する第1の側面を有する第1のPC部材と、前記第1のPC部材の側方に設けられ、複数のスリーブ継手が埋設されると共に前記スリーブ継手に前記鉄筋を挿入するための鉄筋挿入口が露出する第2の側面を備える第2のPC部材とを、前記第1の側面及び前記第2の側面にて接合するにあたり、前記第1の側面と前記第2の側面との間の目地と、前記スリーブ継手とにグラウトを充填する方法であって、
前記複数のスリーブ継手の何れか一つにグラウトを注入し、前記何れか一つのスリーブ継手から前記鉄筋挿入口を通して前記目地にグラウトを流入させ、グラウトを前記目地から前記何れか一つのスリーブ継手以外のスリーブ継手に前記鉄筋挿入口を通して流入させることにより、前記目地と前記複数のスリーブ継手とに連続してグラウトを充填するグラウト充填方法。
発明の詳細な説明
【技術分野】
【0001】
本発明は、本発明は、グラウトを充填してPC部材を接合するPC部材の接合方法、PC部材の接合構造、及びグラウト充填方法に関する。
続きを表示(約 1,800 文字)
【背景技術】
【0002】
特許文献1には、プレキャストコンクリート(PC)部材を接合して架構構造を構築する工法が開示されている。
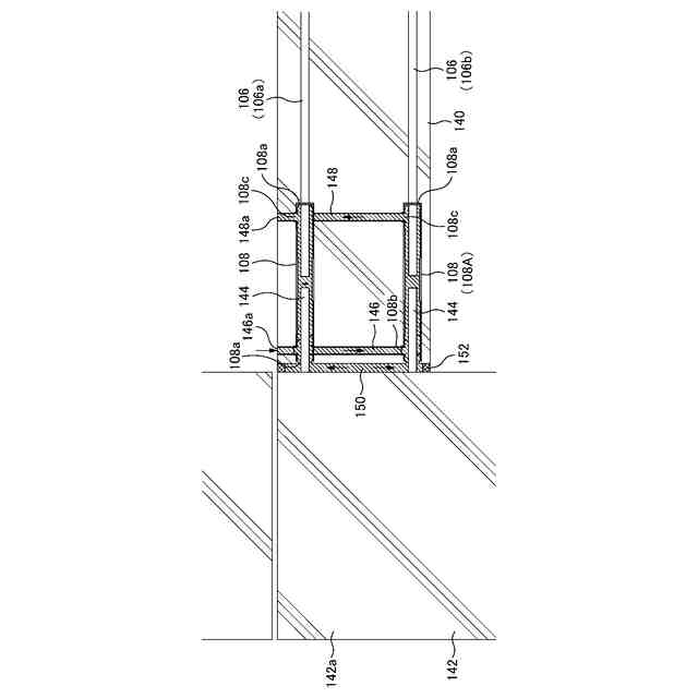
図1に示すように、特許文献1に開示された工法では、PC部材100が用いられる。PC部材100は、下階のPC柱部材101の上に設置されるPC仕口部102と、PC仕口部102から両側に延びるPC梁部104a、104bとが一体に構成されたものである。一方のPC梁部104aの端面から梁主筋106の一端が突出し、他方のPC梁部104bの端面には、梁主筋106の他端が接続されたスリーブ継手108の鉄筋挿入口108aが露出している。
【0003】
そして、PC部材100を、建込み済みのPC部材100Aに向けて横方向に移動させることにより、PC仕口部102をPC柱部材101の上に位置させつつ、PC梁部104aから突出した梁主筋106を、PC部材100AのPC梁部104bのスリーブ継手108に挿入する。その後、スリーブ継手108にグラウトを充填し、また、PC部材100のPC梁部104aの端面と、PC部材100AのPC梁部104bの端面との間の目地110にグラウトを充填することにより、PC部材100、100Aを接合する。
【0004】
なお、図1には、PC部材100Aに先行して建て込まれたPC部材100BのPC梁部104bの端面と、PC部材100AのPC梁部104aの端面との間の目地110を示している。
【先行技術文献】
【特許文献】
【0005】
特許第3837390号公報
【発明の概要】
【発明が解決しようとする課題】
【0006】
上記工法のように、側面(上記工法ではPC梁部104aの端面)から鉄筋が突出したPC部材と、側面(上記工法ではPC梁部104bの端面)にスリーブ継手が露出するPC部材とを、これら側面を対向させて鉄筋をスリーブ継手に挿入して接合する場合、両PC部材の側面間の目地と、スリーブ継手とにグラウトを充填する必要がある。これらのグラウト充填を別工程で行うと、グラウト充填に係る工数が増えて施工効率が悪くなるという課題があった。
【0007】
本発明は、上記の課題に鑑みてなされたものであり、その目的は、グラウトによりPC部材を接合する際のグラウト充填を効率的に行えるようにすることである。
【課題を解決するための手段】
【0008】
かかる目的を達成するため本発明は、鉄筋が側方に突出する第1の側面を有する第1のPC部材と、前記第1のPC部材の側方に設けられ、複数のスリーブ継手が埋設されると共に前記スリーブ継手に前記鉄筋を挿入するための鉄筋挿入口が露出する第2の側面を備える第2のPC部材とを、前記第1の側面及び前記第2の側面にて接合するPC部材の接合方法であって、前記第1のPC部材と前記第2のPC部材とを、前記スリーブ継手に前記鉄筋挿入口から前記鉄筋が挿入されて、前記第1の側面と前記第2の側面との間に目地が形成されるように設置する設置工程と、前記複数のスリーブ継手の何れか一つにグラウトを注入し、前記何れか一つのスリーブ継手から前記鉄筋挿入口を通して前記目地にグラウトを流入させ、前記目地から前記何れか一つのスリーブ継手以外のスリーブ継手に前記鉄筋挿入口を通してグラウトを流入させることにより、前記目地と前記複数のスリーブ継手とに連続してグラウトを充填するグラウト充填工程と、を備える。
【0009】
本発明によれば、第2のPC部材に設けたスリーブ継手にグラウトを注入し、このスリーブ継手から目地にグラウトを流入させ、更に、目地から各スリーブ継手へグラウトを流入させる。これにより、目地と複数のスリーブ継手へのグラウト充填を連続して行うことができるので、PC部材を接合する際のグラウト充填を効率的に行うことができる。
【0010】
本発明において、前記第2のPC部材に、一端側において前記何れか一つのスリーブ継手の内部と連通し、他端が前記第2のPC部材の前記側面以外の表面又は前記PC部材の外部で開口するグラウト注入通路を形成しておき、前記グラウト充填工程では、前記グラウト注入通路を通して前記一つのスリーブ継手にグラウトを注入することとしてもよい。
(【0011】以降は省略されています)
この特許をJ-PlatPat(特許庁公式サイト)で参照する
関連特許
株式会社大林組
構造物形成装置
6日前
株式会社大林組
リフトアップ装置
6日前
株式会社大林組
運搬管理システム
7日前
株式会社大林組
リフトアップ装置
6日前
株式会社大林組
作業現場監視システム
1日前
株式会社大林組
障子および障子の組付構造
今日
株式会社大林組
汚泥処理施設及び汚泥処理方法
6日前
株式会社大林組
伸縮装置及び、伸縮装置の設置方法
7日前
株式会社大林組
搬送支援システム及び搬送支援方法
今日
株式会社大林組
状態判定システムおよび状態判定方法
6日前
株式会社大林組
温度管理システムおよび温度管理方法
6日前
株式会社大林組
昇降ラック、及び、昇降ラックセット
今日
株式会社大林組
工場の空調設備及び工場の空調制御方法
6日前
株式会社大林組
解析システム、解析方法及び解析プログラム
7日前
株式会社大林組
工場の空調設備、及び工場の空調設備の制御方法
6日前
株式会社大林組
バーチカルドレーン先端の粘性土の侵入長さの推定方法
1日前
株式会社大林組
PC部材の接合方法、PC部材の接合構造、グラウト充填方法
1日前
株式会社大林組
PC部材の接合方法、PC部材の接合構造、及びグラウト充填方法
1日前
三協立山株式会社
構造体
27日前
三協立山株式会社
構造体
22日前
岡部株式会社
柱梁接合構造
14日前
ミサワホーム株式会社
玄関
27日前
株式会社タカショー
塀
27日前
日精株式会社
機械式駐車装置
27日前
株式会社タカショー
塀
27日前
極東開発工業株式会社
駐車装置
28日前
理研軽金属工業株式会社
庇
15日前
個人
木造建築物の建築方法
20日前
理研軽金属工業株式会社
庇
7日前
積水ハウス株式会社
建築物
15日前
積水ハウス株式会社
建築物
6日前
株式会社カナイ
接合金物
20日前
株式会社大林組
災害時支援装置
27日前
アイリスチトセ株式会社
ブース
22日前
株式会社大林組
梁筋の配筋方法
27日前
株式会社大林組
大梁胴縁接続構造
29日前
続きを見る
他の特許を見る