TOP
|
特許
|
意匠
|
商標
特許ウォッチ
Twitter
他の特許を見る
10個以上の画像は省略されています。
公開番号
2025161005
公報種別
公開特許公報(A)
公開日
2025-10-24
出願番号
2024063821
出願日
2024-04-11
発明の名称
プロペラシャフト
出願人
Astemo株式会社
代理人
ポレール弁理士法人
主分類
B60K
17/22 20060101AFI20251017BHJP(車両一般)
要約
【課題】空気抜き機能と、防水機能の両方の機能を選択することができる保護ブーツを備えたプロペラシャフトを提供する
【解決手段】保護ブーツのブーツ締着部がスタブシャフトに接触する内周面に、半径方向に後退した環状溝を形成し、更にこの環状溝から保護ブーツの外部に連通する外部連通溝と、この環状溝から保護ブーツの内部に連通する内部連通溝を内周面に形成すると共に、空気抜き機能を備える保護ブーツとして使用される場合は、外周表面が平面上に形成されたスタブシャフトを保護ブーツのブーツ締着部に嵌装して、内部連通溝、環状溝、及び外部連通路とが連通されるようにし、防水機能を備える保護ブーツとして使用される場合は、外周表面に環状溝に合致する形状の環状突部が形成されたスタブシャフトを保護ブーツのブーツ締着部に嵌装して、環状溝が環状突部によって塞がれるようにした。
【選択図】図2
特許請求の範囲
【請求項1】
第1回転軸と、前記第1回転軸に取り付けられた等速ジョイントと、前記等速ジョイントに取り付けられたスタブシャフトと、前記スタブシャフトに取り付けられた第2回転軸と、前記等速ジョイントと前記スタブシャフトを外側から覆ように取り付けられた保護ブーツとを備えるプロペラシャフトであって、
前記保護ブーツは、前記等速ジョイントの外周に取り付けられるブーツ固定部と、前記スタブシャフトの外周に取り付けられるブーツ締着部を備えており、
前記スタブシャフトに取り付けられるブーツ締着部の内周面には、半径方向で外側に後退した環状溝が形成され、更に前記環状溝から前記保護ブーツの外部に連通する外部連通溝と、前記環状溝から前記保護ブーツの内部に連通する内部連通溝が形成されていると共に、
前記保護ブーツが空気抜き機能を備える保護ブーツとして使用される場合は、外周表面が平面状に形成されたスタブシャフトが、前記ブーツ締着部の前記内周面に嵌装されて、前記内部連通溝、前記環状溝、及び前記外部連通溝とが管路として連通されるようにし、
前記保護ブーツが防水機能を備える保護ブーツとして使用される場合は、前記外周表面に前記環状溝と合致する形状の環状突部が形成された前記スタブシャフトが、前記ブーツ締着部の前記内周面に嵌装されて、前記環状突部が前記環状溝に嵌まり込むことによって、前記内部連通溝、前記環状溝、及び前記外部連通溝とからなる前記管路を遮断されるようにした
ことを特徴とするプロペラシャフト。
続きを表示(約 1,400 文字)
【請求項2】
請求項1に記載のプロペラシャフトであって、
前記ブーツ締着部の前記内周面には、ブーツ側嵌装領域部が形成され、前記スタブシャフトの前記外周表面には、シャフト側嵌装領域部が形成されており、
前記ブーツ側嵌装領域部は、前記内部連通溝、前記環状溝、及び前記外部連通溝が形成されており
前記シャフト側嵌装領域部は、前記内部連通溝、前記環状溝、及び前記外部連通溝の露出側を塞ぐ円形の平面状に形成されており、
前記ブーツ側嵌装領域部と前記シャフト側嵌装領域部は、互いに圧入されている関係にある
ことを特徴とするプロペラシャフト。
【請求項3】
請求項2に記載のプロペラシャフトであって、
前記ブーツ側嵌装領域部が存在する前記ブーツ締着部の外周には、ブーツバンドが取り付けられるブーツバンド取付部が形成されており、前記ブーツバンド取付部が前記ブーツバンドによって締め付けられると、前記ブーツ側嵌装領域部が前記シャフト側嵌装領域部に押圧されて密着される
ことを特徴とするプロペラシャフト。
【請求項4】
請求項3に記載のプロペラシャフトであって、
前記ブーツバンド取付部には、両端に半径方向で外側に延びる壁部が形成されており、前記壁部で挟まれて形成された前記ブーツバンド取付部を前記ブーツバンドによって締め付けることで、前記ブーツ側嵌装領域部17を内側に向けて押圧する
ことを特徴とするプロペラシャフト。
【請求項5】
請求項2に記載のプロペラシャフトであって、
前記外部連通溝は、前記スタブシャフトの軸線方向に沿って前記等速ジョイントから離れる方向に形成されており、
前記内部連通溝は、前記スタブシャフトの軸線方向に沿って前記等速ジョイントに近づく方向に形成されている
ことを特徴とするプロペラシャフト。
【請求項6】
請求項5に記載のプロペラシャフトであって、
前記外部連通溝の断面積は、前記内部連通溝の断面積より小さい
ことを特徴とするプロペラシャフト。
【請求項7】
請求項5に記載のプロペラシャフトであって、
前記外部連通溝の数は1個であり、前記内部連通溝の数は2個以上である
ことを特徴とするプロペラシャフト。
【請求項8】
請求項5に記載のプロペラシャフトであって、
前記外部連通溝の数は1個であり、前記内部連通溝の数は2個以上である
ことを特徴とするプロペラシャフト。
【請求項9】
請求項2に記載のプロペラシャフトであって、
前記環状溝は円環状であり、前記内部連通溝と前記外部連通溝は、互いに反対側の位置に形成されている
ことを特徴とするプロペラシャフト。
【請求項10】
請求項3に記載のプロペラシャフトであって、
前記シャフト側嵌装領域部の前記等速ジョイントの側とは反対側の前記スタブシャフトの外周には、半径方向で外側に延びる突き当て壁部が形成されており、
前記ブーツバンド取付部が前記ブーツバンドによって締め付けられると、前記ブーツ側嵌装領域部の側面が、前突き当て壁部に押圧されて密着される
ことを特徴とするプロペラシャフト。
(【請求項11】以降は省略されています)
発明の詳細な説明
【技術分野】
【0001】
本発明は、自動車のプロペラシャフトに係り、特に等速ジョイント部分に保護ブーツを備えたプロペラシャフトに関する。
続きを表示(約 1,700 文字)
【背景技術】
【0002】
自動車の車体の下面に取り付けられたプロペラシャフトにおいては、駆動源の回転が自在継手(以下、等速ジョイントとして説明を行う)を介して、スタブシャフトに伝達されている。そして、プロペラシャフトには、等速ジョイントの内部機構を保護するために、ゴム製の保護ブーツが用いられている。
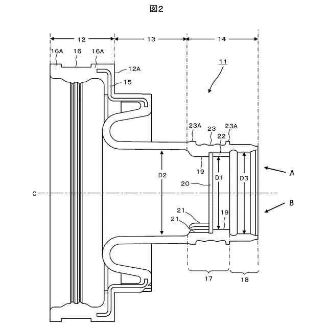
【0003】
保護ブーツは、等速ジョイントの外周に固定されるブーツ固定部と、ブーツ固定部からスタブシャフト側に延び、スタブシャフトの外周側にブーツバンドによって締着されるブーツ締着部とから構成されている。このような保護ブーツにおいては、等速ジョイントの回転による熱によって、保護ブーツの内部に存在する空気が膨張することがある。
【0004】
このため、保護ブーツの内部と外部(大気)とを連通する連通孔を設けることが行われている。このような空気抜き機能を付加された保護ブーツを備えたプロペラシャフトは、例えば、特開2012-241882号公報(特許文献1)に記載されている。
【0005】
特許文献1には、外側継手部材の開口端部に、外嵌固定されるブーツアダプタが密接するシール部と、シール部よりも開口側に設けられて、ブーツアダプタの圧入時に密封装置内のエアを抜くエア抜き構造とを形成する摺動式等速自在継手が示されている。
【先行技術文献】
【特許文献】
【0006】
特開2012-241882号公報
【発明の概要】
【発明が解決しようとする課題】
【0007】
ところで、最近では保護ブーツの空気抜き機能とは別に、保護ブーツ内への水等の浸入を阻止する防水機能の要請も高まっている。そして、このためには保護ブーツの内部と外部とを密閉する密閉構造を備えた保護ブーツが必要である。ただ、この場合は、空気抜き機能を備えた保護ブーツとは別に、新たに防水機能を備えた保護ブーツを製作する必要がある。
【0008】
このため、生産コストが高くなる、部品管理が煩雑となるといった課題が発生する。したがって、空気抜き機能と、防水機能の両方の機能を選択することができる保護ブーツが求められている。つまり、保護ブーツの共用化が求められている。
【0009】
本発明の目的は、空気抜き機能と、防水機能の両方の機能を選択することができる保護ブーツを備えたプロペラシャフトを提供することにある。
【課題を解決するための手段】
【0010】
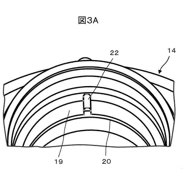
本発明は、第1回転軸と、第1回転軸に取り付けられた等速ジョイントと、等速ジョイントに取り付けられたスタブシャフトと、スタブシャフトに取り付けられた第2回転軸と、等速ジョイントとスタブシャフトを外側から覆ように取り付けられた保護ブーツとを備えるプロペラシャフトであって、保護ブーツは、等速ジョイントの外周に取り付けられるブーツ固定部と、スタブシャフトの外周に取り付けられるブーツ締着部を備えており、スタブシャフトに取り付けられるブーツ締着部の内周面には、半径方向で外側に後退した環状溝が形成され、更に環状溝から保護ブーツの外部に連通する外部連通溝と、環状溝から保護ブーツの内部に連通する内部連通溝が形成されていると共に、保護ブーツが空気抜き機能を備える保護ブーツとして使用される場合は、外周表面が平面状に形成されたスタブシャフトが、ブーツ締着部の内周面に嵌装されて、内部連通溝、環状溝、及び外部連通溝とが管路として連通されるようにし、保護ブーツが防水機能を備える保護ブーツとして使用される場合は、外周表面に環状溝と合致する形状の環状突部が形成されたスタブシャフトが、ブーツ締着部の内周面に嵌装されて、環状突部が環状溝に嵌まり込むことによって、内部連通溝、環状溝、及び外部連通溝とからなる管路が遮断されるようにした、ことを特徴とする。
【発明の効果】
(【0011】以降は省略されています)
この特許をJ-PlatPat(特許庁公式サイト)で参照する
関連特許
個人
タイヤレバー
3か月前
個人
前輪キャスター
3か月前
個人
上部一体型自動車
1か月前
個人
空間形成装置
24日前
個人
タイヤ脱落防止構造
2か月前
個人
ホイルのボルト締結
4か月前
個人
ルーフ付きトライク
3か月前
個人
マスタシリンダ
1か月前
井関農機株式会社
作業車両
5か月前
井関農機株式会社
作業車両
5か月前
日本精機株式会社
表示装置
3か月前
日本精機株式会社
表示装置
3か月前
日本精機株式会社
表示装置
3か月前
日本精機株式会社
表示装置
3か月前
個人
キャンピングトライク
5か月前
個人
車両通過構造物
3か月前
日本精機株式会社
照明装置
19日前
個人
キャンピングトレーラー
5か月前
個人
乗合路線バスの客室装置
4か月前
個人
車両用スリップ防止装置
5か月前
個人
アクセルのソフトウェア
5か月前
個人
常設収納型サンバイザー
1か月前
日本精機株式会社
車載表示装置
27日前
株式会社ニフコ
照明装置
3か月前
日本精機株式会社
車載表示装置
1か月前
個人
円湾曲ホイール及び球体輪
4か月前
株式会社ニフコ
収納装置
2か月前
日本精機株式会社
車載表示装置
4か月前
日本精機株式会社
車載表示装置
25日前
個人
音声ガイド、音声サービス
4か月前
株式会社豊田自動織機
産業車両
3か月前
株式会社ニフコ
保持装置
4か月前
日本精機株式会社
車室演出装置
2か月前
個人
回転窓ワイパー装置
24日前
株式会社豊田自動織機
産業車両
19日前
日本精機株式会社
画像投映装置
1か月前
続きを見る
他の特許を見る