TOP
|
特許
|
意匠
|
商標
特許ウォッチ
Twitter
他の特許を見る
10個以上の画像は省略されています。
公開番号
2025159748
公報種別
公開特許公報(A)
公開日
2025-10-22
出願番号
2024062462
出願日
2024-04-09
発明の名称
構造体
出願人
三協立山株式会社
代理人
個人
主分類
E04B
1/343 20060101AFI20251015BHJP(建築物)
要約
【課題】 施工性を向上できる構造体の提供。
【解決手段】 パネル1,1と構造材2aとカバー3とを備え、パネル1,1は、構造材2aが貫通する穴又は切欠き26を有し、カバー3は、パネル1,1の穴又は切欠き26を覆ってパネル1,1と構造材2aとの隙間を隠すものであり、パネル1,1の穴又は切欠き26と構造材2aとの隙間に挿入される弾性片5を有し、弾性片5をパネル1,1の穴又は切欠き26と構造材2aとの隙間に位置する当接部6aに圧接することで外れないように保持されている。
【選択図】 図4
特許請求の範囲
【請求項1】
パネルと構造材とカバーとを備え、パネルは、構造材が貫通する穴又は切欠きを有し、カバーは、パネルの穴又は切欠きを覆ってパネルと構造材との隙間を隠すものであり、パネルの穴又は切欠きと構造材との隙間に挿入される弾性片を有し、弾性片をパネルの穴又は切欠きと構造材との隙間に位置する当接部に圧接することで外れないように保持されていることを特徴とする構造体。
発明の詳細な説明
【技術分野】
【0001】
本発明は、テラスやカーポート等の構造体に関する。
続きを表示(約 2,100 文字)
【背景技術】
【0002】
従来より、テラスやカーポート等の構造体が知られている。かかる構造体においては、施工性の良いものが求められている。
【発明の概要】
【発明が解決しようとする課題】
【0003】
本発明は以上に述べた実情に鑑み、施工性を向上できる構造体の提供を目的とする。
【課題を解決するための手段】
【0004】
上記の課題を達成するために請求項1記載の発明による構造体は、パネルと構造材とカバーとを備え、パネルは、構造材が貫通する穴又は切欠きを有し、カバーは、パネルの穴又は切欠きを覆ってパネルと構造材との隙間を隠すものであり、パネルの穴又は切欠きと構造材との隙間に挿入される弾性片を有し、弾性片をパネルの穴又は切欠きと構造材との隙間に位置する当接部に圧接することで外れないように保持されていることを特徴とする。
【発明の効果】
【0005】
請求項1記載の発明による構造体は、パネルと構造材とカバーとを備え、パネルは、構造材が貫通する穴又は切欠きを有し、カバーは、パネルの穴又は切欠きを覆ってパネルと構造材との隙間を隠すものであり、パネルの穴又は切欠きと構造材との隙間に挿入される弾性片を有し、弾性片をパネルの穴又は切欠きと構造材との隙間に位置する当接部に圧接することで外れないように保持されているので、パネルの穴又は切欠きと構造材との隙間を隠すカバーの取付けが簡単に行えるので、施工性が向上する。しかも、カバーを小さくして、カバーを目立たなくすることができる。
【図面の簡単な説明】
【0006】
本発明の構造体の一実施形態を示す斜視図である。
同構造体のデッキを拡大して示す斜視図である。
前側の柱の周辺を拡大して示す平面図である。
図3のA-A断面図である。
前側の柱にカバー用の受けを取付けるときの状態を示す斜視図である。
前側の柱の周りにカバーを取付けるときの状態を示す斜視図である。
後側の柱の周辺を拡大して示す平面図である。
図7のB-B断面図である。
後側の柱にカバー用の受けを取付けるときの状態を示す斜視図である。
後側の柱の周りにカバーを取付けるときの状態を示す斜視図である。
【発明を実施するための形態】
【0007】
以下、本発明の実施の形態を図面に基づいて説明する。図1~10は、本発明の構造体の一実施形態を示している。本構造体は、図1に示すように、住宅の庭などに外壁9に沿う形で設置されるものであり、デッキ7とテラス囲い8とを備えている。
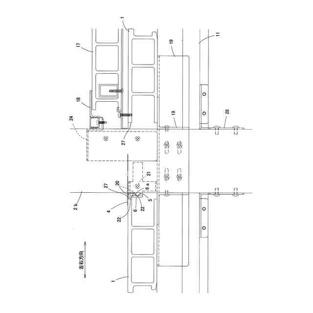
外壁9には、図示しないテラス窓が設けられ、テラス窓からデッキ7上に出られるようになっている。テラス囲い8は、外壁9から隙間をあけて設置してあり、その隙間は塞ぎ材10で塞がれている(図7参照)。
【0008】
デッキ7は、図1,2に示すように、複数の大引き11,11,…を束柱12で支持して前後方向に間隔をおいて左右方向に設置し、大引き11,11,…上に床材(パネル)1,1,…を左右方向に並べて取付け、外壁9側を除く三方の縁部に幕板13を取付け、幕板13で床材1,1,…の端面及び側面と大引き11,11,…の端面及び側面を隠してある。
床材1は、木粉を混ぜた合成樹脂を押出成形したものであり、図6に示すように、中空部を有する板状に形成されている。各床材1は、床材1同士の隙間に設けられた金具(図示省略)で大引き11に固定してある。
【0009】
テラス囲い8は、図1,2に示すように、前後方向及び左右方向に間隔をあけて基礎14に立設した4本の柱(構造材)2a,2bと、柱2a,2bに支持された屋根15とを備える独立型の構造体となっている。前側の左右の柱2a,2a間の開口部、左側及び右側の前後の柱2a,2b間の開口部には、折戸等の建具16が設置してある。
テラス囲い8の内部には、図2,8に示すように、内部床材17が前記床材1より一段高い位置に設けられている。一番外側の内部床材17の外周側の側縁部は、端部カバー18を取付けて覆ってある。
【0010】
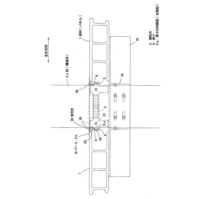
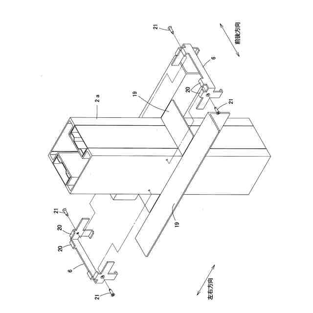
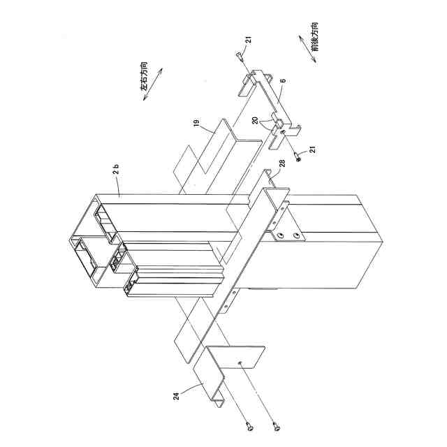
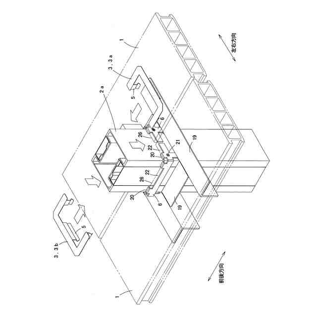
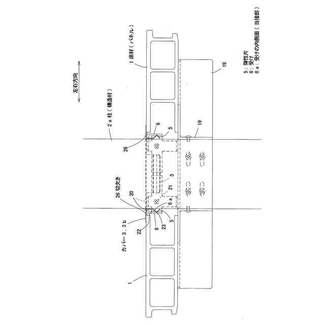
前側の柱2aは、図3,4に示すように、隣接する床材1,1にコ字型の切欠き26を設け、該切欠き26を貫通して設けられており、柱2aの周囲にカバー3を取付けて床材1,1の切欠き26を覆い、床材1,1と柱2aとの隙間を隠している。
より詳しく説明すると、前側の柱2aには、図3,4,5に示すように、床材1の下面を受ける床材受け金具19が取付けられているとともに、その上方に柱2aの周囲を囲むようにカバー3用の受け6,6が取付けられている。
受け6,6は、図5に示すように、左右2分割して平面視コ字型に形成され、柱2aの周囲に当接する柱当接部20を複数有し、柱当接部20を柱2aの周囲に当接して前後方向からのねじ21でねじ止めすることで、図6に示すように、柱2aとの間に所定の隙間22が形成されている。
(【0011】以降は省略されています)
この特許をJ-PlatPat(特許庁公式サイト)で参照する
関連特許
個人
接合構造
2か月前
個人
タッチミー
2か月前
個人
屋台
2か月前
個人
安心補助てすり
1か月前
個人
筋交自動設定装置
2か月前
個人
ベンリナアングル
2か月前
個人
免震建築構造
3日前
株式会社シンケン
住宅
1か月前
株式会社フジタ
合成床
3日前
個人
身体用シェルター
2か月前
個人
防災建築物
1か月前
個人
身体用シェルター
2か月前
三協立山株式会社
構造体
1か月前
株式会社大林組
接合構造
1か月前
三協立山株式会社
構造体
2か月前
三協立山株式会社
構造体
26日前
三協立山株式会社
構造体
2か月前
三協立山株式会社
構造体
2か月前
三協立山株式会社
構造体
2か月前
三協立山株式会社
構造体
2か月前
三協立山株式会社
構造体
2か月前
株式会社熊谷組
木質材料
2か月前
三洋工業株式会社
床構造
1か月前
三協立山株式会社
構造体
1か月前
株式会社熊谷組
床構成材
2か月前
個人
可搬型供養墓
2か月前
株式会社熊谷組
吊り治具
2か月前
ミサワホーム株式会社
住宅
1か月前
ミサワホーム株式会社
玄関
1か月前
岡部株式会社
柱梁接合構造
18日前
ミサワホーム株式会社
住戸
2か月前
アイジー工業株式会社
スターター
2か月前
鹿島建設株式会社
接合構造
1か月前
鹿島建設株式会社
制震架構
1か月前
鹿島建設株式会社
解体方法
1か月前
鹿島建設株式会社
補強構造
3日前
続きを見る
他の特許を見る