TOP
|
特許
|
意匠
|
商標
特許ウォッチ
Twitter
他の特許を見る
10個以上の画像は省略されています。
公開番号
2025150868
公報種別
公開特許公報(A)
公開日
2025-10-09
出願番号
2024052012
出願日
2024-03-27
発明の名称
屋外構造物
出願人
YKK AP株式会社
代理人
弁理士法人酒井国際特許事務所
主分類
E04B
1/343 20060101AFI20251002BHJP(建築物)
要約
【課題】屋根支持体に取り付けた後において屋根体の側枠が外周側に変位する事態を招来することなくブラケットを設ける作業を容易化する。
【解決手段】周囲に側枠23を備えた屋根体20を備え、側枠23が支柱11の上方に重なる状態でブラケット30を介して屋根体20が支柱11に支持される屋外構造物であって、ブラケット30は、側枠23の内周側に取り付けられ、支柱11に装着するキャップ13には、ブラケット30の取付位置よりも外周側において側枠23に当接する当接用突部13bが設けられている。
【選択図】図6
特許請求の範囲
【請求項1】
周囲に枠材を備えた屋根体を備え、前記枠材が屋根支持体の上方に重なる状態でブラケットを介して前記屋根体が前記屋根支持体に支持される屋外構造物であって、
前記ブラケットは、前記枠材の内周側に取り付けられ、
前記枠材及び前記屋根支持体の少なくとも一方には、前記ブラケットの取付位置よりも外周側で他方に当接する当接部が設けられていることを特徴とする屋外構造物。
続きを表示(約 830 文字)
【請求項2】
前記屋根支持体は、筒状を成す支柱と、前記支柱の上端開口を閉じるように装着されるキャップとを有し、前記キャップの上方に前記枠材が重なる状態で前記屋根体を支持するものであり、
前記キャップと前記枠材との間に前記当接部が設けられていることを特徴とする請求項1に記載の屋外構造物。
【請求項3】
前記ブラケットは、前記枠材に取り付けられる枠材取付部と、前記屋根支持体に取り付けられる支持体取付部と、これら枠材取付部及び支持体取付部が互いに高さが異なる状態で連結する連結部とを有することを特徴とする請求項1に記載の屋外構造物。
【請求項4】
前記屋根支持体は、筒状を成す支柱と、前記支柱の上端開口を閉じるように装着されるキャップとを有し、前記キャップの上方に前記枠材が重なる状態で前記屋根体を支持するものであり、
前記支柱の内部には、補強材が設けられ、
前記枠材には、内周側に向けて連結ヒレ部が突出するように設けられ、
前記ブラケットは、前記連結ヒレ部の下面に前記枠材取付部が連結され、前記補強材の上面に前記支持体取付部が連結されていることを特徴とする請求項3に記載の屋外構造物。
【請求項5】
前記枠材の下面には、前記当接部よりも外周側に、下方に向けて突出する突出部が設けられていることを特徴とする請求項1に記載の屋外構造物。
【請求項6】
前記屋根体は、前記枠材が傾斜する状態で前記支柱に支持されるものであり、
前記キャップの上面には、上方に向けて突出するとともに、上面が前記枠材の傾斜に沿って傾斜するように前記当接部が設けられていることを特徴とする請求項2に記載の屋外構造物。
【請求項7】
前記当接部は、前記枠材の長手に沿った寸法を2等分する部分から両側に向けてそれぞれ下方に傾斜することを特徴とする請求項6に記載の屋外構造物。
発明の詳細な説明
【技術分野】
【0001】
本発明は、カーポート等の屋外構造物に関するもので、周囲に枠材を備えた屋根体が支柱や梁等の屋根支持体に支持された屋外構造物に関する。
続きを表示(約 2,000 文字)
【背景技術】
【0002】
例えば、パネルの周囲に側枠等の枠材を備えた屋根体を支柱の上方に支持させる場合には、支柱の上端部と側枠との間にブラケットを介在させる構造を用いるものがある。ブラケットは、側枠の内周側となる部分に取り付けられ、外部から視認することが困難であるため、外観品質の点で有利となる(例えば、特許文献1参照)。
【先行技術文献】
【特許文献】
【0003】
特開2022-9704号公報
【発明の概要】
【発明が解決しようとする課題】
【0004】
ところで、支柱の上面と側枠の下面との間に隙間が確保されていれば、加工誤差や組み立て誤差があった場合にも、隙間量を適宜調整することでブラケットを設ける作業を容易化することが可能である。すなわち、隙間量を調整することで、支柱や側枠に設けられたネジ孔と、ブラケットに設けられたネジ挿通孔とを位置合わせできるため、ネジ挿通孔を介してネジ孔にネジ部材を容易に螺合することが可能である。しかしながら、ブラケットを介して支柱に連結された後においては、隙間を減少させる方向に側枠が移動可能となる。このため、例えばパネルから外力が加えられた場合には、側枠が外周側に傾くように変位する懸念がある。
【0005】
本発明は、上記実情に鑑みて、屋根支持体に取り付けた後において屋根体の側枠が外周側に変位する事態を招来することなくブラケットを設ける作業を容易化することのできる屋外構造物を提供することを目的とする。
【課題を解決するための手段】
【0006】
上記目的を達成するため、本発明に係る屋外構造物は、周囲に枠材を備えた屋根体を備え、前記枠材が屋根支持体の上方に重なる状態でブラケットを介して前記屋根体が前記屋根支持体に支持される屋外構造物であって、前記ブラケットは、前記枠材の内周側に取り付けられ、前記枠材及び前記屋根支持体の少なくとも一方には、前記ブラケットの取付位置よりも外周側で他方に当接する当接部が設けられていることを特徴とする。
【発明の効果】
【0007】
本発明によれば、当接部によって枠材と屋根支持体との外周側となる部分が互いに当接する。このため、内周側においては隙間調整することでブラケットを設ける作業を容易化することができ、かつ取り付け後において枠材が外周側に変位する事態を防止することが可能となる。
【図面の簡単な説明】
【0008】
本発明の実施の形態である屋外構造物の側面図である。
図1に示した屋外構造物の後面図である。
図1に示した屋外構造物の平面図である。
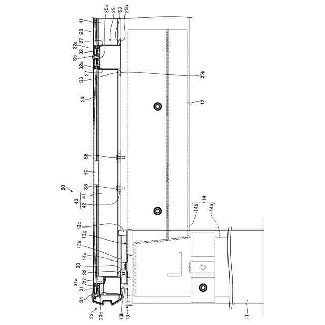
図1に示した屋外構造物を拡大した縦断面側面図である。
図1に示した屋外構造物を拡大した要部縦断面後面図である。
図5の要部拡大図である。
図1に示した屋外構造物の要部拡大平面図である。
図1に示した屋外構造物に適用するキャップを示すもので、(a)は平面図、(b)は内側面図、(c)は後面図、(d)は外側面図、(e)は縦断面図である。
図1に示した屋外構造物の要部を示すもので、(a)は支柱の上端にキャップを取り付ける以前の分解斜視図、(b)は支柱の上方に枠材を取り付ける以前の分解斜視図である。
図1に示した屋外構造物の要部を示すもので、(a)は梁に下方スペース部材を取り付ける以前の分解斜視図、(b)は梁に下方スペース部材を配置した状態を前方側から見た斜視図、(c)は梁に下方スペース部材を配置した状態を後方側から見た斜視図である。
【発明を実施するための形態】
【0009】
以下、添付図面を参照しながら本発明に係る屋外構造物の好適な実施の形態について詳細に説明する。
図1~図7は、本発明の実施の形態である屋外構造物を示すものである。ここで例示する屋外構造物は、外形が長方形で、平坦な駐車スペースを設置対象とするカーポートであり、後方フレーム10A、前方フレーム10B、屋根体20を備えて構成してある。2つのフレーム10A,10Bは、それぞれ左右の支柱(屋根支持体)11の上端部間に梁12を架設することによって構成したもので、駐車スペースの後縁側となる位置及び前縁側となる位置に設けてある。
【0010】
支柱11は、アルミニウム合金等の金属によって成形した押し出し形材であり、断面が長方形の筒状に構成してある。それぞれの支柱11は、駐車スペースから鉛直方向に沿って立設して、上端がほぼ水平である。それぞれのフレーム10A,10Bにおいては、支柱11の突出寸法が左右で同じであり、梁12がほぼ水平に延在している。後方フレーム10Aは、前方フレーム10Bよりも支柱11の突出寸法が大きく設定してある。
(【0011】以降は省略されています)
この特許をJ-PlatPat(特許庁公式サイト)で参照する
関連特許
個人
接合構造
1か月前
個人
タッチミー
29日前
個人
安心補助てすり
13日前
個人
ベンリナアングル
29日前
個人
筋交自動設定装置
1か月前
個人
身体用シェルター
1か月前
個人
身体用シェルター
1か月前
個人
防災建築物
19日前
株式会社シンケン
住宅
14日前
個人
可搬型供養墓
1か月前
三洋工業株式会社
床構造
14日前
三協立山株式会社
構造体
1か月前
株式会社大林組
接合構造
9日前
三協立山株式会社
構造体
1か月前
三協立山株式会社
構造体
1か月前
三協立山株式会社
構造体
1か月前
株式会社熊谷組
吊り治具
1か月前
株式会社熊谷組
床構成材
27日前
三協立山株式会社
構造体
1か月前
三協立山株式会社
構造体
1か月前
三協立山株式会社
構造体
14日前
ミサワホーム株式会社
住戸
1か月前
株式会社エフコンサルタント
面材
1か月前
アイジー工業株式会社
スターター
1か月前
ミサワホーム株式会社
住宅
6日前
鹿島建設株式会社
解体方法
19日前
鹿島建設株式会社
接合構造
14日前
ミサワホーム株式会社
建物
1か月前
鹿島建設株式会社
制震架構
22日前
株式会社エフコンサルタント
面材
1か月前
株式会社 シコク
手摺り装置
6日前
株式会社フジタ
合成床
1か月前
株式会社オカムラ
移動式什器
14日前
株式会社竹中工務店
建物構造
20日前
株式会社熊谷組
木材接合部材
1か月前
日精株式会社
機械式駐車装置
26日前
続きを見る
他の特許を見る