TOP
|
特許
|
意匠
|
商標
特許ウォッチ
Twitter
他の特許を見る
公開番号
2024178000
公報種別
公開特許公報(A)
公開日
2024-12-24
出願番号
2023096462
出願日
2023-06-12
発明の名称
脱型前における覆工コンクリートの強度推定方法、及び覆工コンクリートの脱型時期判定方法
出願人
佐藤工業株式会社
,
東京都公立大学法人
代理人
弁理士法人永井国際特許事務所
主分類
E21D
11/10 20060101AFI20241217BHJP(地中もしくは岩石の削孔;採鉱)
要約
【課題】より簡易に、脱型前における覆工コンクリートの強度を推定する。
【解決手段】上記課題は、強度推定領域におけるセントル2内面に、打撃位置2Hを設定するとともに、打撃位置2Hから離れた位置に振動測定器10を設置し、覆工コンクリート3を打設した後、脱型前に、セントル2内面における打撃位置2Hをハンマー5等で打撃してセントル2及び覆工コンクリート3を振動させるとともに振動測定器10で打設後振動を計測し、打設後振動から、覆工コンクリート3の圧縮強度と相関を有する振動特性値を求め、この振動特性値から強度推定領域における覆工コンクリート3の圧縮強度を推定する、 ことを特徴とする脱型前における覆工コンクリート3の強度推定方法により解決される。
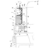
【選択図】図2
特許請求の範囲
【請求項1】
強度推定領域におけるセントル内面に、打撃位置を設定するとともに、前記打撃位置から離れた位置に振動測定器を設置し、
覆工コンクリートを打設した後、脱型前に、前記セントル内面における前記打撃位置を打撃して前記セントル及び前記覆工コンクリートを振動させるとともに前記振動測定器で打設後振動を計測し、
前記打設後振動から、前記覆工コンクリートの圧縮強度と相関を有する振動特性値を求め、
この振動特性値から前記強度推定領域における前記覆工コンクリートの圧縮強度を推定する、
ことを特徴とする脱型前における覆工コンクリートの強度推定方法。
続きを表示(約 2,000 文字)
【請求項2】
前記覆工コンクリートの打設前に、前記セントル内面における前記打撃位置を打撃して前記セントル及び前記覆工コンクリートを振動させるとともに前記振動測定器で打設前振動を計測し、
前記打設前振動及び前記打設後振動から、打設前周波数スペクトル及び打設後周波数スペクトルをそれぞれ求め、
材齢tにおける記録波形をY
t
(f)とし、打設前における記録波形をY
0
(f)とし、打撃をX(f)とし、材齢tにおける振動媒体をD
t
(f)とし、打設前における振動媒体をD
0
(f)とし、振動測定器をU(f)とし、セントルをS(f)とし、材齢tにおけるコンクリートをC
t
(f)とし、「・」を周波数領域での積としたとき、下記式(1)で示される周波数応答関数H
t
(f)の特徴量であってかつコンクリートの圧縮強度と相関する特徴量を、前記打設前周波数スペクトル及び前記打設後周波数スペクトルから求め、
H
t
(f)=Y
t
(f)/Y
0
(f)
={X(f)・D
t
(f)・U(f)}/{X(f)・D
0
(f)・U(f)}
=D
t
(f)/D
0
(f)
={S(f)・C
t
(f)}/S(f)
=C
t
(f) …(1)
前記特徴量から前記強度推定領域における前記覆工コンクリートの圧縮強度を推定する、
請求項1記載の脱型前における覆工コンクリートの強度推定方法。
【請求項3】
前記覆工コンクリートの打設前に、前記セントル内面における前記打撃位置を打撃して前記セントル及び前記覆工コンクリートを振動させるとともに前記振動測定器で打設前振動を計測し、
前記打設前振動及び前記打設後振動から、打設前周波数スペクトル及び打設後周波数スペクトルをそれぞれ求め、
材齢tにおける記録波形をY
t
(f)とし、打設前における記録波形をY
0
(f)とし、打撃をX(f)とし、材齢tにおける振動媒体をD
t
(f)とし、打設前に置ける振動媒体をD
0
(f)とし、振動測定器をU(f)とし、セントルをS(f)とし、材齢tにおけるコンクリートをC
t
(f)とし、「・」を周波数領域での積としたとき、下記式(1)で示される周波数応答関数における対数近似曲線の式の係数として定まるゲイン増加率を、前記打設前周波数スペクトル及び前記打設後周波数スペクトルから求め、
H
t
(f)=Y
t
(f)/Y
0
(f)
={X(f)・D
t
(f)・U(f)}/{X(f)・D
0
(f)・U(f)}
=D
t
(f)/D
0
(f)
={S(f)・C
t
(f)}/S(f)
=C
t
(f) …(1)
前記ゲイン増加率から前記強度推定領域における前記覆工コンクリートの圧縮強度を推定する、
請求項1記載の脱型前における覆工コンクリートの強度推定方法。
【請求項4】
前記覆工コンクリートの巻厚が200~800mmである、
請求項1又は2記載の脱型前における覆工コンクリートの強度推定方法。
【請求項5】
前記打撃は、打撃面が直径30~70mmの球面からなる鋼製の頭部を備えたハンマーである、
請求項1又は2記載の脱型前における覆工コンクリートの強度推定方法。
【請求項6】
強度推定領域におけるセントル内面に、打撃位置を設定するとともに、前記打撃位置から離れた位置に振動測定器を設置し、
覆工コンクリートを打設した後、脱型前に、前記セントル内面における前記打撃位置を打撃して前記セントル及び前記覆工コンクリートを振動させるとともに前記振動測定器で打設後振動を計測し、
前記打設後振動から、前記覆工コンクリートの圧縮強度と相関を有する振動特性値を求め、
この振動特性値が、予め設定された目標の圧縮強度と対応する振動特性値に達した時に脱型時期と判定する、
ことを特徴とする脱型前における覆工コンクリートの脱型時期判定方法。
発明の詳細な説明
【技術分野】
【0001】
本発明は、脱型前における覆工コンクリートの強度推定方法、及び覆工コンクリートの脱型時期判定方法に関する。
続きを表示(約 2,200 文字)
【背景技術】
【0002】
山岳トンネル工事における覆工コンクリートの施工において、普通コンクリートの打設は、側壁から天端へ向けて順に行われるため、最終打込み箇所となる天端が最も若材齢となる。したがって、若材齢となる天端において脱型時のコンクリートの強度発現が乏しくなりやすく、コンクリートの剥離や剥落の懸念がある。また、打設条件や環境条件によっては天端以外のコンクリートの強度発現が遅れることもありうる。さらに、高流動(自己充填)コンクリートを低位置から圧入する場合には、天端が最も若材齢になるとは限らない。
【0003】
このため、例えば、脱型前における覆工コンクリートの積算温度を測定し、これと圧縮強度との相関に基づいて覆工コンクリートの圧縮強度を測定する方法(特許文献1参照)等が提案されている。
【0004】
しかし、この方法はセントル(鋼製型枠)内のコンクリートの温度を直接計測するため、セントルの一部改造を伴う、若しくは硬化後のコンクリート内部にセンサ等の機器を残置させる必要がある。
【先行技術文献】
【特許文献】
【0005】
特開2012-26734号公報
【発明の概要】
【発明が解決しようとする課題】
【0006】
そこで、本発明の主たる課題は、より簡易に、脱型前における覆工コンクリートの強度を推定できる方法を提供すること、等にある。
【課題を解決するための手段】
【0007】
上記課題を解決した脱型前における覆工コンクリートの強度推定方法は以下のとおりである。
<第1の態様>
強度推定領域におけるセントル内面に、打撃位置を設定するとともに、前記打撃位置から離れた位置に振動測定器を設置し、
覆工コンクリートを打設した後、脱型前に、前記セントル内面における前記打撃位置を打撃して前記セントル及び前記覆工コンクリートを振動させるとともに前記振動測定器で打設後振動を計測し、
前記打設後振動から、前記覆工コンクリートの圧縮強度と相関を有する振動特性値を求め、
この振動特性値から前記強度推定領域における前記覆工コンクリートの圧縮強度を推定する、
ことを特徴とする脱型前における覆工コンクリートの強度推定方法。
【0008】
(作用効果)
本脱型前における覆工コンクリートの強度推定方法によれば、セントル内面のうち上記打撃及び振動計測が可能な場所であれば任意の場所で覆工コンクリートの強度推定を行うことができ、かつコンクリートに直接アクセスする必要もない。また、本方法のようにセントル内面を打撃すると、未硬化の覆工コンクリートであっても破損なしに確実に打撃を与えて振動を測定できる。よって、従来よりも簡易に脱型前における覆工コンクリートの強度を推定することができる。
【0009】
<第2の態様>
前記覆工コンクリートの打設前に、前記セントル内面における前記打撃位置を打撃して前記セントル及び前記覆工コンクリートを振動させるとともに前記振動測定器で打設前振動を計測し、
前記打設前振動及び前記打設後振動から、打設前周波数スペクトル及び打設後周波数スペクトルをそれぞれ求め、
材齢tにおける記録波形をY
t
(f)とし、打設前における記録波形をY
0
(f)とし、打撃をX(f)とし、材齢tにおける振動媒体をD
t
(f)とし、打設前における振動媒体をD
0
(f)とし、振動測定器をU(f)とし、セントルをS(f)とし、材齢tにおけるコンクリートをC
t
(f)とし、「・」を周波数領域での積としたとき、下記式(1)で示される周波数応答関数H
t
(f)の特徴量であってかつコンクリートの圧縮強度と相関する特徴量を、前記打設前周波数スペクトル及び前記打設後周波数スペクトルから求め、
H
t
(f)=Y
t
(f)/Y
0
(f)
={X(f)・D
t
(f)・U(f)}/{X(f)・D
0
(f)・U(f)}
=D
t
(f)/D
0
(f)
={S(f)・C
t
(f)}/S(f)
=C
t
(f) …(1)
前記特徴量から前記強度推定領域における前記覆工コンクリートの圧縮強度を推定する、
第1の態様の脱型前における覆工コンクリートの強度推定方法。
【0010】
(作用効果)
圧縮強度を推定するための指標は、セントル打撃による振動計測から求めることができるものであって、覆工コンクリートの圧縮強度と相関を有する振動特性値であれば特に限定されるものではないが、本態様の周波数応答関数のゲインの周波数分布とすると、セントルの打撃位置における鋼板の厚みの影響や打撃方向の影響も受けることなく、覆工コンクリートの圧縮強度を推定することができるため好ましい。
(【0011】以降は省略されています)
この特許をJ-PlatPat(特許庁公式サイト)で参照する
関連特許
佐藤工業株式会社
止水壁構造および止水壁の構築方法
4か月前
個人
掘削機
4か月前
日特建設株式会社
切断装置
1日前
株式会社奥村組
地山探査装置
2か月前
株式会社奥村組
地山探査装置
2か月前
株式会社奥村組
地山探査方法
2か月前
株式会社奥村組
地山探査装置
2か月前
株式会社奥村組
シールド掘進機
7か月前
株式会社笠原建設
横孔形成方法
5か月前
株式会社奥村組
シールド掘進機
4か月前
株式会社奥村組
シールド掘進機
27日前
日特建設株式会社
ボーリング装置
6か月前
岐阜工業株式会社
トンネルセントル
27日前
花王株式会社
岩盤の掘削方法
3か月前
個人
掘削機、及び、資源回収システム
5か月前
株式会社奥村組
テールシール試験装置
7か月前
個人
オープンシールド機
1か月前
株式会社熊谷組
天井板撤去装置
5か月前
株式会社奥村組
セグメントの組立方法
1か月前
個人
オープンシールド機
1か月前
株式会社奥村組
泥土圧シールド掘進機
5か月前
大阪瓦斯株式会社
牽引装置
5か月前
株式会社ケー・エフ・シー
剥落防止構造
6か月前
個人
箱形ルーフおよびその施工法
20日前
日特建設株式会社
削孔方法及び削孔装置
7か月前
株式会社大林組
インバート更新工法
7か月前
株式会社金澤製作所
発進坑口のエントランス装置
4か月前
デンカ株式会社
静的破砕方法
1か月前
個人
メタンハイドレート等海底鉱物資源の採取方法
2か月前
大阪瓦斯株式会社
切欠開裂治具
5か月前
大成建設株式会社
トンネルの褄部構造
7か月前
地中空間開発株式会社
トンネル掘削機
13日前
岐阜工業株式会社
トンネルセントルの妻板装置
2か月前
株式会社ケー・エフ・シー
防水シート探傷装置
7か月前
株式会社ケー・エフ・シー
トンネル水圧調整装置
1か月前
日鉄建材株式会社
構造物用補強リング及び構造物
21日前
続きを見る
他の特許を見る