TOP
|
特許
|
意匠
|
商標
特許ウォッチ
Twitter
他の特許を見る
10個以上の画像は省略されています。
公開番号
2025086630
公報種別
公開特許公報(A)
公開日
2025-06-09
出願番号
2023200735
出願日
2023-11-28
発明の名称
吸引回収システム
出願人
日本碍子株式会社
,
エヌジーケイ・キルンテック株式会社
代理人
弁理士法人 快友国際特許事務所
主分類
F27B
9/39 20060101AFI20250602BHJP(炉,キルン,窯;レトルト)
要約
【課題】熱処理室のガスが乱れることを抑制する。
【解決手段】吸引回収システムは、匣鉢を搬送方向に搬送する搬送装置と、搬入口と、搬出口と、を有しており、匣鉢が搬入口から搬出口に向けて搬送される熱処理室と、搬出口よりも下流側に配置されており、搬出口から搬出される匣鉢が通過する吸引室と、吸引室に配置されており、匣鉢内の被処理物を吸引して回収する吸引ノズルと、熱処理室と吸引室との間に配置されており、熱処理室と吸引室が連通する連通状態および熱処理室と吸引室が連通しない非連通状態を切り換える第1仕切体と、吸引室よりも下流側に配置されており、吸引室を通過する匣鉢が通過する置換室と、吸引室と置換室との間に配置されており、吸引室と置換室が連通する連通状態および吸引室と置換室が連通しない非連通状態を切り換える第2仕切体と、を備えている。
【選択図】図1
特許請求の範囲
【請求項1】
匣鉢を搬送方向に搬送する搬送装置と、
搬入口と、搬出口と、を有しており、前記匣鉢が前記搬入口から前記搬出口に向けて搬送される熱処理室と、
前記搬出口よりも下流側に配置されており、前記搬出口から搬出される前記匣鉢が通過する吸引室と、
前記吸引室に配置されており、前記匣鉢内の被処理物を吸引して回収する吸引ノズルと、
前記熱処理室と前記吸引室との間に配置されており、前記熱処理室と前記吸引室が連通する連通状態および前記熱処理室と前記吸引室が連通しない非連通状態を切り換える第1仕切体と、
前記吸引室よりも下流側に配置されており、前記吸引室を通過する前記匣鉢が通過する置換室と、
前記吸引室と前記置換室との間に配置されており、前記吸引室と前記置換室が連通する連通状態および前記吸引室と前記置換室が連通しない非連通状態を切り換える第2仕切体と、を備えている、吸引回収システム。
続きを表示(約 1,200 文字)
【請求項2】
前記熱処理室と前記吸引室との間に配置されており、前記搬出口から搬出される前記匣鉢が通過する姿勢調整室と、
前記姿勢調整室内で前記匣鉢の姿勢を調整する姿勢調整装置と、を備えており、
前記第1仕切体は、前記姿勢調整室と前記吸引室との間に配置されている、請求項1に記載の吸引回収システム。
【請求項3】
前記搬送装置は、複数の前記匣鉢が積み重ねられた状態で前記複数の匣鉢を前記搬送方向に搬送し、
前記吸引回収システムは、
前記姿勢調整室と前記吸引室との間に配置されており、前記姿勢調整室から搬出される前記複数の匣鉢が通過する段バラシ室と、
前記段バラシ室内で、積み重ねられた前記複数の匣鉢を前記複数の匣鉢が積み重ねられていない状態にばらす段バラシ装置と、を備えている、請求項2に記載の吸引回収システム。
【請求項4】
前記段バラシ装置は、
前記匣鉢を把持する把持装置本体と、
前記把持装置本体を動作させる把持用アクチュエータと、を備えており、
前記把持用アクチュエータは、前記段バラシ室の外部に配置されている、請求項3に記載の吸引回収システム。
【請求項5】
前記段バラシ装置は、
積み重ねられた前記複数の匣鉢を昇降させる昇降装置本体と、
前記昇降装置本体を動作させる昇降用アクチュエータと、
積み重ねられた前記複数の匣鉢のうちの1個の匣鉢を把持する把持装置本体と、を備えており、
前記昇降用アクチュエータは、前記段バラシ室の外部に配置されている、請求項3に記載の吸引回収システム。
【請求項6】
前記第1仕切体は、前記段バラシ室と前記吸引室との間に配置されている、請求項3に記載の吸引回収システム。
【請求項7】
前記吸引ノズルは、前記搬送方向に直交する左右方向に不動であり、
前記吸引回収システムは、前記吸引ノズルが前記匣鉢内の前記被処理物を回収するときに、前記匣鉢を前記吸引ノズルに対して前記左右方向に移動させる匣鉢移動装置をさらに備えている、請求項1から6のいずれか一項に記載の吸引回収システム。
【請求項8】
前記吸引室内で前記匣鉢を昇降させる昇降装置をさらに備えており、
前記匣鉢移動装置は、前記昇降装置により前記匣鉢が持ち上げられた状態で前記匣鉢を前記吸引ノズルに対して前記左右方向に移動させる、請求項7に記載の吸引回収システム。
【請求項9】
前記吸引室の外部に配置されており、前記第1仕切体を動作させる第1アクチュエータをさらに備えている、請求項1から6のいずれか一項に記載の吸引回収システム。
【請求項10】
前記置換室の外部に配置されており、前記第2仕切体を動作させる第2アクチュエータをさらに備えている、請求項1から6のいずれか一項に記載の吸引回収システム。
発明の詳細な説明
【技術分野】
【0001】
本明細書に開示する技術は、吸引回収システムに関する。
続きを表示(約 2,200 文字)
【背景技術】
【0002】
特許文献1には、吸引回収システムが開示されている。吸引回収システムは、熱処理室と、熱処理室の出口に配置されている吸引回収室と、吸引回収室内で匣鉢内の被処理物を吸引する吸引ノズルと、を備えている。
【先行技術文献】
【特許文献】
【0003】
特開2011-236463号公報
【発明の概要】
【発明が解決しようとする課題】
【0004】
上記の吸引回収システムでは、吸引回収室は、熱処理室と連通している。この状態で、吸引ノズルが匣鉢内の被処理物を吸引すると、熱処理室が減圧される。これにより、熱処理室のガスが乱れる。
【0005】
本明細書は、熱処理室のガスが乱れることを抑制することができる技術を開示する。
【課題を解決するための手段】
【0006】
本明細書に開示する技術の第1の態様では、吸引回収システムは、匣鉢を搬送方向に搬送する搬送装置と、搬入口と、搬出口と、を有しており、前記匣鉢が前記搬入口から前記搬出口に向けて搬送される熱処理室と、前記搬出口よりも下流側に配置されており、前記搬出口から搬出される前記匣鉢が通過する吸引室と、前記吸引室に配置されており、前記匣鉢内の被処理物を吸引して回収する吸引ノズルと、前記熱処理室と前記吸引室との間に配置されており、前記熱処理室と前記吸引室が連通する連通状態および前記熱処理室と前記吸引室が連通しない非連通状態を切り換える第1仕切体と、前記吸引室よりも下流側に配置されており、前記吸引室を通過する前記匣鉢が通過する置換室と、前記吸引室と前記置換室との間に配置されており、前記吸引室と前記置換室が連通する連通状態および前記吸引室と前記置換室が連通しない非連通状態を切り換える第2仕切体と、を備えている。
【0007】
上記の構成によれば、第1仕切体が、熱処理室と吸引室が連通しない非連通状態に切り換えると、熱処理室と吸引室との連通が遮断される。この状態で、吸引ノズルが吸引室内で匣鉢内の被処理物を吸引しても、熱処理室が減圧されることが抑制される。これにより、熱処理室のガスが乱れることを抑制することができる。
【図面の簡単な説明】
【0008】
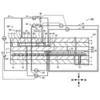
実施例の吸引回収システムを右側から見た概略図である。
実施例の吸引回収システムを上側から見た概略図である。
実施例の吸引室において、一次仕切体が連通位置に位置するときの搬入口側置換部の概略図である。
実施例の吸引室において、二次仕切体が連通位置に位置するときの搬入口側置換部の概略図である。
実施例の吸引回収システムにおいて、段バラシ部の概略図である。
実施例の吸引回収システムにおいて、昇降装置本体が上昇しているときの段バラシ部の概略図である。
実施例の吸引回収システムにおいて、上段の匣鉢が把持装置本体に把持されている状態で昇降装置本体が下降しているときの段バラシ部の概略図である。
実施例の吸引回収システムにおいて、昇降装置本体が上昇しているときの段バラシ部の概略図である。
実施例の吸引回収システムにおいて、第1仕切体が非連通位置に位置するときの吸引回収部の概略図である。
実施例の吸引回収装置の概略図である。
実施例の吸引回収システムにおいて、吸引回収部の概略図である。
実施例の吸引回収システムにおいて、第2仕切体が非連通位置に位置するときの搬出口側置換部の概略図である。
実施例の吸引回収システムにおいて、第3仕切体が非連通位置に位置するときの搬出口側置換部の概略図である。
実施例の吸引回収システムにおいて、昇降装置本体が下降しているときの段バラシ部の概略図である。
実施例の吸引回収システムにおいて、吸引回収部の概略図である。
実施例の吸引回収システムにおいて、吸引回収部の概略図である。
実施例の吸引回収システムにおいて、吸引回収部の概略図である。
実施例の吸引回収システムにおいて、吸引回収部の概略図である。
【0009】
以下に説明する実施例の主要な特徴を列記しておく。なお、以下に記載する技術要素は、それぞれ独立した技術要素であって、単独であるいは各種の組合せによって技術的有用性を発揮するものであり、出願時請求項記載の組合せに限定されるものではない。
【0010】
本明細書に開示する技術の第2の態様では、上記の第1の態様において、吸引回収システムは、前記熱処理室と前記吸引室との間に配置されており、前記搬出口から搬出される前記匣鉢が通過する姿勢調整室と、前記姿勢調整室内で前記匣鉢の姿勢を調整する姿勢調整装置と、を備えている。前記第1仕切体は、前記姿勢調整室と前記吸引室との間に配置されている。上記の構成によれば、吸引ノズルは、匣鉢の姿勢が調整された状態で匣鉢内の被処理物を吸引する。これにより、被処理物を効率良く吸引することができる。また、姿勢調整室が熱処理室と吸引室との間に配置されている構成においても、第1仕切体が熱処理室と吸引室が連通しない非連通状態に切り換えることにより、熱処理室のガスが乱れることを抑制することができる。
(【0011】以降は省略されています)
この特許をJ-PlatPat(特許庁公式サイト)で参照する
関連特許
日本碍子株式会社
熱交換器
13日前
日本碍子株式会社
空調システム
5日前
日本碍子株式会社
ウエハ載置台
6日前
日本碍子株式会社
亜鉛二次電池
12日前
日本碍子株式会社
電気加熱式担体
11日前
日本碍子株式会社
ハニカム構造体
10日前
日本碍子株式会社
ハニカム構造体
10日前
日本碍子株式会社
電気加熱式担体
10日前
日本碍子株式会社
ハニカム構造体
11日前
日本碍子株式会社
メタン製造反応器
10日前
日本碍子株式会社
ハニカムフィルタ
10日前
日本碍子株式会社
セラミックサセプター
4日前
日本碍子株式会社
三相型ハニカムヒータ
10日前
日本碍子株式会社
ウォーキングビーム炉
12日前
日本碍子株式会社
センサ素子及びガスセンサ
6日前
日本碍子株式会社
セラミックス部材の製造方法
12日前
日本碍子株式会社
セラミックス試料の酸分解方法
11日前
日本碍子株式会社
浄水膜構造体および浄水膜組立体
11日前
日本碍子株式会社
ハニカム構造体及びハニカムヒータ
10日前
日本碍子株式会社
放射性廃棄物の処理方法及び保管装置
11日前
日本碍子株式会社
半導体製造装置用部材及びその再生方法
10日前
日本碍子株式会社
半導体製造装置用部材及びその再生方法
10日前
日本碍子株式会社
半導体製造装置用部材及びその再生方法
10日前
日本碍子株式会社
トチの検査方法及びハニカム構造体の製造方法
10日前
日本碍子株式会社
金属コンポジット焼結板およびリチウムイオン電池
10日前
日本碍子株式会社
センサ素子、ガスセンサ、および素子本体の製造方法
13日前
日本碍子株式会社
ハニカム構造体、電気加熱式担体及び排気ガス浄化装置
10日前
日本碍子株式会社
ハニカム構造体、成形原料組成物及び多孔質体の製造方法
10日前
日本碍子株式会社
複合基板
6日前
株式会社リコー
ノード、データ共有方法、及びプログラム
10日前
日本碍子株式会社
ガスセンサの試験装置、ガスセンサの試験方法、およびガスセンサの製造方法
11日前
日本碍子株式会社
リジェネレイティブバーナ、工業炉、焼成品の製造方法及び加熱処理品の製造方法
10日前
日本碍子株式会社
複合基板、弾性表面波素子および複合基板の製造方法
17日前
株式会社サンコー
浸漬ヒーター
1か月前
東京窯業株式会社
セッター
4か月前
中外炉工業株式会社
熱処理炉
21日前
続きを見る
他の特許を見る