TOP
|
特許
|
意匠
|
商標
特許ウォッチ
Twitter
他の特許を見る
公開番号
2025178417
公報種別
公開特許公報(A)
公開日
2025-12-05
出願番号
2025164246,2021099023
出願日
2025-09-30,2021-06-14
発明の名称
ブース
出願人
コクヨ株式会社
,
タカノ株式会社
代理人
個人
主分類
E04H
1/12 20060101AFI20251128BHJP(建築物)
要約
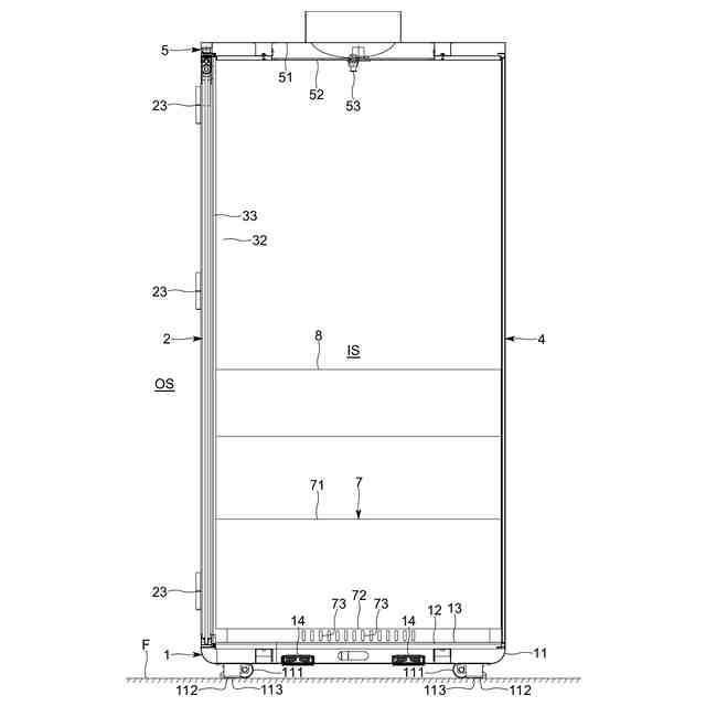
【課題】ブースの内部空間の静粛性を高く保ちながら、その内部空間の換気性能を十分に確保する。
【解決手段】外部空間OSから隔離された内部空間ISを形成するブースであって、建築床Fに接地するキャスタ111またはアジャスタ112により建築床Fから浮上しており内部空間ISの下面側を塞ぐ底盤1と、内部空間ISの周囲を囲む周壁3、4と、内部空間ISの上面側を閉塞する天井5と、底盤1に開設される開口若しくは切欠15と、底盤1側に設けられ、前記開口若しくは切欠15を通じて底盤1と建築床Fとの間隙から空気を吸入し内部空間ISに供給する、あるいは、内部空間ISの空気を前記開口若しくは切欠15を通じて底盤1と建築床Fとの間隙に排気する換気扇14と、内部空間ISに臨む天井5または周壁3、4の上部に開口し外部空間OSに連通する換気口34とを具備するブースを構成した。
【選択図】図3
特許請求の範囲
【請求項1】
外部空間から隔離された内部空間を形成するブースであって、
建築床に接地するキャスタまたはアジャスタにより建築床から浮上しており前記内部空間の下面側を塞ぐ底盤と、
前記内部空間の周囲を囲む周壁と、
前記内部空間の上面側を閉塞する天井と、
前記底盤に開設される開口若しくは切欠と、
前記底盤側に設けられ、前記開口若しくは切欠を通じて前記底盤と建築床との間隙から空気を吸入し前記内部空間に供給する、あるいは、前記内部空間の空気を前記開口若しくは切欠を通じて前記底盤と建築床との間隙に排気する換気扇と、
前記内部空間に臨む前記天井または前記周壁の上部に開口し前記外部空間に連通する換気口と
を具備するブース。
続きを表示(約 210 文字)
【請求項2】
前記天井側に換気扇が設けられていない請求項1記載のブース。
【請求項3】
平面視前記開口若しくは切欠並びに前記換気扇を内包する領域に上方から覆い被さるように配置される座を具備する請求項1または2記載のブース。
【請求項4】
天板を具備し、
平面視において前記開口若しくは切欠並びに前記換気扇が前記天板と重なり合わない請求項1、2または3記載のブース。
発明の詳細な説明
【技術分野】
【0001】
本発明は、執務や打ち合わせ等に使用されるブースに関する。
続きを表示(約 1,500 文字)
【背景技術】
【0002】
一人ないし少数人が入室して使用することのできる移動可能なブースが公知である(例えば、下記先行技術文献を参照)。このブースは、外部の人声や騒音が内部空間に侵入することを抑制し、これを利用するユーザの作業への集中度を高め、能率の向上に寄与し得る。内部空間で発せられる音声が外部に漏洩することも防止できる。
【0003】
ブースの内部空間は、適切に換気される必要がある。だが、単純にブースの周壁やドアに通気用の開口を穿設すると、その存在が露骨に目立つ上、ブースの内と外との間で音が漏れ聞こえやすくなる。
【0004】
そこで、例えば図8に示すような構造を採用することが考えられる。具体的には、換気扇X1が付随する排気口がブースの天井側に開設され、この換気扇X1がブース内から空気を吸引してブース外に排気する。並びに、ブースの底盤の下方に連通する給気口X2がブース内に開設されており、その給気口X2を通じてブース外の空気をブース内に供給する。なお、法規(建築基準法、消防法等)により、火災発生時に排煙できることが必須とされており、天井側に排煙口X3が別途設けられている。
【0005】
給気口X2から換気扇X1が付随する排気口へと向かう気流は、ブースの内部空間の概ね全域を上方から下方に流れて、内部空間を換気する。しかしながら、同時に、図8中に矢印で表しているように、天井側の排煙口X3からブース内に空気が引き込まれ、内部空間の天井付近の領域を通過して同じ天井側にある排気口に向かう気流が生じることになる。このような短絡的な流れが多くなると、その分底盤側の給気口X2から供給される空気の流れが減少する。従って、換気扇の吐出流量(出力)によっては、必ずしもブースの内部空間を十分に換気できない懸念が生じ得る。
【0006】
また、天井内に設置された換気扇X1が稼働している間、この換気扇X1から発生する作動音がブースの内部空間に伝搬し、ユーザの聴覚に明確に感じ取られる可能性もある。
【先行技術文献】
【特許文献】
【0007】
特願2020-110329号明細書
【非特許文献】
【0008】
“WORKPOD(ワークポッド、登録商標)”,コクヨ総合カタログ2021年版ファニチャー編,コクヨ株式会社,令和2年12月,p.870-871
【発明の概要】
【発明が解決しようとする課題】
【0009】
本発明は、ブースの内部空間の静粛性を高く保ちながら、その内部空間の換気性能を十分に確保することを所期の目的としている。
【課題を解決するための手段】
【0010】
本発明では、外部空間から隔離された内部空間を形成するブースであって、建築床に接地するキャスタまたはアジャスタにより建築床から浮上しており前記内部空間の下面側を塞ぐ底盤と、前記内部空間の周囲を囲む周壁と、前記内部空間の上面側を閉塞する天井と、前記底盤に開設される開口若しくは切欠と、前記底盤側に設けられ、前記開口若しくは切欠を通じて前記底盤と建築床との間隙から空気を吸入し前記内部空間に供給する、あるいは、前記内部空間の空気を前記開口若しくは切欠を通じて前記底盤と建築床との間隙に排気する換気扇と、前記内部空間に臨む前記天井または前記周壁の上部に開口し前記外部空間に連通する換気口とを具備するブースを構成した。
(【0011】以降は省略されています)
この特許をJ-PlatPat(特許庁公式サイト)で参照する
関連特許
コクヨ株式会社
紐状部材係合体
3か月前
コクヨ株式会社
レイアウト計画システム
今日
コクヨ株式会社
キャップ係合構造、及び、容器
2か月前
コクヨ株式会社
ブース
5日前
コクヨ株式会社
ブース
26日前
コクヨ株式会社
ブース
1か月前
コクヨ株式会社
転写具
2か月前
コクヨ株式会社
ブース家具
1日前
コクヨ株式会社
ブース家具
1日前
コクヨ株式会社
ブース家具
2か月前
コクヨ株式会社
ブース家具
2か月前
コクヨ株式会社
ブース家具
2か月前
コクヨ株式会社
ブース家具
2か月前
個人
接合構造
2か月前
個人
タッチミー
2か月前
個人
屋台
2か月前
個人
野良猫ハウス
3か月前
個人
転落防止用手摺
3か月前
個人
安心補助てすり
1か月前
個人
フェンス
3か月前
個人
ベンリナアングル
2か月前
個人
居住車両用駐車場
3か月前
個人
筋交自動設定装置
2か月前
個人
地下型マンション
5か月前
ニチハ株式会社
建築板
3か月前
積水樹脂株式会社
柵体
3か月前
個人
免震建築構造
5日前
個人
鋼管結合資材
5か月前
株式会社タナクロ
テント
5か月前
個人
熱抵抗多層断熱建材
3か月前
個人
柵
4か月前
個人
補強部材
3か月前
個人
身体用シェルター
2か月前
株式会社フジタ
合成床
5日前
個人
身体用シェルター
2か月前
成友建設株式会社
建物
3か月前
続きを見る
他の特許を見る