TOP
|
特許
|
意匠
|
商標
特許ウォッチ
Twitter
他の特許を見る
10個以上の画像は省略されています。
公開番号
2025123628
公報種別
公開特許公報(A)
公開日
2025-08-25
出願番号
2024019178
出願日
2024-02-13
発明の名称
簡易建物
出願人
三協立山株式会社
代理人
個人
主分類
E04B
1/343 20060101AFI20250818BHJP(建築物)
要約
【課題】 簡易建物の施工性の向上。
【解決手段】 屋根1と補助樋2とを備え、屋根1は、前後方向の一方側が低くなるように傾斜しており、一方側端部に横樋3を有し、横樋3は、屋根1よりも側方に突出しており、補助樋2は、横樋3の突出した端部から前後方向の他方側に延びている。
【選択図】 図1
特許請求の範囲
【請求項1】
屋根と補助樋とを備え、屋根は、前後方向の一方側が低くなるように傾斜しており、一方側端部に横樋を有し、横樋は、屋根よりも側方に突出しており、補助樋は、横樋の突出した端部から前後方向の他方側に延びていることを特徴とする簡易建物。
続きを表示(約 110 文字)
【請求項2】
屋根を支持する梁を備え、梁は、屋根よりも側方に張り出して端部を柱に支持してあり、補助樋は、横樋の突出した端部と前記柱に沿って設けたたて樋の上部とを連結していることを特徴とする請求項1記載の簡易建物。
発明の詳細な説明
【技術分野】
【0001】
本発明は、カーポート等の簡易建物に関する。
続きを表示(約 1,600 文字)
【背景技術】
【0002】
従来より、住宅の敷地に設置されるカーポート等の簡易建物が知られている。かかる簡易建物においては、施工性の向上が求められている。
【発明の概要】
【発明が解決しようとする課題】
【0003】
本発明は以上に述べた実情に鑑み、簡易建物の施工性の向上を目的とする。
【課題を解決するための手段】
【0004】
上記の課題を達成するために請求項1記載の発明による簡易建物は、屋根と補助樋とを備え、屋根は、前後方向の一方側が低くなるように傾斜しており、一方側端部に横樋を有し、横樋は、屋根よりも側方に突出しており、補助樋は、横樋の突出した端部から前後方向の他方側に延びていることを特徴とする。
【0005】
請求項2記載の発明による簡易建物は、請求項1記載の発明の構成に加え、屋根を支持する梁を備え、梁は、屋根よりも側方に張り出して端部を柱に支持してあり、補助樋は、横樋の突出した端部と前記柱に沿って設けたたて樋の上部とを連結していることを特徴とする。
【発明の効果】
【0006】
請求項1記載の発明による簡易建物は、屋根と補助樋とを備え、屋根は、前後方向の一方側が低くなるように傾斜しており、一方側端部に横樋を有し、横樋は、屋根よりも側方に突出しており、補助樋は、横樋の突出した端部から前後方向の他方側に延びているので、雨樋の施工を簡略化することができ、施工性を向上することができる。
【0007】
請求項2記載の発明による簡易建物は、屋根を支持する梁を備え、梁は、屋根よりも側方に張り出して端部を柱に支持してあり、補助樋は、横樋の突出した端部と前記柱に沿って設けたたて樋の上部とを連結していることで、雨樋の施工をより一層簡略化することができ、施工性を一段と向上することができる。
【図面の簡単な説明】
【0008】
本発明の簡易建物の一実施形態を示す斜視図である。
同簡易建物の平面図である。
同簡易建物の側面図である。
図2のA-A断面図である。
図4の一部を拡大して示す縦断面図である。
図2のB-B断面図である。
図5のC-C断面図である。
補助樋を取付ける際の手順を順に示す斜視図である。
横樋の他の実施形態を示す屋根の縦断面図である。
横樋のさらに別の実施形態を示す屋根の縦断面図である。
【発明を実施するための形態】
【0009】
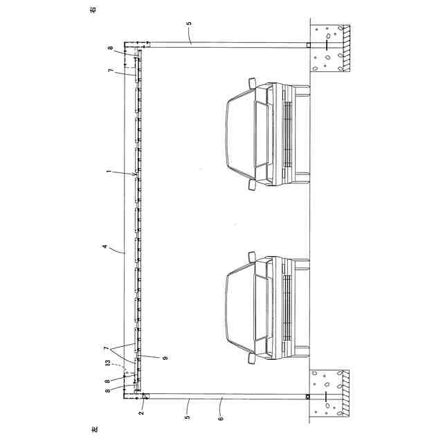
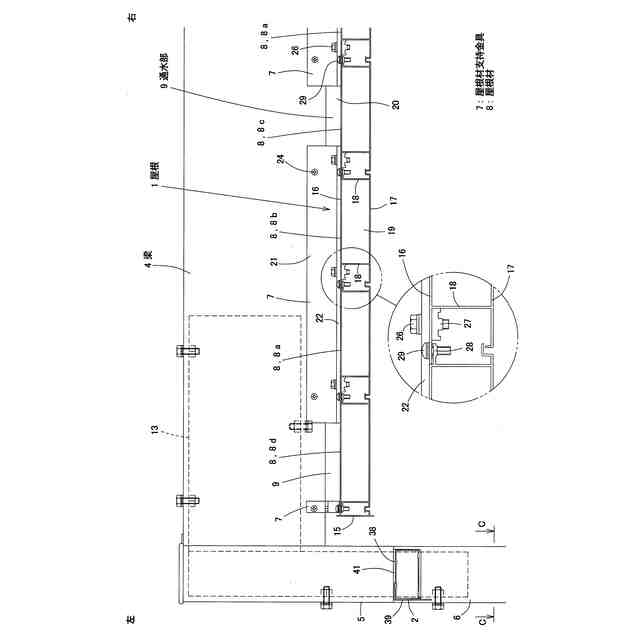
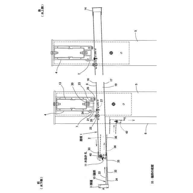
以下、本発明の実施の形態を図面に基づいて説明する。図1~7は、本発明の簡易建物の一実施形態を示している。本簡易建物は、住宅の敷地に設置される乗用車2台用のカーポートに適用したものであり、図1~4に示すように、左右の柱5,5の上部に梁4を架設した門型のフレームを前後方向に間隔をおいて2つ設けてあり、前後の梁4,4の下にまたがって屋根1が支持してある。屋根1は、図3に示すように、前側が低くなるように下向きに2°傾斜している。
【0010】
柱5は、図7に示すように、アルミニウム合金の押出形材で略矩形断面の中空状に形成されている。4本の柱のうち、左側の前側の柱5には、図1,7に示すように、前面にたて樋6が取付けてある。たて樋6は、アルミニウム合金の押出形材で略コ字型断面に形成され、左右の側面が柱5の左右の側面と面一で連続しており、柱5の前面に取付けた受け部品12に係合取付けされている。
梁4は、図6に示すように、アルミニウム合金の押出形材で略矩形断面の中空状に形成されており、長手方向の両端部を柱梁連結金具13により柱5の上端部に連結して支持してある。梁4は、図5に示すように、長手方向の両端部が屋根1よりも側方に張り出している。
(【0011】以降は省略されています)
この特許をJ-PlatPat(特許庁公式サイト)で参照する
関連特許
三協立山株式会社
構造体
11日前
三協立山株式会社
構造体
11日前
三協立山株式会社
構造体
11日前
三協立山株式会社
構造体
11日前
三協立山株式会社
構造体
11日前
三協立山株式会社
構造体
11日前
三協立山株式会社
簡易建物
1か月前
三協立山株式会社
簡易建物
1か月前
三協立山株式会社
簡易建物
1か月前
三協立山株式会社
開口部装置
1か月前
三協立山株式会社
開口部装置
1か月前
三協立山株式会社
開口部装置
1か月前
三協立山株式会社
開口部装置
1か月前
三協立山株式会社
開口部装置
3日前
三協立山株式会社
開口部装置
15日前
三協立山株式会社
開口部装置
1か月前
三協立山株式会社
開口部装置
1か月前
三協立山株式会社
水耕栽培装置
1日前
三協立山株式会社
荷物昇降装置
11日前
三協立山株式会社
照明付きポール
1か月前
三協立山株式会社
サッシの製造方法
1か月前
三協立山株式会社
エクステリア構成材
1か月前
三協立山株式会社
構造体、構造体の製造方法
11日前
三協立山株式会社
開口部装置の製造方法及びビレットの製造方法
1か月前
個人
接合構造
4日前
個人
タッチミー
3日前
個人
屋台
21日前
個人
野良猫ハウス
1か月前
個人
転落防止用手摺
1か月前
個人
フェンス
1か月前
個人
筋交自動設定装置
11日前
個人
居住車両用駐車場
1か月前
個人
ベンリナアングル
3日前
個人
地下型マンション
3か月前
ニチハ株式会社
建築板
1か月前
積水樹脂株式会社
柵体
1か月前
続きを見る
他の特許を見る