TOP
|
特許
|
意匠
|
商標
意匠ウォッチ
Twitter
他の意匠を見る
発行日
2025-09-30
公報種別
意匠公報(S)
登録番号
1809467
登録日
2025-09-19
意匠に係る物品
複合建築物
意匠分類
L3
-2000(組立て家屋、屋外装備品等)
出願番号
2025006058
出願日
2025-03-27
意匠権者
株式会社大林組
代理人
個人
,
個人
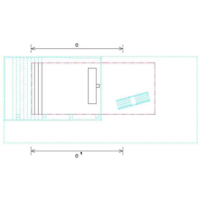
意匠に係る物品の説明
この建築物は、研究室、講義室、実習室、食堂などを含む複合建築物である。図面に表した意匠は、教室と食堂に係る部分である。a-a’、b-b’部分における扉を開けた状態を示す斜視図1、2に示すように、教室と食堂の間にある扉を開放する事ができるため、教室と食堂を一体的に利用することができる。そのため、例えば、教室の演台をステージとして、教室の椅子や食堂の椅子、階段等に座って、一体的にたのしむことができる。
意匠の説明
扉の下側部分は透明である。意匠登録を受けようとする部分を黒色の実線で、それ以外の部分を青色の破線で表した。赤色の一点鎖線は、意匠登録を受けようとする部分とそれ以外の部分との境界のみを示すものである。
この意匠をJ-PlatPat(特許庁公式サイト)で参照する
関連意匠
株式会社大林組
ベンチ
6か月前
株式会社大林組
ベンチ
6か月前
株式会社大林組
ベンチ
8か月前
株式会社大林組
テーブル
6か月前
株式会社大林組
自動走行装置
11か月前
株式会社大林組
テーブル
6か月前
株式会社大林組
自動走行装置本体
11か月前
株式会社大林組
自動走行装置本体
11か月前
株式会社大林組
連結具
3か月前
株式会社大林組
吊元装置
2か月前
株式会社大林組
吊元装置
2か月前
株式会社大林組
柱
5か月前
株式会社大林組
柱
2か月前
株式会社大林組
柱
2か月前
株式会社大林組
家具用ユニット材
6か月前
株式会社大林組
仮囲いパネル
7か月前
株式会社大林組
温度調整機能付ベンチ
6か月前
株式会社大林組
温度調整機能付ベンチ
6か月前
株式会社大林組
温度調整機能付ベンチ
6か月前
株式会社大林組
柱材
2か月前
株式会社大林組
仮囲いパネル
7か月前
株式会社大林組
仮囲いパネル
10か月前
株式会社大林組
建築用格子
6か月前
株式会社大林組
照明具
10か月前
株式会社大林組
鋼管の篏合位置監視用画像
8か月前
株式会社大林組
建築物用構造体
7か月前
株式会社大林組
建築用ルーバー材
8か月前
株式会社大林組
柵
3か月前
株式会社大林組
銘板
6か月前
株式会社大林組
藻場礁
9か月前
株式会社大林組
藻場礁
9か月前
株式会社大林組
建築用ルーバー材
8か月前
株式会社大林組
植栽帯
4か月前
株式会社大林組
病院
7か月前
株式会社大林組
病院
5か月前
株式会社大林組
病院
7か月前
続きを見る
他の意匠を見る