TOP
|
特許
|
意匠
|
商標
意匠ウォッチ
Twitter
他の意匠を見る
発行日
2025-09-24
公報種別
意匠公報(S)
登録番号
1808966
登録日
2025-09-12
意匠に係る物品
複合建築物
意匠分類
L3
-2000(組立て家屋、屋外装備品等)
出願番号
2025006053
出願日
2025-03-27
意匠権者
株式会社大林組
代理人
個人
,
個人
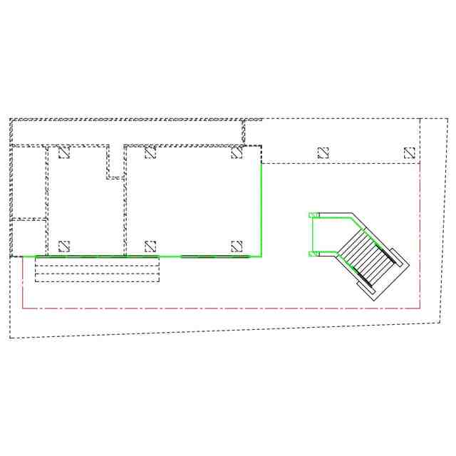
意匠に係る物品の説明
この建築物は、研究室、講義室、実習室、食堂などを含む複合建築物である。図面に表した意匠は、斜め階段で囲まれたプレイガーデン部である。例えば保育実習などの際に利用することができる。
意匠の説明
各図において、透明部は不透明体として表した。透明部を示す参考図において、薄青色を施した部分は透明である。各断面図に表された緑色は、意匠登録を受けようとする部分の断面形状のみを表すものである。意匠登録を受けようとする部分を実線で、それ以外の部分を破線で表した。赤色一点鎖線は、意匠登録を受けようとする部分とそれ以外の部分の境界のみを表すものである。意匠登録を受けようとする部分を示す参考図において、薄赤色を施した部分は意匠登録を受けようとする部分である。
意匠ウォッチbot のツイートを見る
この意匠をJ-PlatPat(特許庁公式サイト)で参照する
関連意匠
株式会社大林組
ベンチ
6か月前
株式会社大林組
ベンチ
6か月前
株式会社大林組
ベンチ
8か月前
株式会社大林組
テーブル
6か月前
株式会社大林組
自動走行装置
11か月前
株式会社大林組
テーブル
6か月前
株式会社大林組
自動走行装置本体
11か月前
株式会社大林組
自動走行装置本体
11か月前
株式会社大林組
連結具
3か月前
株式会社大林組
吊元装置
2か月前
株式会社大林組
吊元装置
2か月前
株式会社大林組
柱
5か月前
株式会社大林組
柱
2か月前
株式会社大林組
柱
2か月前
株式会社大林組
家具用ユニット材
6か月前
株式会社大林組
仮囲いパネル
7か月前
株式会社大林組
温度調整機能付ベンチ
6か月前
株式会社大林組
温度調整機能付ベンチ
6か月前
株式会社大林組
温度調整機能付ベンチ
6か月前
株式会社大林組
柱材
2か月前
株式会社大林組
仮囲いパネル
7か月前
株式会社大林組
仮囲いパネル
10か月前
株式会社大林組
建築用格子
6か月前
株式会社大林組
照明具
10か月前
株式会社大林組
鋼管の篏合位置監視用画像
8か月前
株式会社大林組
建築物用構造体
7か月前
株式会社大林組
建築用ルーバー材
8か月前
株式会社大林組
柵
3か月前
株式会社大林組
銘板
6か月前
株式会社大林組
藻場礁
9か月前
株式会社大林組
藻場礁
9か月前
株式会社大林組
建築用ルーバー材
8か月前
株式会社大林組
植栽帯
4か月前
株式会社大林組
病院
7か月前
株式会社大林組
病院
5か月前
株式会社大林組
病院
7か月前
続きを見る
他の意匠を見る