TOP
|
特許
|
意匠
|
商標
意匠ウォッチ
Twitter
他の意匠を見る
発行日
2025-08-20
公報種別
意匠公報(S)
登録番号
1806505
登録日
2025-08-12
意匠に係る物品
共用廊下の内装
意匠分類
L3
-70(組立て家屋、屋外装備品等)
出願番号
2025003647
出願日
2025-02-26
意匠権者
戸田建設株式会社
代理人
個人
,
個人
,
個人
意匠に係る物品の説明
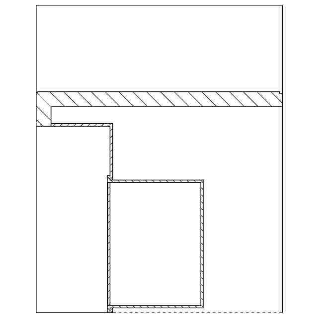
本願意匠は、オフィス、ホテル、店舗、学校、音楽ホール等における共用廊下の内装である。図面中背面側に表された壁には、凹みスペースが形成され、ベンチが設置されている。このベンチの下部空間を有効活用するため、ベンチ下には消化器ボックスが設置されている。
意匠の説明
実線で表した部分が、部分意匠として意匠登録を受けようとする部分である。
この意匠をJ-PlatPat(特許庁公式サイト)で参照する
関連意匠
戸田建設株式会社
受付カウンター
3か月前
戸田建設株式会社
音響拡散材
4か月前
戸田建設株式会社
ポスター
11か月前
戸田建設株式会社
排気塔
1か月前
戸田建設株式会社
工場
3か月前
戸田建設株式会社
地中埋設探査システム管理画面用画像
10か月前
戸田建設株式会社
地中埋設探査システム管理画面用画像
10か月前
戸田建設株式会社
オフィス
10か月前
戸田建設株式会社
共用廊下の内装
3か月前
戸田建設株式会社
複合建築物
10か月前
戸田建設株式会社
音楽ホールの内装
2か月前
戸田建設株式会社
音楽ホールの内装
3か月前
戸田建設株式会社
音楽ホールの内装
3か月前
野村不動産株式会社
オフィスビル
11日前
戸田建設株式会社
コンクリートのインピーダンス計測用装置
6か月前
株式会社LIXIL
門
2か月前
株式会社LIXIL
門
2か月前
株式会社LIXIL
門
2か月前
株式会社LIXIL
門
2か月前
積水樹脂株式会社
柵
1か月前
株式会社大林組
柵
3か月前
株式会社長谷工コーポレーション
門柱
9か月前
積水ハウス株式会社
住宅
8か月前
積水ハウス株式会社
住宅
8か月前
積水ハウス株式会社
住宅
8か月前
パナソニックIPマネジメント株式会社
門柱
1か月前
住友林業緑化株式会社
門柱
9か月前
株式会社長谷工コーポレーション
門柱
9か月前
旭化成ホームズ株式会社
住宅
11か月前
積水ハウス株式会社
住宅
8か月前
ミサワホーム株式会社
住宅
11か月前
ミサワホーム株式会社
住宅
11か月前
積水ハウス株式会社
住宅
6か月前
戸田建設株式会社
工場
3か月前
積水ハウス株式会社
住宅
9か月前
株式会社大林組
病院
5か月前
続きを見る
他の意匠を見る