TOP
|
特許
|
意匠
|
商標
意匠ウォッチ
Twitter
他の意匠を見る
発行日
2025-11-25
公報種別
意匠公報(S)
登録番号
1813449
登録日
2025-11-14
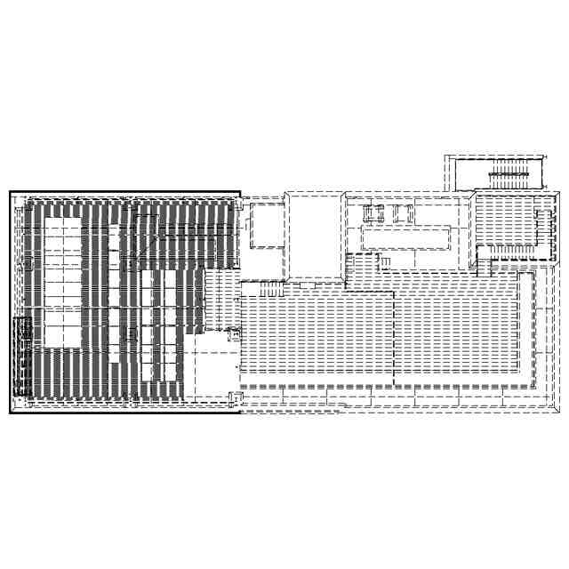
意匠に係る物品
オフィスビル
意匠分類
L3
-2000(組立て家屋、屋外装備品等)
出願番号
2025010973
出願日
2025-06-03
意匠権者
野村不動産株式会社
,
戸田建設株式会社
代理人
個人
,
個人
意匠に係る物品の説明
本物品(建築物)は、事務所として使用される目的で建てられるオフィスビルである。
意匠の説明
実線で表した部分が意匠登録を受けようとする部分である。意匠登録を受けようとする部分は、[正面図],[左側面図]に示すように、オフィスビルの外壁の角部において窓枠下の木目模様の腰壁の上端から下方に向け給排気を行うガラリを経て庇に至るまでの部分である([各部名称を示す参考図]参照)。また、本物品は、土着物のオフィスビル(建築物)であり底面を見ることができないため[底面図]は省略する。
この意匠をJ-PlatPat(特許庁公式サイト)で参照する
関連意匠
野村不動産株式会社
住宅
12か月前
野村不動産株式会社
複合建築物
今日
野村不動産株式会社
複合建築物
3か月前
野村不動産株式会社
オフィスビル
9日前
野村不動産株式会社
防災用品収納用ロッカー
5か月前
野村不動産株式会社
防災用品収納用ロッカー
5か月前
株式会社大林組
柵
3か月前
株式会社LIXIL
門
2か月前
積水樹脂株式会社
柵
1か月前
株式会社LIXIL
門
2か月前
株式会社LIXIL
門
2か月前
株式会社LIXIL
門
2か月前
住友林業株式会社
住宅
6か月前
個人
住宅
9か月前
株式会社長谷工コーポレーション
住宅
2か月前
旭化成ホームズ株式会社
住宅
2か月前
旭化成ホームズ株式会社
住宅
2か月前
トクラス株式会社
浴室
10か月前
個人
鳥居
9か月前
旭化成ホームズ株式会社
住宅
9か月前
個人
住宅
9か月前
積水ハウス株式会社
住宅
10か月前
積水ハウス株式会社
住宅
9か月前
積水ハウス株式会社
住宅
9か月前
戸田建設株式会社
工場
3か月前
積水ハウス株式会社
住宅
9か月前
積水ハウス株式会社
住宅
9か月前
住友林業緑化株式会社
門柱
9か月前
株式会社長谷工コーポレーション
門柱
8か月前
株式会社長谷工コーポレーション
門柱
8か月前
グローバルホールディングス株式会社
住宅
2か月前
積水ハウス株式会社
住宅
10か月前
積水ハウス株式会社
住宅
10か月前
積水ハウス株式会社
住宅
10か月前
個人
住宅
1か月前
個人
住宅
11か月前
続きを見る
他の意匠を見る