TOP
|
特許
|
意匠
|
商標
意匠ウォッチ
Twitter
他の意匠を見る
発行日
2025-10-23
公報種別
意匠公報(S)
登録番号
1811307
登録日
2025-10-15
意匠に係る物品
住宅
意匠分類
L3
-21(組立て家屋、屋外装備品等)
出願番号
2025008653
出願日
2025-04-30
意匠権者
個人
代理人
弁理士法人井上国際特許商標事務所
意匠に係る物品の説明
意匠の説明
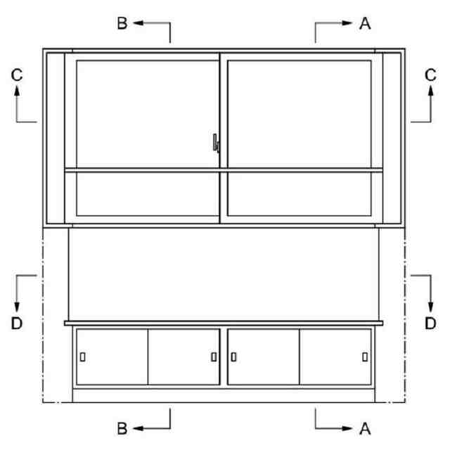
実線で表した部分が、意匠登録を受けようとする部分である。窓の室内側の下方に人が座るのに適した高さで天板が配置され、その下に収納スペースが設けられている。一点鎖線は、意匠登録を受けようとする部分とその他の部分との境界を示す。透明部を示す参考正面図、透明部を示す参考A-A断面図、透明部を示す参考B-B断面図、透明部を示す参考背面図において格子状のハッチングが施された部分は透明である。
この意匠をJ-PlatPat(特許庁公式サイト)で参照する
関連意匠
株式会社大林組
柵
2か月前
積水樹脂株式会社
柵
1か月前
株式会社LIXIL
門
2か月前
株式会社LIXIL
門
2か月前
株式会社LIXIL
門
2か月前
株式会社LIXIL
門
2か月前
旭化成ホームズ株式会社
住宅
今日
三協立山株式会社
門柱
1か月前
積水ハウス株式会社
住宅
8か月前
住友林業緑化株式会社
門柱
8か月前
株式会社長谷工コーポレーション
門柱
8か月前
株式会社長谷工コーポレーション
門柱
8か月前
積水ハウス株式会社
住宅
8か月前
積水ハウス株式会社
住宅
8か月前
グローバルホールディングス株式会社
住宅
2か月前
積水ハウス株式会社
住宅
8か月前
積水ハウス株式会社
住宅
8か月前
積水ハウス株式会社
住宅
8か月前
三協立山株式会社
門扉
7か月前
株式会社LIXIL
門扉
7か月前
株式会社長谷工コーポレーション
住宅
2か月前
旭化成ホームズ株式会社
住宅
2か月前
積水ハウス株式会社
住宅
8か月前
YKK AP株式会社
門扉
1か月前
積水ハウス株式会社
住宅
8か月前
住友林業株式会社
住宅
1か月前
旭化成ホームズ株式会社
住宅
10か月前
積水ハウス株式会社
住宅
10か月前
積水ハウス株式会社
住宅
10か月前
積水ハウス株式会社
住宅
10か月前
積水ハウス株式会社
住宅
10か月前
積水ハウス株式会社
住宅
10か月前
積水ハウス株式会社
住宅
10か月前
積水ハウス株式会社
住宅
10か月前
積水ハウス株式会社
住宅
10か月前
石友ホーム株式会社
住宅
1か月前
続きを見る
他の意匠を見る