TOP
|
特許
|
意匠
|
商標
意匠ウォッチ
Twitter
他の意匠を見る
発行日
2025-11-18
公報種別
意匠公報(S)
登録番号
1812977
登録日
2025-11-10
意匠に係る物品
店舗
意匠分類
L3
-24(組立て家屋、屋外装備品等)
出願番号
2024022737
出願日
2024-10-31
意匠権者
株式会社ジンズホールディングス
代理人
個人
,
個人
,
個人
,
個人
意匠に係る物品の説明
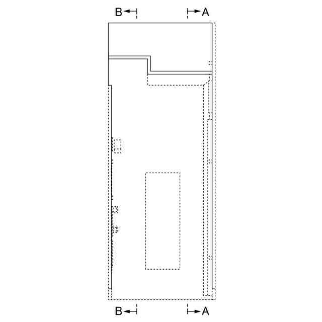
本建築物は、眼鏡などの物品を展示または販売する商業施設内のテナント店舗や路面店舗に関する。「正面側透視図」に開示されるとおり、本建築物は、正面奥側の上方が吹き抜けになっている壁部と同じ高さの位置で店内壁面部が上下ツートーンの明暗調子としてあらわれるものである。店内壁面部の明暗調子の境界を壁部とそろえ、かつ下方を壁部と同じ暗調子とすることで、上方の明調子部分との対比によって、天井の低い日本家屋を思わせる均整の取れた落ち着いた店内空間を演出するものである。
意匠の説明
実線で表された部分が意匠登録を受けようとする部分である。一点鎖線は、意匠登録を受けようとする部分とその他の部分との境界を示す。平面図では、内部の形状等を表すため天井を除いた状態であらわしている。各図にあらわされた暗調子部分は、色彩を示すものではなく、明調子部分との明度差を示すものである。
この意匠をJ-PlatPat(特許庁公式サイト)で参照する
関連意匠
株式会社ジンズホールディングス
8か月前
株式会社ジンズホールディングス
11か月前
株式会社ジンズホールディングス
11か月前
株式会社ジンズホールディングス
眼鏡
4か月前
株式会社ジンズホールディングス
眼鏡
4か月前
株式会社ジンズホールディングス
店舗
今日
株式会社ジンズホールディングス
眼鏡用アタッチメント
10か月前
株式会社ジンズホールディングス
眼鏡用アタッチメント
10か月前
株式会社ジンズホールディングス
載置台
3か月前
株式会社LIXIL
門
2か月前
株式会社大林組
柵
2か月前
積水樹脂株式会社
柵
27日前
株式会社LIXIL
門
2か月前
株式会社LIXIL
門
2か月前
株式会社LIXIL
門
2か月前
石友ホーム株式会社
住宅
1か月前
積水ハウス株式会社
住宅
5か月前
積水ハウス株式会社
住宅
1か月前
YKK AP株式会社
門扉
1か月前
YKK AP株式会社
門扉
1か月前
株式会社ジンズホールディングス
店舗
今日
株式会社丸豊建硝
手摺
5か月前
トクラス株式会社
浴室
9か月前
個人
鳥居
9か月前
個人
住宅
9か月前
YKK AP株式会社
門扉
1か月前
個人
住宅
9か月前
旭化成ホームズ株式会社
住宅
8か月前
旭化成ホームズ株式会社
住宅
8か月前
住友林業株式会社
住宅
1か月前
株式会社丸豊建硝
手摺
5か月前
株式会社丸豊建硝
手摺
5か月前
積水ハウス株式会社
住宅
10か月前
ミサワホーム株式会社
住宅
10か月前
帝人株式会社
住宅
10か月前
旭化成ホームズ株式会社
住宅
10か月前
続きを見る
他の意匠を見る