TOP
|
特許
|
意匠
|
商標
意匠ウォッチ
Twitter
他の意匠を見る
発行日
2025-09-03
公報種別
意匠公報(S)
登録番号
1778575
登録日
2024-08-20
意匠に係る物品
配管用支持具
意匠分類
M2
-614(配線・配管用管、管継ぎ手、バルブ等)
出願番号
2024002794
出願日
2024-02-08
意匠権者
因幡電機産業株式会社
代理人
弁理士法人R&C
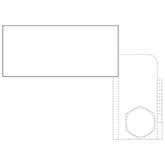
意匠に係る物品の説明
本願意匠に係る物品は、縦引き配管を支持する配管用支持具であって、「使用状態を示す参考図1、2」に示すように、拘束部材の鉤状部をL字型の架台の縁に引掛けボルトを回すことで、拘束部材と固定部材とで架台を挟んで、架台に固定されるように構成されている。
意匠の説明
実線で表した部分が部分意匠として意匠登録を受けようとする部分である。一点鎖線は部分意匠として意匠登録を受けようとする部分とその他の部分との境界のみを示す線である。各斜視図、及び各使用状態を示す参考図において表れる途切れた細線は、立体形状を表わす稜線である。
意匠ウォッチbot のツイートを見る
この意匠をJ-PlatPat(特許庁公式サイト)で参照する
関連意匠
因幡電機産業株式会社
配管用支持具
3か月前
因幡電機産業株式会社
配管用支持具
3か月前
因幡電機産業株式会社
配管用支持具
6か月前
因幡電機産業株式会社
配管用支持具
6か月前
因幡電機産業株式会社
配管用支持具
6か月前
因幡電機産業株式会社
配管用支持具
6か月前
因幡電機産業株式会社
配管用支持具
6か月前
因幡電機産業株式会社
配管用支持具
3か月前
因幡電機産業株式会社
配管用支持具
3か月前
因幡電機産業株式会社
配管用スリーブ
2か月前
因幡電機産業株式会社
配管用スリーブ
2か月前
因幡電機産業株式会社
配管用スリーブ
2か月前
株式会社タブチ
水栓
9か月前
株式会社タブチ
水栓
9か月前
SANEI株式会社
水栓
8か月前
株式会社KVK
水栓
3か月前
株式会社KVK
水栓
3か月前
株式会社水道技術開発機構
管継手
5か月前
株式会社鷺宮製作所
電動弁
12か月前
TOTO株式会社
給水栓
8か月前
株式会社タブチ
管継手
8か月前
株式会社タブチ
管継手
8か月前
株式会社タブチ
止水栓
12か月前
エスビー工業株式会社
管継手
8か月前
日鉄パイプライン&エンジニアリング株式会社
管継手
8か月前
エバック株式会社
管継手
8か月前
ニッタ株式会社
管継手
1か月前
株式会社タブチ
逆止弁
5か月前
株式会社藤井合金製作所
管継手
1か月前
株式会社タブチ
止水栓
12か月前
株式会社タブチ
逆止弁
5か月前
三井金属エンジニアリング株式会社
管継手
8か月前
株式会社竹村製作所
給水栓
2か月前
株式会社竹村製作所
給水栓
2か月前
株式会社竹村製作所
給水栓
2か月前
株式会社ホーシン
養生蓋
11か月前
続きを見る
他の意匠を見る