TOP
|
特許
|
意匠
|
商標
意匠ウォッチ
Twitter
他の意匠を見る
発行日
2025-08-28
公報種別
意匠公報(S)
登録番号
1807308
登録日
2025-08-20
意匠に係る物品
コンクリート用型枠
意匠分類
L1
-300(仮設工事用品)
出願番号
2025006162
出願日
2025-03-27
意匠権者
株式会社高洋商会
代理人
個人
意匠に係る物品の説明
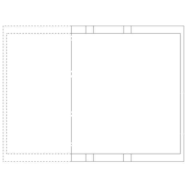
本願意匠に係る「コンクリート用型枠」は、型枠で囲んで構造物を形成する際、又は、トンネル内の壁面にコンクリートを打設する際に使用される。「使用状態を示す参考斜視図」に示すように、下段の型枠上部に設けた等脚台形状の凸部に嵌る凹部を両側部に備え、凹部の内側に突部の左右のずれを規制する止め板を備え、型枠のコンクリート打設面(前面)には連結用の凸部及び凹部は無いことを特徴とする。積み重ねて用いるため、本願物品の上部の両側部には凸部を備える場合もある。
意匠の説明
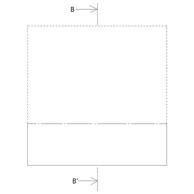
実線で示されている部分が、コンクリート型枠の内、部分意匠として意匠登録を受けようとする部分である。意匠登録を受けようとする部分以外を点線で示す。また、部分意匠を受けようとする部分とそれ以外の部分との境界線を一点鎖線で示す。
この意匠をJ-PlatPat(特許庁公式サイト)で参照する
関連意匠
株式会社高洋商会
コンクリート用型枠
3か月前
個人
柵
10か月前
個人
柵
10か月前
ペリー エスエー
支保工
11か月前
株式会社三共
足場板
12か月前
株式会社片桐
型枠材
5か月前
株式会社片桐
型枠材
6か月前
個人
調整足場
4か月前
株式会社大林組
吊元装置
2か月前
原田工業株式会社
足場部材
4か月前
個人
吊り金具
9か月前
東阪工業株式会社
足場板材
11か月前
ヒロセ株式会社
梁受け具
11か月前
モン.ゾン デベロップメント アーベー
足場用梁
4か月前
個人
吊り金具
9か月前
日鉄建材株式会社
土留め壁
4か月前
株式会社大林組
吊元装置
2か月前
日鉄建材株式会社
土留め壁
8か月前
日鉄建材株式会社
土留め壁
8か月前
日鉄建材株式会社
土留め壁
9か月前
JFE建材株式会社
立坑用部材
3か月前
株式会社ダイサン
仮設用支柱
10か月前
港製器工業株式会社
腹起し支柱
11か月前
JFE建材株式会社
立坑用部材
8か月前
JFE建材株式会社
立坑用部材
8か月前
JFE建材株式会社
立坑用部材
3か月前
JFE建材株式会社
立坑用部材
3か月前
JFE建材株式会社
立坑用部材
3か月前
JFE建材株式会社
立坑用部材
7か月前
株式会社東京BK足場
足場用金具
3か月前
JFE建材株式会社
立坑用部材
8か月前
JFE建材株式会社
立坑用部材
8か月前
JFE建材株式会社
立坑用部材
8か月前
JFE建材株式会社
立坑用部材
8か月前
港製器工業株式会社
腹起し支柱
2か月前
藤本貴昭株式会社
養生ボード
4か月前
続きを見る
他の意匠を見る