TOP
|
特許
|
意匠
|
商標
意匠ウォッチ
Twitter
他の意匠を見る
発行日
2025-11-17
公報種別
意匠公報(S)
登録番号
1812836
登録日
2025-11-07
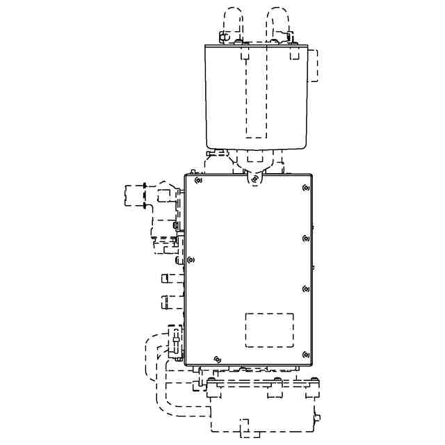
意匠に係る物品
浴槽洗浄装置用洗浄ユニット
意匠分類
D5
-31900(厨房設備用品及び衛生設備用品)
出願番号
2025004160
出願日
2025-03-03
意匠権者
株式会社ノーリツ
,
NORITZ CORPORATION
代理人
意匠に係る物品の説明
本物品は、浴室内に設置される浴槽洗浄装置用の洗浄ユニットである。
意匠の説明
実線で表した部分が、意匠登録を受けようとする部分である。
この意匠をJ-PlatPat(特許庁公式サイト)で参照する
関連意匠
株式会社ノーリツ
グリル容器
7か月前
株式会社ノーリツ
グリル容器の蓋
7か月前
株式会社ノーリツ
グリル用容器保持具
7か月前
株式会社ノーリツ
ガスこんろ用五徳
7か月前
株式会社ノーリツ
ガスこんろ用五徳
7か月前
株式会社ノーリツ
ガスこんろ用五徳
7か月前
株式会社ノーリツ
ガスこんろ用五徳
7か月前
株式会社ノーリツ
ガスこんろ用五徳
7か月前
株式会社ノーリツ
ガスこんろ用五徳
7か月前
株式会社ノーリツ
ガスこんろ用五徳
7か月前
株式会社ノーリツ
ガスこんろ用五徳
7か月前
株式会社ノーリツ
ガスこんろ用五徳
7か月前
株式会社ノーリツ
ガスこんろ用五徳
5か月前
株式会社ノーリツ
ガスこんろ用五徳
5か月前
株式会社ノーリツ
ガスこんろ用五徳
7か月前
株式会社ノーリツ
ガスこんろ用五徳
7か月前
株式会社ノーリツ
給湯器
1か月前
株式会社ノーリツ
流量調整弁体
10か月前
株式会社ノーリツ
給湯器用カバー
2か月前
株式会社ノーリツ
給湯器用カバー
2か月前
株式会社ノーリツ
給湯器用カバー
2か月前
株式会社ノーリツ
給湯器用カバー
2か月前
株式会社ノーリツ
浴槽洗浄装置用洗浄ユニット
今日
株式会社ノーリツ
浴槽洗浄装置用洗浄ユニット
今日
株式会社ノーリツ
浴槽洗浄装置用洗浄ユニット
今日
株式会社ノーリツ
給湯器用内蔵部品支持板
28日前
株式会社ノーリツ
ヒートポンプ式給湯器用室外機
1か月前
株式会社ノーリツ
ヒートポンプ式給湯器用貯湯タンク
1か月前
TOTO株式会社
浴槽
10か月前
株式会社S.P.M
浴槽
3か月前
TOTO株式会社
浴槽
6日前
クリナップ株式会社
浴槽
3か月前
積水ホームテクノ株式会社
浴槽
2か月前
クリナップ株式会社
浴槽
3か月前
クリナップ株式会社
浴槽
9か月前
クリナップ株式会社
浴槽
3か月前
続きを見る
他の意匠を見る