TOP
|
特許
|
意匠
|
商標
意匠ウォッチ
Twitter
他の意匠を見る
発行日
2025-10-09
公報種別
意匠公報(S)
登録番号
1810327
登録日
2025-10-01
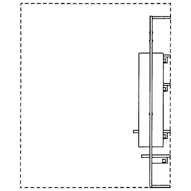
意匠に係る物品
住宅の内装
意匠分類
L3
-72(組立て家屋、屋外装備品等)
出願番号
2023027517
出願日
2023-12-19
意匠権者
株式会社第一住建
代理人
意匠に係る物品の説明
この内装は、住宅の内装であり、内部にコの字型の支柱と、支柱に取り付けられた棚受けに対し固定された複数の棚板及び、支柱に取り付けられたハンガーパイプ受けに対し固定されたハンガーパイプとを備える収納家具を設置している。
意匠の説明
実線で表した部分が、意匠登録を受けようとする部分である。
この意匠をJ-PlatPat(特許庁公式サイト)で参照する
関連意匠
株式会社第一住建
住宅の内装
1か月前
株式会社LIXIL
門
2か月前
株式会社LIXIL
門
2か月前
株式会社LIXIL
門
2か月前
株式会社LIXIL
門
2か月前
積水樹脂株式会社
柵
1か月前
株式会社大林組
柵
3か月前
株式会社長谷工コーポレーション
門柱
9か月前
積水ハウス株式会社
住宅
8か月前
積水ハウス株式会社
住宅
8か月前
積水ハウス株式会社
住宅
8か月前
パナソニックIPマネジメント株式会社
門柱
1か月前
住友林業緑化株式会社
門柱
9か月前
株式会社長谷工コーポレーション
門柱
9か月前
旭化成ホームズ株式会社
住宅
11か月前
積水ハウス株式会社
住宅
8か月前
ミサワホーム株式会社
住宅
11か月前
ミサワホーム株式会社
住宅
11か月前
積水ハウス株式会社
住宅
6か月前
戸田建設株式会社
工場
3か月前
積水ハウス株式会社
住宅
9か月前
株式会社大林組
病院
5か月前
積水ハウス株式会社
住宅
6か月前
個人
住宅
1か月前
三協立山株式会社
門扉
8か月前
積水ハウス株式会社
住宅
5か月前
トヨタホーム株式会社
住宅
8か月前
積水ハウス株式会社
住宅
5か月前
積水ハウス株式会社
住宅
5か月前
株式会社LIXIL
門扉
8か月前
石友ホーム株式会社
住宅
11か月前
個人
住宅
11か月前
積水ハウス株式会社
住宅
1か月前
個人
住宅
11か月前
個人
住宅
11か月前
積水ハウス株式会社
住宅
1か月前
続きを見る
他の意匠を見る