TOP
|
特許
|
意匠
|
商標
意匠ウォッチ
Twitter
他の意匠を見る
発行日
2025-05-21
公報種別
意匠公報(S)
登録番号
1799136
登録日
2025-05-13
意匠に係る物品
けらば化粧材
意匠分類
L6
-1170(建築用内外装材)
出願番号
2024023071
出願日
2024-11-07
意匠権者
ケイミュー株式会社
代理人
弁理士法人北斗特許事務所
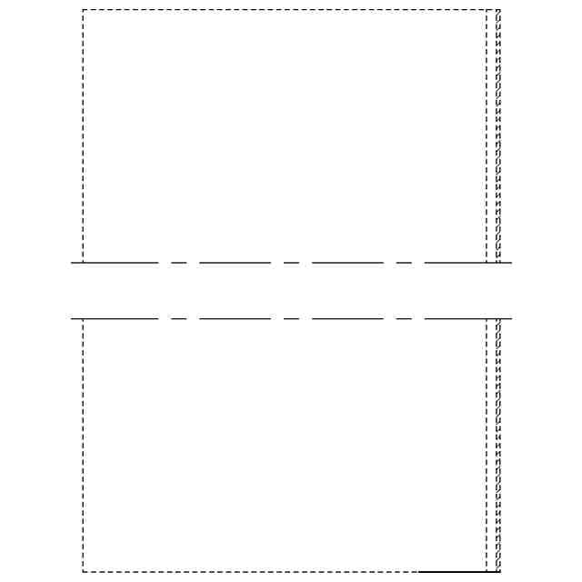
意匠に係る物品の説明
本物品は、屋根のけらばを被覆するようにけらばに沿って設置される化粧材である。
意匠の説明
実線で表した部分が、意匠登録を受けようとする部分である。一点鎖線は、長尺部分の中間省略を示すものである。この意匠は、平面図において上下にのみ連続するものである。
この意匠をJ-PlatPat(特許庁公式サイト)で参照する
関連意匠
ケイミュー株式会社
壁板
26日前
ケイミュー株式会社
壁板
3か月前
ケイミュー株式会社
壁板
4か月前
ケイミュー株式会社
壁板
4か月前
ケイミュー株式会社
壁板
4か月前
ケイミュー株式会社
棟包
1か月前
ケイミュー株式会社
壁板
3か月前
ケイミュー株式会社
壁板
3か月前
ケイミュー株式会社
壁板
3か月前
ケイミュー株式会社
壁板
3か月前
ケイミュー株式会社
壁板
3か月前
ケイミュー株式会社
壁板
3か月前
ケイミュー株式会社
壁板
3か月前
ケイミュー株式会社
屋根材
7か月前
ケイミュー株式会社
壁用出隅板
7か月前
ケイミュー株式会社
壁用出隅板
7か月前
ケイミュー株式会社
けらば化粧材
5か月前
ケイミュー株式会社
一組の土木建築用品セット
4か月前
伊山瓦協業組合
瓦
2か月前
ケイミュー株式会社
壁板
3か月前
株式会社ウッドワン
巾木
11か月前
東リ株式会社
巾木
12か月前
有限会社大村スチール
壁板
4か月前
株式会社リムジンインタナショナル
床材
11か月前
株式会社リムジンインタナショナル
床材
11か月前
株式会社ウッドワン
巾木
11か月前
株式会社ウッドワン
巾木
11か月前
株式会社ウッドワン
巾木
11か月前
株式会社ウッドワン
巾木
11か月前
株式会社ウッドワン
巾木
11か月前
株式会社ウッドワン
巾木
11か月前
株式会社ウッドワン
巾木
11か月前
ケイミュー株式会社
壁板
4か月前
ケイミュー株式会社
壁板
3か月前
ケイミュー株式会社
壁板
3か月前
ケイミュー株式会社
壁板
3か月前
続きを見る
他の意匠を見る