TOP
|
特許
|
意匠
|
商標
意匠ウォッチ
Twitter
他の意匠を見る
発行日
2025-09-19
公報種別
意匠公報(S)
登録番号
1808754
登録日
2025-09-10
意匠に係る物品
宿泊施設
意匠分類
L3
-2000(組立て家屋、屋外装備品等)
出願番号
2024015118
出願日
2024-07-04
意匠権者
株式会社アールシーコア
代理人
意匠に係る物品の説明
意匠の説明
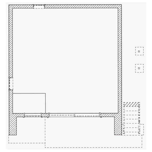
実線で表した部分が、意匠登録を受けようとする部分である。底面図は、重量物のため省略する。 参考正面図、参考背面図、参考左側面図、参考B-B断面図及び参考C-C断面図において、水色部分は透明である。
意匠ウォッチbot のツイートを見る
この意匠をJ-PlatPat(特許庁公式サイト)で参照する
関連意匠
株式会社アールシーコア
建築用パネル
4か月前
株式会社アールシーコア
建築用パネル
4か月前
株式会社アールシーコア
建築用パネル
4か月前
株式会社アールシーコア
収納棚
11か月前
株式会社アールシーコア
宿泊施設
2か月前
株式会社アールシーコア
宿泊施設
5か月前
株式会社アールシーコア
破風化粧板を備えた住宅
3か月前
株式会社アールシーコア
破風化粧板を備えた住宅
3か月前
株式会社アールシーコア
破風化粧板を備えた住宅
3か月前
積水樹脂株式会社
柵
1か月前
株式会社LIXIL
門
2か月前
株式会社LIXIL
門
2か月前
株式会社LIXIL
門
2か月前
株式会社LIXIL
門
2か月前
株式会社大林組
柵
3か月前
YKK AP株式会社
門扉
5か月前
旭化成ホームズ株式会社
住宅
2か月前
YKK AP株式会社
門塀
3か月前
YKK AP株式会社
門塀
3か月前
株式会社丸豊建硝
手摺
6か月前
旭化成ホームズ株式会社
住宅
3か月前
積水ハウス株式会社
住宅
10か月前
パナソニックIPマネジメント株式会社
門柱
1か月前
YKK AP株式会社
門扉
3か月前
YKK AP株式会社
門扉
3か月前
株式会社丸豊建硝
手摺
6か月前
株式会社丸豊建硝
手摺
6か月前
トクラス株式会社
浴室
9か月前
個人
鳥居
9か月前
個人
住宅
9か月前
個人
住宅
9か月前
積水ハウス株式会社
住宅
6か月前
積水ハウス株式会社
住宅
10か月前
積水ハウス株式会社
住宅
10か月前
個人
住宅
1か月前
帝人株式会社
住宅
10か月前
続きを見る
他の意匠を見る