TOP
|
特許
|
意匠
|
商標
特許ウォッチ
Twitter
他の特許を見る
10個以上の画像は省略されています。
公開番号
2025178755
公報種別
公開特許公報(A)
公開日
2025-12-09
出願番号
2024085553
出願日
2024-05-27
発明の名称
可動式柵及び可動式柵の支柱用キャスター
出願人
日鉄神鋼建材株式会社
代理人
個人
主分類
E01F
15/04 20060101AFI20251202BHJP(道路,鉄道または橋りょうの建設)
要約
【課題】設置と移動の切り替えが容易となる可動式柵を提供する。
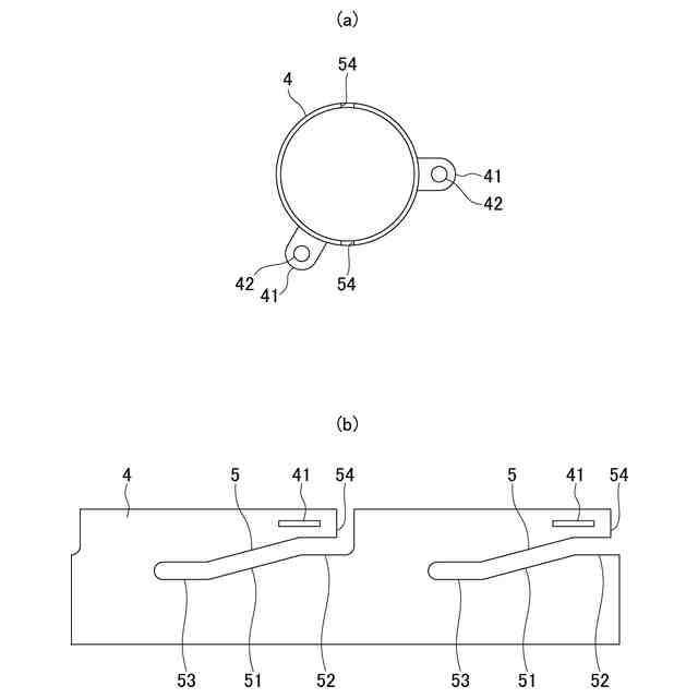
【解決手段】実施形態における可動式柵100は、一対の支柱7と、一対の支柱7に架設される架設材8と、支柱7に取り付けられる支柱用キャスター1と、を備える。支柱用キャスター1は、複数の車輪2と、複数の車輪2が取り付けられるベースプレート3と、ベースプレート3が取り付けられるとともに支柱7が挿入される鞘管4と、鞘管4に形成される溝部5と、支柱7に形成されるとともに溝部5に沿って相対移動可能な突起部6と、を有する。溝部5は、水平に対して傾斜した傾斜溝部51を有し、突起部6を傾斜溝部51に沿って相対移動させることにより、支柱7の下端が地面から離間した状態と、支柱7の下端が地面に接した状態と、が制御されることを特徴とする。
【選択図】図3
特許請求の範囲
【請求項1】
一対の支柱と、一対の前記支柱に架設される架設材と、前記支柱に取り付けられる支柱用キャスターと、を備える可動式柵であって、
前記支柱用キャスターは、
複数の車輪と、
複数の前記車輪が取り付けられるベースプレートと、
前記ベースプレートが取り付けられるとともに前記支柱が挿入される鞘管と、
前記鞘管及び前記支柱の何れか一方に形成される溝部と、
前記鞘管及び前記支柱の何れか他方に形成されるとともに前記溝部に沿って相対移動可能な突起部と、を有し、
前記溝部は、水平に対して傾斜した傾斜溝部を有し、
前記突起部を前記傾斜溝部に沿って相対移動させることにより、前記支柱の下端が地面から離間した状態と、前記支柱の下端が地面に接した状態と、が制御されること
を特徴とする可動式柵。
続きを表示(約 760 文字)
【請求項2】
前記支柱に取り付けられるとともに貫通孔を有する第1平板と、
前記鞘管に取り付けられるとともに貫通孔を有する第2平板と、
前記第1平板の貫通孔と前記第2平板の貫通孔とに差し込まれる杭と、を更に備えること
を特徴とする請求項1記載の可動式柵。
【請求項3】
前記杭は、地面に接すること
を特徴とする請求項2記載の可動式柵。
【請求項4】
前記溝部は、前記傾斜溝部の上端と下端との少なくとも一方に、水平に延伸する水平溝部を有すること
を特徴とする請求項1記載の可動式柵。
【請求項5】
前記鞘管は、前記鞘管の上端から前記溝部に繋がる上端挿入溝部を有し、
前記上端挿入溝部は、前記突起部が挿入可能であること
を特徴とする請求項1記載の可動式柵。
【請求項6】
一対の支柱と、一対の前記支柱に架設される架設材と、を備える可動式柵の前記支柱に取り付けられる可動式柵の支柱用キャスターであって、
複数の車輪と、
複数の前記車輪が取り付けられるベースプレートと、
前記ベースプレートが取り付けられるとともに前記支柱が挿入される鞘管と、
前記鞘管及び前記支柱の何れか一方に形成される溝部と、
前記鞘管及び前記支柱の何れか他方に形成されるとともに前記溝部に沿って相対移動可能な突起部と、を有し、
前記溝部は、水平に対して傾斜した傾斜溝部を有し、
前記突起部を前記傾斜溝部に沿って相対移動させることにより、前記支柱の下端が地面に接した状態と、前記支柱の下端が地面から離間した状態と、が制御されること
を特徴とする可動式柵の支柱用キャスター。
発明の詳細な説明
【技術分野】
【0001】
本発明は、可動式柵及び可動式柵の支柱用キャスターに関する。
続きを表示(約 2,000 文字)
【背景技術】
【0002】
従来、設置場所から移動可能な可動式柵として、例えば特許文献1~2が提案されている。
【0003】
特許文献1の防護柵は、所定箇所の地面に固定された複数の固定管と、前記所定箇所の地面上に設置される防護柵本体であって複数の固定管の各々の上方の位置において上下方向に延びる複数の外管と複数の外管を繋ぐビームとを有するものと、外管内の空間と固定管内の空間とにまたがって配置されることにより外管と固定管とを連結する連結高さ位置と外管内の空間から下方に離脱する離脱高さ位置との間で上下方向に移動可能となるように固定管内に挿入された連結部材とを備え、防護柵本体は、連結部材が連結高さ位置に配置されたときに当該連結部材を連結高さ位置で保持する保持装置を有する。
【0004】
特許文献2の防護柵システムは、複数の可動防護柵を備え、各可動防護柵の第1前側突出部、第1後側突出部、第2前側突出部及び第2後側突出部の突出寸法は、任意の可動防護柵の第1及び第2前側突出部が前側に隣接する可動防護柵の第1及び第2後側突出部とオーバーラップしかつ第1後側突出部及び第2前側突出部の幅方向の外側にそれぞれ第1前側突出部及び第2後側突出部が位置することを可能にし、かつ、当該任意の可動防護柵の第1前側突出部が前側に隣接する可動防護柵の第1後側突出部から幅方向の外側に離れる向きに当該任意の可動防護柵が垂直軸回りに回転することによりその前後両側の可動防護柵から離脱可能にする寸法に設定されている。
【先行技術文献】
【特許文献】
【0005】
特開2019-108769号公報
特開2019-157583号公報
【発明の概要】
【発明が解決しようとする課題】
【0006】
特許文献1の開示技術では、地中に埋設された固定管に連結部材が挿入される。特許文献2の開示技術では、地中に埋設された固定管に挿入管が挿入される。柵を所定の場所に設置する際や柵を移動する際、特許文献1~2の開示技術では、固定管に挿入可能な連結部材や挿入管を人力で持ち上げる必要がある。このため、柵の設置と移動とを切り替える際の負担が大きい、という事情がある。
【0007】
そこで、本発明は、上述した事情に鑑みて案出されたものであり、その目的とするところは、設置と移動の切り替えが容易となる可動式柵及び可動式柵の支柱用キャスターを提供することにある。
【課題を解決するための手段】
【0008】
本発明に係る可動式柵は、一対の支柱と、一対の前記支柱に架設される架設材と、前記支柱に取り付けられる支柱用キャスターと、を備える可動式柵であって、前記支柱用キャスターは、複数の車輪と、複数の前記車輪が取り付けられるベースプレートと、前記ベースプレートが取り付けられるとともに前記支柱が挿入される鞘管と、前記鞘管及び前記支柱の何れか一方に形成される溝部と、前記鞘管及び前記支柱の何れか他方に形成されるとともに前記溝部に沿って相対移動可能な突起部と、を有し、前記溝部は、水平に対して傾斜した傾斜溝部を有し、前記突起部を前記傾斜溝部に沿って相対移動させることにより、前記支柱の下端が地面から離間した状態と、前記支柱の下端が地面に接した状態と、が制御されることを特徴とする。
【0009】
本発明に係る可動式柵の支柱用キャスターは、一対の支柱と、一対の前記支柱に架設される架設材と、を備える可動式柵の前記支柱に取り付けられる可動式柵の支柱用キャスターであって、複数の車輪と、複数の前記車輪が取り付けられるベースプレートと、前記ベースプレートが取り付けられるとともに前記支柱が挿入される鞘管と、前記鞘管及び前記支柱の何れか一方に形成される溝部と、前記鞘管及び前記支柱の何れか他方に形成されるとともに前記溝部に沿って相対移動可能な突起部と、を有し、前記溝部は、水平に対して傾斜した傾斜溝部を有し、前記突起部を前記傾斜溝部に沿って相対移動させることにより、前記支柱の下端が地面に接した状態と、前記支柱の下端が地面から離間した状態と、が制御されることを特徴とする。
【発明の効果】
【0010】
本発明によれば、鞘管及び支柱の何れか一方に形成される溝部と、鞘管及び支柱の何れか他方に形成されるとともに溝部に沿って相対移動可能な突起部と、を有し、溝部は、水平に対して傾斜した傾斜溝部を有し、突起部を傾斜溝部に沿って相対移動させることにより、支柱の下端が地面から離間した状態と、支柱の下端が地面に接した状態と、が制御される。支柱に対して鞘管を回転させることで突起部が傾斜溝部に沿って相対移動し、支柱が地面に接した状態と離間した状態とを切り替えることができる。このため、可動式柵の設置と移動の切り替えが容易となる。
(【0011】以降は省略されています)
この特許をJ-PlatPat(特許庁公式サイト)で参照する
関連特許
株式会社熊谷組
床版
7日前
積水樹脂株式会社
カバー体
5日前
個人
掃除装置
5日前
株式会社パロマ
融雪装置
12日前
コスモテック株式会社
表示装置
1か月前
株式会社 林物産発明研究所
道路安全体
20日前
西松建設株式会社
耐震補強方法
12日前
株式会社丸治コンクリート工業所
防護柵
14日前
株式会社川金コアテック
橋梁用鋼弾塑性ダンパー
28日前
個人
充填剤及びそれが充填された人工芝
12日前
鹿島建設株式会社
壁高欄の施工方法
13日前
ダンレックス株式会社
表示装置
21日前
株式会社朝日設計事務所
床版橋の梁組合せ床版及び施工方法
12日前
酒井重工業株式会社
建設車両
5日前
ワールド開発工業株式会社
センサ用支持体およびロードローラー
6日前
清水建設株式会社
床版架設装置および床版架設方法
20日前
日鉄神鋼建材株式会社
可動式柵及び可動式柵の支柱用キャスター
1日前
公益財団法人鉄道総合技術研究所
レール締結用工具
5日前
PUMP MAN株式会社
路面成型補助部材、及び、路面成型方法
1か月前
ミネベアミツミ株式会社
冠水検出ユニット
7日前
日本製鉄株式会社
仮設橋による施工方法
20日前
花王株式会社
アスファルト添加剤組成物
6日前
花王株式会社
アスファルト添加剤組成物
6日前
個人
蓄光性の白色モルタル、その硬化体、及びその硬化体の耐候性強化方法。
5日前
公益財団法人鉄道総合技術研究所
バラスト軌道つき固め装置及び方法
5日前
公益財団法人鉄道総合技術研究所
バラスト軌道つき固め装置及び方法
5日前
宮地エンジニアリング株式会社
防音壁
5日前
株式会社ブリッジワン
橋梁用固定ベース及び橋梁用固定ベースの製造方法
6日前
公益財団法人鉄道総合技術研究所
蒸気除草装置
1日前
ノリタケ株式会社
電動式コンクリートカッター
28日前
公益財団法人鉄道総合技術研究所
レール締結用工具
5日前
株式会社NIPPO
タイヤローラ
20日前
株式会社エムアールサポート
出来形管理方法
22日前
株式会社熊谷組
床版接合構造
1か月前
中交一公局第五工程有限公司
吊りかご組立プラットフォーム及びその駆動システム
19日前
首都高速道路株式会社
舗装構造
13日前
続きを見る
他の特許を見る