TOP
|
特許
|
意匠
|
商標
特許ウォッチ
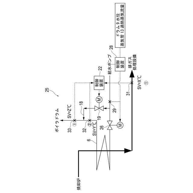
Twitter
他の特許を見る
公開番号
2025161412
公報種別
公開特許公報(A)
公開日
2025-10-24
出願番号
2024064578
出願日
2024-04-12
発明の名称
排熱回収ボイラ及びその給水バイパス制御方法
出願人
JFEエンジニアリング株式会社
代理人
個人
,
個人
主分類
F22D
1/12 20060101AFI20251017BHJP(蒸気発生)
要約
【課題】バイパス経路に給水を流すことによるバイパス経路合流前のスチーミングリスク、又は/及びバイパス経路合流後のボイラドラム給水管台部のノズル損傷リスクを回避しつつ、負荷の幅広い範囲でボイラの運転を確保することができる排熱回収ボイラを提供する。
【解決手段】給水を予熱して排ガスを冷却する節炭器6と、節炭器6への給水をバイパスするバイパス経路18と、バイパス経路18の給水量を調節する給水量調節装置19と、少なくとも節炭器6通過後の排ガス温度(1)、並びにバイパス経路18合流前の節炭器出口給水温度(2)又はバイパス経路18合流後の給水温度(3)の少なくとも一方に基づいて、給水量調節装置19を制御する制御装置22と、を備える排熱回収ボイラ21である。
【選択図】図4
特許請求の範囲
【請求項1】
給水を予熱して排ガスを冷却する節炭器と、
前記節炭器への給水をバイパスするバイパス経路と、
前記バイパス経路又は/及び前記節炭器の給水量を調節する給水量調節装置と、
少なくとも前記節炭器通過後の排ガス温度、並びにバイパス経路合流前の節炭器出口給水温度又はバイパス経路合流後の給水温度の少なくとも一方に基づいて、前記給水量調節装置を制御する制御装置と、を備える排熱回収ボイラ。
続きを表示(約 630 文字)
【請求項2】
前記制御装置は、前記節炭器通過後の排ガス温度、前記バイパス経路合流前の節炭器出口給水温度、及び前記バイパス経路合流後の給水温度に基づいて、前記給水量調節装置を制御することを特徴とする請求項1に記載の排熱回収ボイラ。
【請求項3】
前記制御装置は、少なくとも前記節炭器通過後の排ガス温度、並びに前記バイパス経路合流前の節炭器出口給水温度又は前記バイパス経路合流後の給水温度の少なくとも一方のそれぞれに基づいて算出した前記給水量調節装置の開度のうち、最も小さい開度を選択することを特徴とする請求項1に記載の排熱回収ボイラ。
【請求項4】
前記制御装置は、前記節炭器通過後の排ガス温度、前記バイパス経路合流前の節炭器出口給水温度、及び前記バイパス経路合流後の給水温度のそれぞれに基づいて算出した前記給水量調節装置の開度のうち、最も小さい開度を選択することを特徴とする請求項2に記載の排熱回収ボイラ。
【請求項5】
給水を予熱して排ガスを冷却する節炭器と、前記節炭器への給水をバイパスするバイパス経路と、を備える排熱回収ボイラの給水バイパス制御方法であって、
少なくとも前記節炭器通過後の排ガス温度、並びにバイパス経路合流前の節炭器出口給水温度又はバイパス経路合流後の給水温度の少なくとも一方に基づいて、前記バイパス経路又は/及び前記節炭器の給水量を制御する給水バイパス制御方法。
発明の詳細な説明
【技術分野】
【0001】
本発明は、排熱回収ボイラに関し、特に節炭器への給水をバイパスするバイパス経路を設けた排熱回収ボイラに関する。
続きを表示(約 1,900 文字)
【背景技術】
【0002】
従来から廃棄物焼却炉等の焼却炉の排ガスから熱を回収する排熱回収ボイラ(以下、単にボイラという)が知られている。ボイラ1は、図1に示すように焼却炉2から排出され、煙道3,14内を流れる排ガス中に、過熱器4、蒸発器5、節炭器6を配置した構成になっている。過熱器4は煙道3に配置される場合もあるし、煙道14に配置される場合もある。節炭器6も同様である。蒸発器5は図1に示すように水冷壁から構成される場合もあるし、煙道3に配置される場合もある。
【0003】
給水は、給水ポンプから節炭器給水管7を経て節炭器6に供給され、予熱された後、ドラム給水管8を経てボイラドラム9(以下、単にドラム9という)に供給される。ドラム9に供給された給水は、降水管10、蒸発器5、蒸発管11、ドラム9の順で自然循環又は強制循環し、その間に加熱される。加熱により発生した蒸気は、ドラム9で水と分離された後、ドラム蒸気管12を経て過熱器4に送られ、ここでさらに昇温された後、蒸気管13を経て蒸気タービンに供給され、発電等に利用される。
【0004】
上記ボイラ1においては、例えば焼却炉のごみ質や焼却量の変化に伴って負荷変動が生じる。軽負荷時には排ガス温度が下がるので、節炭器6及びその下流機器(排ガス処理設備)に低温腐食が発生するという課題がある。
【0005】
この課題を解決し、負荷の幅広い範囲でのボイラ1の運転を確保するために、図2に示すように、節炭器6が配置される煙道14(図1参照)に節炭器6をバイパスするバイパスダクト15を設置し、バイパスダクト15に排ガスの流量を調節するダンパ16を設けたボイラ1が提案されている(特許文献1参照)。特許文献1に記載のボイラ1において、軽負荷時にバイパス合流後の排ガス温度が下がったら、制御装置17とダンパ16によって排ガスがバイパスダクト15に流れるようにすることで、バイパス合流後の排ガス温度を上昇させる。これにより、節炭器6及びその下流機器(排ガス処理設備)の低温腐食を防止することができ、負荷の幅広い範囲でボイラ1の運転を確保することができる。
【先行技術文献】
【特許文献】
【0006】
特開2013-11373号公報の図1
【発明の概要】
【発明が解決しようとする課題】
【0007】
しかし、従来のバイパスダクト15には、以下の課題がある。軽負荷時にバイパスダクト15に排ガスを流すので、ドラム9への給水のアプローチ温度が高くなってしまう(ドラム温度との差が小さくなってしまう)。また、バイパスダクト15のダンパ16自体は当然ながら全閉しているのが熱回収的に有利だが、使わないとダンパ16にダストが堆積・固着するリスクが存在する。さらに、発電量の観点から見てもダンパ16には常にリークがある(例えば1%程度バイパスし続ける)ので、熱回収率や発電量を下げてしまう。加えて、煙道を引き回すので、配置的にスペースが必要になってしまう。
【0008】
上記バイパスダクトの課題を解決するために、図3に示すように節炭器6への給水をバイパスするバイパス経路18を設け、バイパス経路18に調節弁等の給水量調節装置19を設けることが考えられる。そして、軽負荷時に節炭器6通過後の排ガス温度(1)が下がったら、制御装置20と給水量調節装置19によって給水がバイパス経路18に流れるようにすることで、節炭器6通過後の排ガス温度を上昇させる。これにより、節炭器6及びその下流機器(排ガス処理設備)の低温腐食を防止することができ、負荷の幅広い範囲でボイラ1の運転を確保することができる。
【0009】
しかし一方で、バイパス経路18の給水量を増やすと、バイパス経路18合流前の節炭器出口給水温度(2)は、節炭器6への給水量低下に伴い上昇する。したがって、バイパス経路18合流前の節炭器出口において蒸気が気化するスチーミングリスクが生じる。
【0010】
また、バイパス経路18の給水量を増やすと、バイパス経路18を通る未加熱の給水量が増えるので、バイパス経路18合流後の給水温度(3)が低下する。その結果、飽和蒸気が蓄えられているドラム給水管台部との温度差が生じ、温度差が原因で熱応力が発生し、ドラム給水管台部のノズルが損傷するリスクがある。
(【0011】以降は省略されています)
この特許をJ-PlatPat(特許庁公式サイト)で参照する
関連特許
三浦工業株式会社
台数制御装置
2か月前
三浦工業株式会社
ボイラ
5か月前
三浦工業株式会社
水蒸気発生装置
1か月前
三菱重工業株式会社
ボイラ壁
1か月前
日精オーバル株式会社
蒸気発生装置
2か月前
三浦工業株式会社
管理装置
5か月前
三浦工業株式会社
貫流ボイラ
1か月前
栗田工業株式会社
ボイラ水処理装置および処理方法
4か月前
三浦工業株式会社
蒸気発生装置
5か月前
株式会社ミヤワキ
蒸気プラント
3か月前
三浦工業株式会社
ボイラ水の水質評価用試料水の調製装置
8か月前
三浦工業株式会社
電極式ボイラ
12日前
三菱重工業株式会社
蒸気生成システム及び蒸気生成方法
2か月前
三菱重工業株式会社
伝熱管の検査装置および方法
7か月前
三浦工業株式会社
水素ボイラシステムの制御装置
5か月前
神鋼検査サービス株式会社
スケール除去ユニット
2か月前
株式会社ヒラカワ
ボイラからの排ガスの温度制御方法
5か月前
中国電力株式会社
吊下パネルの修繕方法及び吊下管整列用具
26日前
JFEエンジニアリング株式会社
排熱回収ボイラ及びその給水バイパス制御方法
1か月前
丸高工業株式会社
加熱装置の制御方法及び加熱装置
6か月前
日本特殊陶業株式会社
蒸発器および蒸発器を備えるホットモジュール
7か月前
三菱重工業株式会社
プラント制御装置、プラント制御方法、及び、プラント制御プログラム
7か月前
東京電力ホールディングス株式会社
蒸気タービンプラント
2か月前
シェンチェン ウッディー ベイプス テクノロジー カンパニー,リミテッド
アトマイザー
6か月前
三菱重工業株式会社
熱電併給用蒸気生成システム及び熱電併給システム並びに熱電併給用蒸気生成方法
1か月前
JFEエンジニアリング株式会社
過熱装置および過熱装置による過熱蒸気温度の制御方法
5か月前
三菱重工業株式会社
ボイラ制御装置、ボイラ、発電プラント、ボイラ制御方法およびボイラ制御プログラム
3か月前
DOWAテクノエンジ株式会社
熱伸縮吸収用エキスパンション構造
6か月前
トクデン株式会社
過熱水蒸気生成装置、及び、過熱水蒸気生成装置に用いられる導体管の製造方法
6か月前
三菱重工業株式会社
ボイラの制御装置、これを備えたボイラシステム、ボイラの制御方法及びボイラの制御プログラム
2か月前
株式会社サーモテック
温度調節システム
25日前
三菱重工業株式会社
CO2回収装置用蒸気生成システム及びこれを備えたCO2回収装置並びにCO2回収装置用蒸気生成方法
1か月前
ASTRA FOOD PLAN株式会社
過熱水蒸気発生装置
5か月前
インターナショナル・ペーパー・カンパニー
ファウリングを減少させるように回収ボイラの動作を制御するシステムおよび方法
6日前
ジーイー・ベルノバ・テクノロジー・ゲーエムベーハー
熱回収蒸気発生器用の入口ダクトシステム
2か月前
株式会社野村総合研究所
情報処理システム、情報処理方法およびコンピュータプログラム
7か月前
続きを見る
他の特許を見る