TOP
|
特許
|
意匠
|
商標
意匠ウォッチ
Twitter
他の意匠を見る
発行日
2025-12-11
公報種別
意匠公報(S)
登録番号
1814660
登録日
2025-12-03
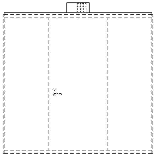
意匠に係る物品
執務用ブース
意匠分類
L3
-2010(組立て家屋、屋外装備品等)
出願番号
2025016548
出願日
2025-08-22
意匠権者
株式会社オカムラ
代理人
意匠に係る物品の説明
本物品は、正面側に扉を備え、ブース空間内に入り執務が可能なものである。天井上面の正面側にエアコン装置箱を備え、中央ならびに背面側に消火装置箱を備えたものである。
意匠の説明
実線で示した部分が、部分意匠として意匠登録を受けようとする部分である。
この意匠をJ-PlatPat(特許庁公式サイト)で参照する
関連意匠
株式会社オカムラ
いす
6か月前
株式会社オカムラ
いす
6か月前
株式会社オカムラ
机
10か月前
株式会社オカムラ
いす
7か月前
株式会社オカムラ
いす
7か月前
株式会社オカムラ
机
10か月前
株式会社オカムラ
いす
6か月前
株式会社オカムラ
いす
6か月前
株式会社オカムラ
いす
6か月前
株式会社オカムラ
いす
6か月前
株式会社オカムラ
いす
6か月前
株式会社オカムラ
いす
7か月前
株式会社オカムラ
いす
6か月前
株式会社オカムラ
いす
6か月前
株式会社オカムラ
いす
6か月前
株式会社オカムラ
いす
6か月前
株式会社オカムラ
いす
6か月前
株式会社オカムラ
いす
4か月前
株式会社オカムラ
机
4か月前
株式会社オカムラ
机
10か月前
株式会社オカムラ
いす
7か月前
株式会社オカムラ
机
10か月前
株式会社オカムラ
いす
7か月前
株式会社オカムラ
いす
8か月前
株式会社オカムラ
いす
8か月前
株式会社オカムラ
いす
8か月前
株式会社オカムラ
いす
8か月前
株式会社オカムラ
いす
7か月前
株式会社オカムラ
いす
7か月前
株式会社オカムラ
いす
8か月前
株式会社オカムラ
いす
8か月前
株式会社オカムラ
机
8か月前
株式会社オカムラ
いす
7か月前
株式会社オカムラ
机
8か月前
株式会社オカムラ
ベンチ
4か月前
株式会社オカムラ
ベンチ
4か月前
続きを見る
他の意匠を見る