TOP
|
特許
|
意匠
|
商標
意匠ウォッチ
Twitter
他の意匠を見る
発行日
2025-10-30
公報種別
意匠公報(S)
登録番号
1811880
登録日
2025-10-22
意匠に係る物品
集合住宅
意匠分類
L3
-21(組立て家屋、屋外装備品等)
出願番号
2024026260
出願日
2024-12-19
意匠権者
大和ハウス工業株式会社
,
DAIWA HOUSE INDUSTRY CO.,LTD.
代理人
弁理士法人ITOH
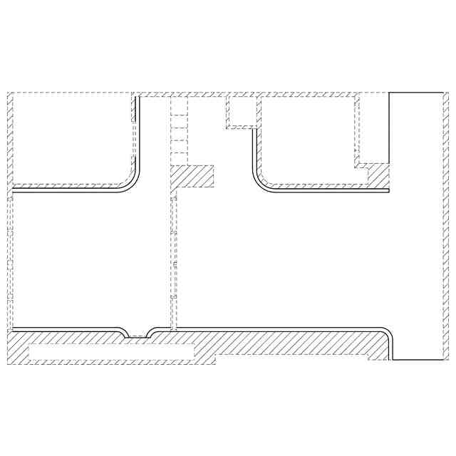
意匠に係る物品の説明
本願意匠は、風除室及び隣接するエントランスを、一体的に表してなるものであり、天井には、例えば間接照明を用いることもできる。
意匠の説明
本願意匠は集合住宅の建築物であって、本願意匠のうち意匠登録を受けようとする部分は、集合住宅のエントランス及び風除室である。建築物内の実線で表した部分が、意匠登録を受けようとする部分である。
この意匠をJ-PlatPat(特許庁公式サイト)で参照する
関連意匠
大和ハウス工業株式会社
集合住宅
1か月前
大和ハウス工業株式会社
集合住宅
1か月前
大和ハウス工業株式会社
集合住宅
6か月前
大和ハウス工業株式会社
集合住宅
6か月前
大和ハウス工業株式会社
集合住宅
6か月前
大和ハウス工業株式会社
集合住宅
7か月前
大和ハウス工業株式会社
集合住宅
8か月前
大和ハウス工業株式会社
住宅の内装
10か月前
大和ハウス工業株式会社
集合住宅
2か月前
株式会社大林組
柵
3か月前
株式会社LIXIL
門
2か月前
積水樹脂株式会社
柵
1か月前
株式会社LIXIL
門
2か月前
株式会社LIXIL
門
2か月前
株式会社LIXIL
門
2か月前
積水樹脂株式会社
柵
今日
住友林業株式会社
住宅
5か月前
旭化成ホームズ株式会社
住宅
3か月前
旭化成ホームズ株式会社
住宅
3か月前
積水ハウス株式会社
住宅
1か月前
株式会社丸豊建硝
手摺
6か月前
住友林業株式会社
住宅
5か月前
株式会社長谷工コーポレーション
門柱
9か月前
株式会社長谷工コーポレーション
門柱
9か月前
住友林業株式会社
住宅
5か月前
個人
住宅
1か月前
積水ハウス株式会社
住宅
8か月前
積水ハウス株式会社
住宅
8か月前
株式会社丸豊建硝
手摺
6か月前
住友林業株式会社
住宅
5か月前
積水ハウス株式会社
住宅
1か月前
株式会社長谷工コーポレーション
住宅
3か月前
株式会社大林組
病院
5か月前
個人
住宅
11か月前
石友ホーム株式会社
住宅
11か月前
三協立山株式会社
門扉
8か月前
続きを見る
他の意匠を見る