TOP
|
特許
|
意匠
|
商標
意匠ウォッチ
Twitter
他の意匠を見る
発行日
2025-10-30
公報種別
意匠公報(S)
登録番号
1811862
登録日
2025-10-22
意匠に係る物品
建物用窓
意匠分類
L4
-6220(建築用構成品)
出願番号
2025012652
出願日
2025-06-25
意匠権者
株式会社LIXIL
代理人
個人
,
個人
,
個人
,
個人
,
個人
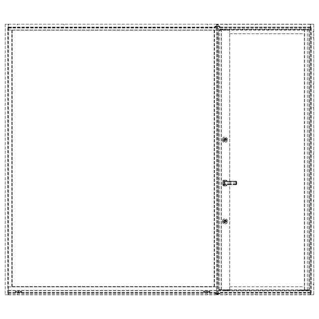
意匠に係る物品の説明
本物品は、窓枠内に方立を介してドア及びFIX窓を設置した建物用窓である。この意匠において意匠登録を受けようとする部分は、方立の部分である。
意匠の説明
実線で表された部分が、意匠登録を受けようとする部分である。「斜視図1」、「斜視図2」、「A-A線拡大断面図」及び「I-I,II-II部分拡大図」を含めて意匠登録を受けようとする部分を特定している。「透光性部分を示す参考正面図」において、斜線を施した部分は透明である。
この意匠をJ-PlatPat(特許庁公式サイト)で参照する
関連意匠
株式会社LIXIL
4か月前
株式会社LIXIL
9か月前
株式会社LIXIL
1か月前
株式会社LIXIL
12か月前
株式会社LIXIL
12か月前
株式会社LIXIL
1か月前
株式会社LIXIL
1か月前
株式会社LIXIL
4か月前
株式会社LIXIL
10か月前
株式会社LIXIL
10か月前
株式会社LIXIL
10か月前
株式会社LIXIL
9か月前
株式会社LIXIL
8か月前
株式会社LIXIL
1か月前
株式会社LIXIL
8か月前
株式会社LIXIL
8か月前
株式会社LIXIL
7か月前
株式会社LIXIL
3か月前
株式会社LIXIL
3か月前
株式会社LIXIL
7か月前
株式会社LIXIL
7か月前
株式会社LIXIL
5か月前
株式会社LIXIL
4か月前
株式会社LIXIL
4か月前
株式会社LIXIL
1か月前
株式会社LIXIL
11か月前
株式会社LIXIL
1か月前
株式会社LIXIL
1か月前
株式会社LIXIL
14か月前
株式会社LIXIL
16か月前
株式会社LIXIL
16か月前
株式会社LIXIL
1か月前
株式会社LIXIL
1か月前
株式会社LIXIL
1か月前
株式会社LIXIL
ベンチ
10か月前
株式会社LIXIL
網戸
1か月前
続きを見る
他の意匠を見る