TOP
|
特許
|
意匠
|
商標
意匠ウォッチ
Twitter
他の意匠を見る
発行日
2025-10-29
公報種別
意匠公報(S)
登録番号
1811780
登録日
2025-10-21
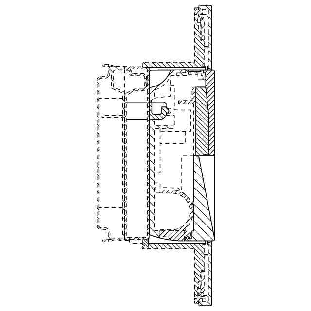
意匠に係る物品
壁埋め込み灯
意匠分類
D3
-3210(発光具及び照明器具)
出願番号
2024023350
出願日
2024-11-11
意匠権者
パナソニックIPマネジメント株式会社
,
Panasonic Intellectual Property Management Co., Ltd.
代理人
個人
,
個人
意匠に係る物品の説明
本物品は、コンセント付プレートと間接照明から成る脱着式の非常灯機能を兼ねた壁埋め込み灯で、壁面からの突出を抑えることでノイズレスな空間を設計することができるものである。
意匠の説明
断面図を含む、実線で表された部分が、部分意匠として意匠登録を受けようとする部分である。
この意匠をJ-PlatPat(特許庁公式サイト)で参照する
関連意匠
パナソニックIPマネジメント株式会社
8か月前
パナソニックIPマネジメント株式会社
16か月前
パナソニックIPマネジメント株式会社
6か月前
パナソニックIPマネジメント株式会社
6か月前
パナソニックIPマネジメント株式会社
6か月前
パナソニックIPマネジメント株式会社
6か月前
パナソニックIPマネジメント株式会社
17か月前
パナソニックIPマネジメント株式会社
16か月前
パナソニックIPマネジメント株式会社
2か月前
パナソニックIPマネジメント株式会社
2か月前
パナソニックIPマネジメント株式会社
15か月前
パナソニックIPマネジメント株式会社
3か月前
パナソニックIPマネジメント株式会社
7か月前
パナソニックIPマネジメント株式会社
7か月前
パナソニックIPマネジメント株式会社
7か月前
パナソニックIPマネジメント株式会社
8か月前
パナソニックIPマネジメント株式会社
15か月前
パナソニックIPマネジメント株式会社
1か月前
パナソニックIPマネジメント株式会社
8か月前
パナソニックIPマネジメント株式会社
15か月前
パナソニックIPマネジメント株式会社
6か月前
パナソニックIPマネジメント株式会社
3か月前
パナソニックIPマネジメント株式会社
1か月前
パナソニックIPマネジメント株式会社
6か月前
パナソニックIPマネジメント株式会社
5か月前
パナソニックIPマネジメント株式会社
5か月前
パナソニックIPマネジメント株式会社
5か月前
パナソニックIPマネジメント株式会社
5か月前
パナソニックIPマネジメント株式会社
4か月前
パナソニックIPマネジメント株式会社
4か月前
パナソニックIPマネジメント株式会社
4か月前
パナソニックIPマネジメント株式会社
6か月前
パナソニックIPマネジメント株式会社
6か月前
パナソニックIPマネジメント株式会社
3か月前
パナソニックIPマネジメント株式会社
4か月前
パナソニックIPマネジメント株式会社
18か月前
続きを見る
他の意匠を見る