TOP
|
特許
|
意匠
|
商標
意匠ウォッチ
Twitter
他の意匠を見る
発行日
2025-10-22
公報種別
意匠公報(S)
登録番号
1811025
登録日
2025-10-14
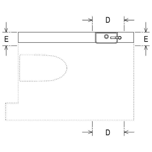
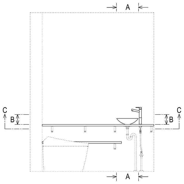
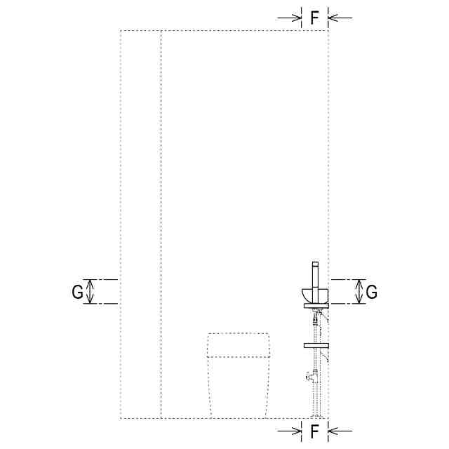
意匠に係る物品
住宅用トイレの内装
意匠分類
L3
-72(組立て家屋、屋外装備品等)
出願番号
2023012110
出願日
2023-06-13
意匠権者
アイカ工業株式会社
代理人
名古屋国際弁理士法人
意匠に係る物品の説明
本物品は、手洗いカウンター(上板)と棚板(下板)とを組み合わせて、スリムでありながら、手を洗いやすく、有効スペースを確保した住宅用トイレの内装である。
意匠の説明
破線部分(取付金具、配管、壁、床、便器)以外の実線で表した部分(上板、下板、水栓蛇口、洗面器)が意匠登録を受けようとする部分である。
この意匠をJ-PlatPat(特許庁公式サイト)で参照する
関連意匠
アイカ工業株式会社
軒天井取付補助部材
6日前
アイカ工業株式会社
軒天井取付補助部材
6日前
アイカ工業株式会社
洗面台
27日前
アイカ工業株式会社
洗面台
27日前
アイカ工業株式会社
洗面台
27日前
アイカ工業株式会社
洗面台
4か月前
アイカ工業株式会社
住宅用トイレの内装
1か月前
アイカ工業株式会社
洗面カウンター
14日前
アイカ工業株式会社
洗面カウンター
14日前
アイカ工業株式会社
洗面カウンター
14日前
フクビ化学工業株式会社
建築用巾木材
1か月前
アイカ工業株式会社
排水口金具用キャップ
4か月前
株式会社LIXIL
門
2か月前
株式会社LIXIL
門
2か月前
株式会社LIXIL
門
2か月前
積水樹脂株式会社
柵
1か月前
株式会社LIXIL
門
2か月前
株式会社大林組
柵
3か月前
YKK AP株式会社
門扉
5か月前
YKK AP株式会社
門扉
5か月前
積水ハウス株式会社
住宅
10か月前
積水ハウス株式会社
住宅
1か月前
積水ハウス株式会社
住宅
10か月前
ミサワホーム株式会社
住宅
11か月前
積水ハウス株式会社
住宅
10か月前
旭化成ホームズ株式会社
住宅
11か月前
旭化成ホームズ株式会社
住宅
10か月前
積水ハウス株式会社
住宅
4か月前
積水ハウス株式会社
住宅
4か月前
帝人株式会社
住宅
10か月前
ミサワホーム株式会社
住宅
11か月前
YKK AP株式会社
門扉
5か月前
積水ハウス株式会社
住宅
10か月前
積水ハウス株式会社
住宅
10か月前
旭化成ホームズ株式会社
住宅
11か月前
ミサワホーム株式会社
住宅
11か月前
続きを見る
他の意匠を見る