TOP
|
特許
|
意匠
|
商標
意匠ウォッチ
Twitter
他の意匠を見る
発行日
2025-09-19
公報種別
意匠公報(S)
登録番号
1808772
登録日
2025-09-10
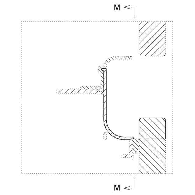
意匠に係る物品
コンロ付き流し台
意匠分類
D5
-1201(厨房設備用品及び衛生設備用品)
出願番号
2024026871
出願日
2024-12-25
意匠権者
株式会社LIXIL
代理人
意匠に係る物品の説明
意匠の説明
実線で表した部分が意匠登録を受けようとする部分である。一点鎖線は、意匠登録を受けようとする部分とその他の部分との境界のみを示す線である。
意匠ウォッチbot のツイートを見る
この意匠をJ-PlatPat(特許庁公式サイト)で参照する
関連意匠
株式会社LIXIL
4か月前
株式会社LIXIL
9か月前
株式会社LIXIL
1か月前
株式会社LIXIL
12か月前
株式会社LIXIL
12か月前
株式会社LIXIL
1か月前
株式会社LIXIL
1か月前
株式会社LIXIL
4か月前
株式会社LIXIL
10か月前
株式会社LIXIL
10か月前
株式会社LIXIL
10か月前
株式会社LIXIL
9か月前
株式会社LIXIL
8か月前
株式会社LIXIL
1か月前
株式会社LIXIL
8か月前
株式会社LIXIL
8か月前
株式会社LIXIL
7か月前
株式会社LIXIL
3か月前
株式会社LIXIL
3か月前
株式会社LIXIL
7か月前
株式会社LIXIL
7か月前
株式会社LIXIL
5か月前
株式会社LIXIL
4か月前
株式会社LIXIL
4か月前
株式会社LIXIL
1か月前
株式会社LIXIL
11か月前
株式会社LIXIL
1か月前
株式会社LIXIL
1か月前
株式会社LIXIL
15か月前
株式会社LIXIL
16か月前
株式会社LIXIL
16か月前
株式会社LIXIL
1か月前
株式会社LIXIL
1か月前
株式会社LIXIL
1か月前
株式会社LIXIL
ベンチ
10か月前
株式会社LIXIL
網戸
1か月前
続きを見る
他の意匠を見る