TOP
|
特許
|
意匠
|
商標
意匠ウォッチ
Twitter
他の意匠を見る
発行日
2025-09-10
公報種別
意匠公報(S)
登録番号
1808252
登録日
2025-09-02
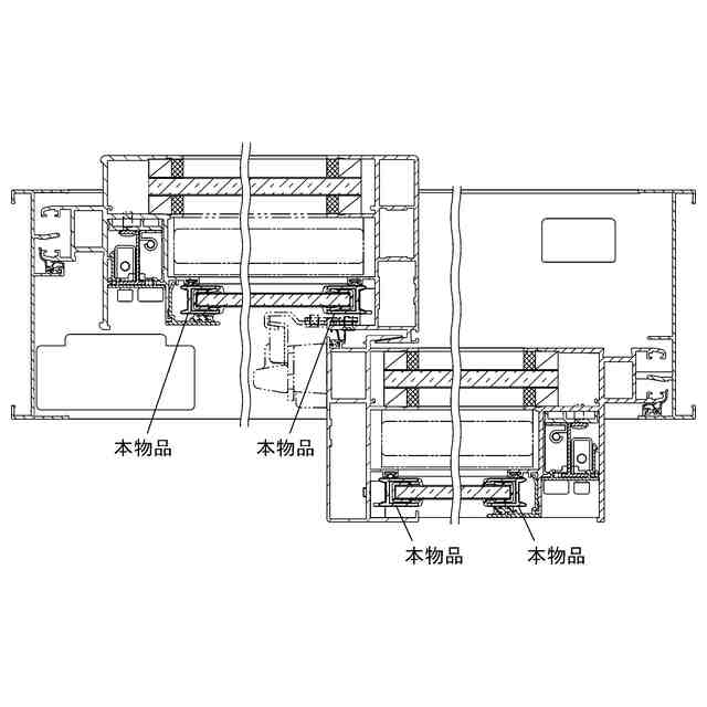
意匠に係る物品
窓用子障子たて框
意匠分類
L7
-20(建物用構造材、枠材等)
出願番号
2025005551
出願日
2025-03-21
意匠権者
不二サッシ株式会社
代理人
個人
,
個人
意匠に係る物品の説明
本物品は、主に建物の窓に使用する、窓用子障子たて框としての型材である。「使用状態を示す参考図」に示すように、とりわけ、ブラインド内蔵のサッシに用いられる。
意匠の説明
背面図は正面図と対称に表れるため省略する。底面図は平面図と同一に表れるため省略する。本願意匠は平面図において上下方向に連続するものである。
この意匠をJ-PlatPat(特許庁公式サイト)で参照する
関連意匠
不二サッシ株式会社
2か月前
不二サッシ株式会社
2か月前
不二サッシ株式会社
2か月前
不二サッシ株式会社
2か月前
不二サッシ株式会社
2か月前
不二サッシ株式会社
2か月前
不二サッシ株式会社
2か月前
不二サッシ株式会社
2か月前
不二サッシ株式会社
2か月前
不二サッシ株式会社
2か月前
不二サッシ株式会社
2か月前
不二サッシ株式会社
2か月前
不二サッシ株式会社
2か月前
不二サッシ株式会社
2か月前
不二サッシ株式会社
2か月前
不二サッシ株式会社
2か月前
不二サッシ株式会社
2か月前
不二サッシ株式会社
2か月前
不二サッシ株式会社
2か月前
不二サッシ株式会社
2か月前
不二サッシ株式会社
2か月前
不二サッシ株式会社
2か月前
不二サッシ株式会社
2か月前
不二サッシ株式会社
2か月前
不二サッシ株式会社
2か月前
不二サッシ株式会社
2か月前
不二サッシ株式会社
窓用下框
2か月前
不二サッシ株式会社
ルーバ取付用金具
4か月前
不二サッシ株式会社
ルーバ取付用金具
4か月前
不二サッシ株式会社
窓用上框
2か月前
不二サッシ株式会社
窓用上框
2か月前
不二サッシ株式会社
窓用下框
2か月前
不二サッシ株式会社
窓用戸先框
2か月前
不二サッシ株式会社
窓用戸先框
2か月前
不二サッシ株式会社
窓用召合せ框
2か月前
不二サッシ株式会社
窓用召合せ框
2か月前
続きを見る
他の意匠を見る